ISTRA, POREČ - Stan 1.kat u novogradnji blizu mora

Cijena: 320.000,00 €
ID oglasa: 61414

Osnovni podaci

Lokacija Istarska, Poreč, Poreč
Tip stana u stambenoj zgradi
Stambena površina 68,65 m²
Broj etaža 1
Broj soba Garsonijera
Kat 1. kat
Netto površina 68,65 m²
Godina izgradnje 2025
Ukupni broj katova u zgradi 1
Broj vlastitih parkirnih mjesta 7+

Opis

ISTRA, POREČ - Stan 1.kat u novogradnji blizu mora

Grad Poreč, jedan od najljepših bisera Jadranskog mora, smjestio se na zapadnoj obali Istre. Na relativno malom poluotočnom prostoru na kojemu je grad iznikao i danas su jasno vidljivi tragovi susreta slavenskog, romanskog i germanskog svijeta, koji ujedno svjedoče o mnogobrojnosti promjena – političkih, društvenih i etničkih – što ih je ovaj istarski gradić doživio u povijesti. Povijest Poreča povijest je stalnih promjena, kretanja i previranja, nestalnosti naroda, uzleta i padova, u kojoj se kao konstanta javlja povijest novih početaka. Ovaj grad neprestano otkriva tragove života mnogih civilizacija i kultura koje su izgradile njegov urbani i povijesni identitet.

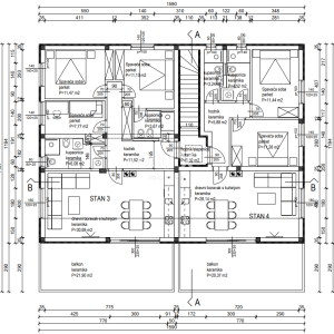
Stan 4. na nacrtima.

Stan površine 68,65 m² smješten je na 1. katu novogradnje, na udaljenosti od 2,2 km od mora.
Sastoji se od dvije spavaće sobe, dvije kupaonice te prostranog otvorenog prostora koji uključuje kuhinju, blagovaonicu i dnevni boravak i ima izlaz na prostrani balkon.

Stanu pripadaju dva parkirna mjesta, uz mogućnost ugradnje punionice za električna vozila.

Cijena uključuje sve osim namještaja i rasvjete. Zgrada je trenutno u roh-bau fazi, a omogućeno je plaćanje u etapama (30% + 30% + 30% + 10%).

Poštovani klijenti, agencijska provizija naplaćuje se u skladu s Općim uvjetima poslovanja
www.dux-nekretnine.hr/opci-uvjeti-poslovanja

ID KOD AGENCIJE: 42235

DUX Poreč
Mob: +385 99 340 4702
Tel: +385 99 640 8438
E-mail: [email protected]
www.dux-istra.com

Lokacija

close
Napomena: prikazana je točna lokacija
Oglas objavljen 01.10.2025. 00:00
Do isteka još 2 godine i 8 mjeseci
Pregleda 12

Slični oglasi Pogledaj sve oglase

Navedite razlog prijave oglasa

Podijeli oglas

ISTRA, POREČ - Stan 1.kat u novogradnji blizu mora

ISTRA, POREČ - Stan 1.kat u novogradnji blizu mora

ID oglasa: 61414

Cijena: 320.000,00 €

U usporedbi može biti maksimalno 4 oglasa. Uklonite 1 oglas kako bi dodali novi oglas u usporedbe

PROVJERI OGLASE