ŠIBENIK, ŽABORIĆ - Jednosobni apartman u novogradnji s pogledom na more

Cijena: 234.900,00 €
ID oglasa: 88415

Osnovni podaci

Lokacija Šibensko-kninska, Šibenik - Okolica, Žaborić
Tip stana u stambenoj zgradi
Stambena površina 53,27 m²
Broj etaža 2
Broj soba Garsonijera
Kat Prizemlje
Netto površina 53,27 m²
Godina izgradnje 2026
Ukupni broj katova u zgradi 2
Energetski razred A
Broj vlastitih parkirnih mjesta 7+
Klima uređaj DA

Opis

ŠIBENIK, ŽABORIĆ - Jednosobni apartman u novogradnji s pogledom na more

Prodaje se jednosoban apartman u novogradnji, s pogledom na more u mjestu Žaborić kod Šibenika.

Stan se nalazi na vrhunskoj lokaciji 130m od pješčane plaže u Žaboriću, što ga u kombinaciji sa modernom arhitekturom i pogledom na more ćini izuzetno atraktivnom prilikom.

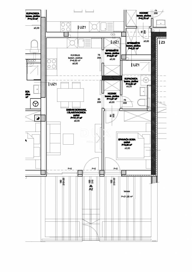
Apartman A2 nalazi se u prizemlju stambene zgrade od ukupno 6 stanova i ima ukupnu korisnu površinu od 53,27m2
Sastoji se od jedne spavaće sobe, kupaonice, spremišta, dnevnog boravka, kuhinje i blagovaonice otvorenog koncepta odakle se izlazi na predivnu terasu velinične 21m2 sa koje se pruža predivan pogled na more.
Stanu također pripada i spremište veličine 6,69m2 u podrumu zgrade, te pripadajuće parking mjesto.

Tlocrtna raspodjela:
- Dnevni boravak i blagovaonica: 17,17m2
- Kuhinja: 6,93m2
- Spavaća soba: 9,28m2
- Kupaonica: 4,34m2
- Terasa: 21m2
- Spremište (u stanu): 2,07m2
- Spremište (u podrumu): 6,69m2
- Hodnik: 1,67m2

Za dodatne informacije i razgledavanje, slobodno nas kontaktirajte.

Žaborić je mirno i atraktivno priobalno mjesto smješteno južno od Šibenika, poznato po prekrasnim šljunčanim i pješčanim plažama i kristalno čistom moru. Idealno je za obitelji i sve koji traže opušten ambijent, daleko od gradske vreve, ali i dalje u blizini svih urbanih sadržaja. Zahvaljujući svojoj uređenoj obali, čistim uvalama i mediteranskom ugođaju, Žaborić je jedno od najpoželjnijih mjesta za odmor i život na šibenskoj rivijeri.

Poštovani klijenti, agencijska provizija naplaćuje se u skladu s Općim uvjetima poslovanja:
www.dux-nekretnine.hr/opci-uvjeti-poslovanja

ID KOD AGENCIJE: 43550

Dux Šibenik
Mob: +385 91 312 1121
Tel: +385 91 480 8808
E-mail: [email protected]
www.dux-nekretnine.hr

Lokacija

close
Napomena: prikazana je točna lokacija

Dodatni podaci

Podaci o objektu

  • Gradski vodovod
  • Gradska kanalizacija

Balkon/Lođa/Terasa

  • Terasa

Funkcionalnosti i karakteristike

  • Video Portafon

Dozvole i potvrde

  • Građevinska dozvola
Oglas objavljen 20.11.2025. 00:00
Do isteka još 2 godine i 8 mjeseci
Pregleda 17

Slični oglasi Pogledaj sve oglase

Navedite razlog prijave oglasa

Podijeli oglas

ŠIBENIK, ŽABORIĆ - Jednosobni apartman u novogradnji s pogledom na more

ŠIBENIK, ŽABORIĆ - Jednosobni apartman u novogradnji s pogledom na more

ID oglasa: 88415

Cijena: 234.900,00 €

U usporedbi može biti maksimalno 4 oglasa. Uklonite 1 oglas kako bi dodali novi oglas u usporedbe

PROVJERI OGLASE