Prodaja, novogradnja, Opatija, 3-soban stan, 1 GPM, lift

Cijena: 449.000,00 €
ID oglasa: 54302

Osnovni podaci

Lokacija Primorsko-goranska, Opatija
Tip stana u stambenoj zgradi
Stambena površina 60,50 m²
Broj etaža Jednoetažni
Broj soba 3
Kat 1. kat
Sustav grijanja Sustav grijanja, klimatizacije i ventilacije
Energetski razred A

Opis

www.biliskov.com ID: 14106
Opatija, centar
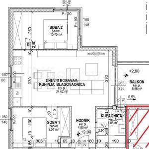
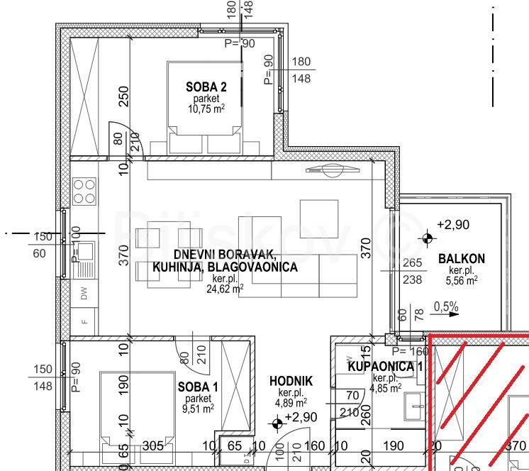
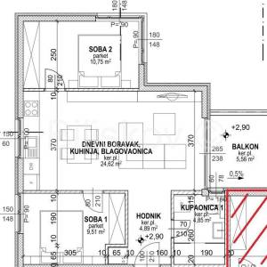
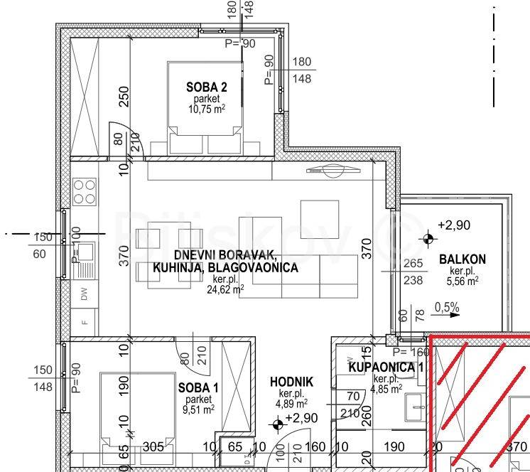
Trosobni apartman površine 60,50m2 na 1. katu zgrade sagrađene 2024. godine.
Apartmanu dodatno pripada garažno parkirno mjesto površine 12,46m2 što sa zatvorenom površinom apartmana čini ukupnu površinu od 66,73m2.
Sastoji se od ulaznog hodnika, dnevnog boravka, kuhinje i blagovaonice u open-space konceptu, dvije spavaće sobe, kupaonice i balkona.
Lokacija je fantastična, samo 2 minute hoda udaljen od poznatog kupališta Slatina, u samom centru mjesta.
Grijanje i hlađenje uređeno je putem Daikin dizalice topline, vanjska stolarija je marke Schuco, prvoklasna talijanska keramika, fasada Sto.
Opatijska rivijera obiluje prekrasno uređenim parkovima, kulturnim i povijesnim znamenitostima te šetnicama uz more. Prekrasne idilične vile, bogatstvo kulturnih zbivanja i pregršt zanimljivosti čekaju da budu otkrivene.
Svojom prekrasnom arhitekturom otmjenih vila, raskošnim parkovima s biljem iz cijelog svijeta i bogatom hotelskom i ugostiteljskom ponudom, Opatija je središte 30 kilometara dugačke rivijere smještene između zelenih obronaka planine Učke i morskog plavetnila - tradicionalno odredište u svako doba godine.
Prodavatelj je pravna osoba u sustavu PDV-a, stoga je kupac oslobođen plaćanja poreza na promet nekretninama.
Moguća je kupnja putem kredita.
Useljenje je predviđeno za 4. mjesec 2024. godine.
Cijena: 449.000 €
Agencijska naknada iznosi 2% od kupoprodajne cijene nekretnine. 

Lokacija

close
Napomena: prikazana je točna lokacija

Dodatni podaci

Podaci o objektu

  • Lift

Balkon/Lođa/Terasa

  • Balkon

Funkcionalnosti i karakteristike

  • Podno grijanje
  • Protuprovalna vrata

Vrsta parkinga

  • Garažno mjesto
Oglas objavljen 11.03.2024. 14:27
Do isteka još 2 godine i 8 mjeseci
Pregleda 43

Slični oglasi Pogledaj sve oglase

Navedite razlog prijave oglasa

Podijeli oglas

Prodaja, novogradnja, Opatija, 3-soban stan, 1 GPM, lift

Prodaja, novogradnja, Opatija, 3-soban stan, 1 GPM, lift

ID oglasa: 54302

Cijena: 449.000,00 €

U usporedbi može biti maksimalno 4 oglasa. Uklonite 1 oglas kako bi dodali novi oglas u usporedbe

PROVJERI OGLASE