Prodaja, novogradnja, Opatija, 4-soban stan, 3 GPM, lift

Cijena: 969.000,00 €
ID oglasa: 54298

Osnovni podaci

Lokacija Primorsko-goranska, Opatija
Tip stana u stambenoj zgradi
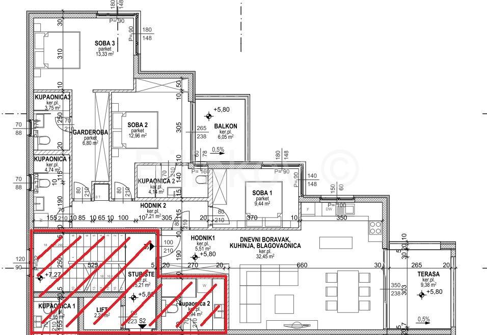
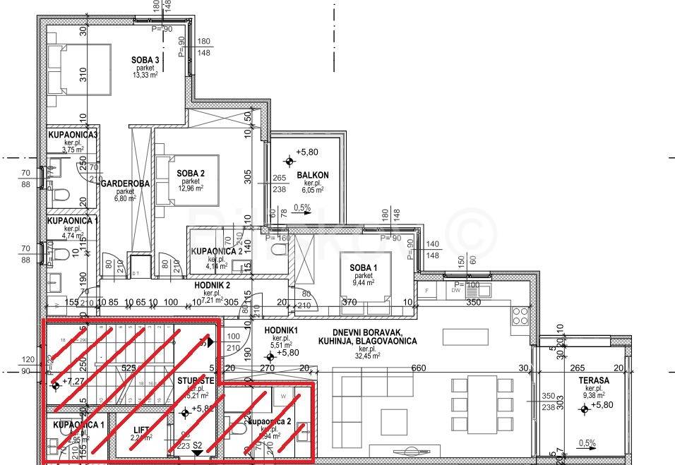
Stambena površina 116,31 m²
Broj etaža Jednoetažni
Broj soba 4
Kat 2. kat
Sustav grijanja Sustav grijanja, klimatizacije i ventilacije
Energetski razred A

Opis

www.biliskov.com ID: 14100
Opatija, centar
Luksuzni četverosobni stan površine 116,31m2 na 2. katu zgrade sagrađene 2024. godine.
Stanu dodatno pripada spremište površine 8,00m2 te tri garažna parkirna mjesta, svaki površine 12,50m2 što sa zatvorenom površinom stana čini ukupnu površinu od 139,06m2.
Stan je idealno podijeljen u živući i spavaći dio. U prvom dijelu stana nalazi se ulazni hodnik, open-space prostor u kojemu su dnevni boravak, kuhinja i blagovaonica iz kojeg se izlazi na natkrivenu terasu. Drugi dio stana sastoji se od hodnika/predsoblja koji vodi u master spavaću sobu s vlastitom kupaonicom i garderobom, još dvije spavaće sobe od kojih jedna također ima vlastitu kupaonicu, a druga balkon te dodatne kupaonice u predsoblju.
Lokacija je fantastična, samo 2 minute hoda udaljen od poznatog kupališta Slatina, u samom centru mjesta.
Grijanje i hlađenje uređeno je putem Daikin dizalice topline, vanjska stolarija je marke Schuco, prvoklasna talijanska keramika, fasada Sto.
Opatijska rivijera obiluje prekrasno uređenim parkovima, kulturnim i povijesnim znamenitostima te šetnicama uz more. Prekrasne idilične vile, bogatstvo kulturnih zbivanja i pregršt zanimljivosti čekaju da budu otkrivene.
Svojom prekrasnom arhitekturom otmjenih vila, raskošnim parkovima s biljem iz cijelog svijeta i bogatom hotelskom i ugostiteljskom ponudom, Opatija je središte 30 kilometara dugačke rivijere smještene između zelenih obronaka planine Učke i morskog plavetnila - tradicionalno odredište u svako doba godine.
Prodavatelj je pravna osoba u sustavu PDV-a, stoga je kupac oslobođen plaćanja poreza na promet nekretninama.
Moguća je kupnja putem kredita.
Useljenje je predviđeno za 4. mjesec 2024. godine.
Cijena: 969.000 €
Agencijska naknada iznosi 2% od kupoprodajne cijene nekretnine. 

Lokacija

close
Napomena: prikazana je točna lokacija

Dodatni podaci

Podaci o objektu

  • Lift

Balkon/Lođa/Terasa

  • Lođa (Loggia)

Funkcionalnosti i karakteristike

  • Podno grijanje
  • Protuprovalna vrata

Ostali objekti i površine

  • Spremište/šupa

Vrsta parkinga

  • Garažno mjesto
Oglas objavljen 11.03.2024. 15:01
Do isteka još 2 godine i 8 mjeseci
Pregleda 82

Slični oglasi Pogledaj sve oglase

Navedite razlog prijave oglasa

Podijeli oglas

Prodaja, novogradnja, Opatija, 4-soban stan, 3 GPM, lift

Prodaja, novogradnja, Opatija, 4-soban stan, 3 GPM, lift

ID oglasa: 54298

Cijena: 969.000,00 €

U usporedbi može biti maksimalno 4 oglasa. Uklonite 1 oglas kako bi dodali novi oglas u usporedbe

PROVJERI OGLASE