Novogradnja, Opatija, 3-soban stan, 1GPM, vrt 73,52m2

Cijena: 495.000,00 €
ID oglasa: 54296

Osnovni podaci

Lokacija Primorsko-goranska, Opatija
Tip stana u stambenoj zgradi
Stambena površina 62,08 m²
Broj etaža Jednoetažni
Broj soba 3
Kat Prizemlje
Sustav grijanja Sustav grijanja, klimatizacije i ventilacije
Energetski razred A

Opis

www.biliskov.com ID: 14112
Opatija, centar
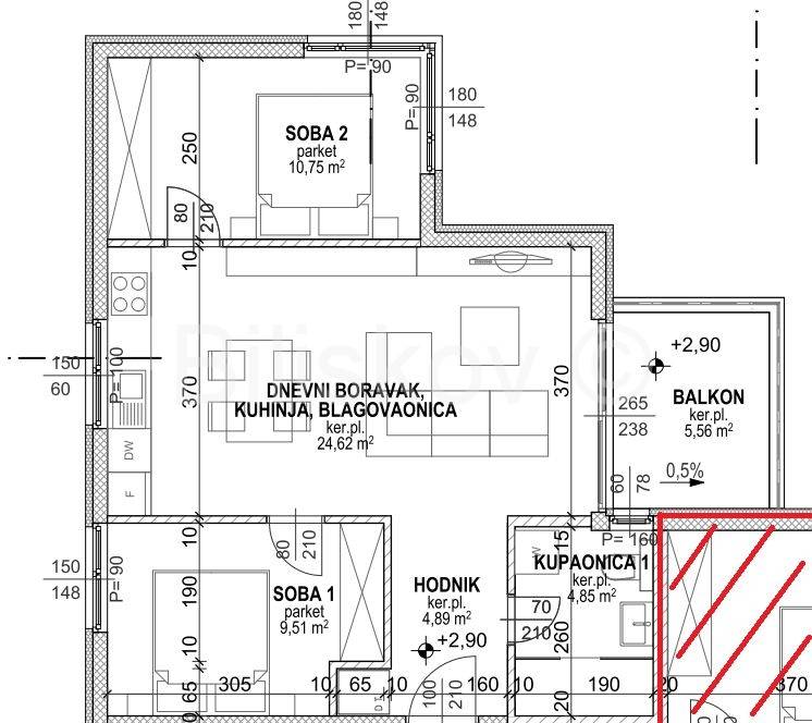
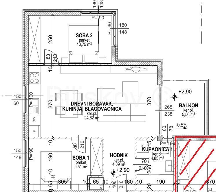
Trosobni apartman zatvorene površine 62,08m2 u prizemlju zgrade sagrađene 2024. godine.
Apartmanu dodatno pripada vrt površine 73,52m2 i garažno parkirno mjesto površine 12,50m2 što ukupno čini površinu od 75,68m2.
Sastoji se od ulaznog hodnika, dnevnog boravka, kuhinje i blagovaonice u open-space konceptu, dvije spavaće sobe, kupaonice i natkrivene terase.
Lokacija je fantastična, samo 2 minute hoda udaljen od poznatog kupališta Slatina, u samom centru mjesta.
Grijanje i hlađenje uređeno je putem Daikin dizalice topline, vanjska stolarija je marke Schuco, prvoklasna talijanska keramika, fasada Sto.
Opatijska rivijera obiluje prekrasno uređenim parkovima, kulturnim i povijesnim znamenitostima te šetnicama uz more. Prekrasne idilične vile, bogatstvo kulturnih zbivanja i pregršt zanimljivosti čekaju da budu otkrivene.
Svojom prekrasnom arhitekturom otmjenih vila, raskošnim parkovima s biljem iz cijelog svijeta i bogatom hotelskom i ugostiteljskom ponudom, Opatija je središte 30 kilometara dugačke rivijere smještene između zelenih obronaka planine Učke i morskog plavetnila - tradicionalno odredište u svako doba godine.
Prodavatelj je pravna osoba u sustavu PDV-a, stoga je kupac oslobođen plaćanja poreza na promet nekretninama.
Moguća je kupnja putem kredita.
Useljenje je predviđeno za 4. mjesec 2024. godine.
Cijena: 495.000 €
Agencijska naknada iznosi 2% od kupoprodajne cijene nekretnine. 

Lokacija

close
Napomena: prikazana je točna lokacija

Dodatni podaci

Podaci o objektu

  • Lift

Funkcionalnosti i karakteristike

  • Podno grijanje
  • Protuprovalna vrata

Ostali objekti i površine

  • Dvorište/vrt

Vrsta parkinga

  • Garažno mjesto
Oglas objavljen 11.03.2024. 15:31
Do isteka još 2 godine i 8 mjeseci
Pregleda 43

Slični oglasi Pogledaj sve oglase

Navedite razlog prijave oglasa

Podijeli oglas

Novogradnja, Opatija, 3-soban stan, 1GPM, vrt 73,52m2

Novogradnja, Opatija, 3-soban stan, 1GPM, vrt 73,52m2

ID oglasa: 54296

Cijena: 495.000,00 €

U usporedbi može biti maksimalno 4 oglasa. Uklonite 1 oglas kako bi dodali novi oglas u usporedbe

PROVJERI OGLASE