Svetvinčenat, okolica, građevinsko zemljište sa projektom i građevinskom dozvolom

Cijena: 140.000,00 €
ID oglasa: 61162

Osnovni podaci

Lokacija Istarska, Svetvinčenat, Svetvinčenat
Tip zemljišta Građevinsko
Površina 548 m²

Opis

Svetvinčenat, građevinsko zemljište sa projektom i građevinskom dozvolom

U blizini renesansnog gradića Svetvinčenta, kojeg odlikuje bogata kulturna baština, raznovrsna gastronomska i turistička ponuda, te brojna događanja tokom cijele godine, prodaje se ovo građevinsko zemljište s projektom za kuću sa bazenom i građevinskom dozvolom.

Zemljište se nalazi na kraju sela u slijepoj ulici, pravilnog je oblika, površine 548 četvornih metara.

Ima pristup sa javnog puta, sa dvije je strane omeđeno suhozidima.

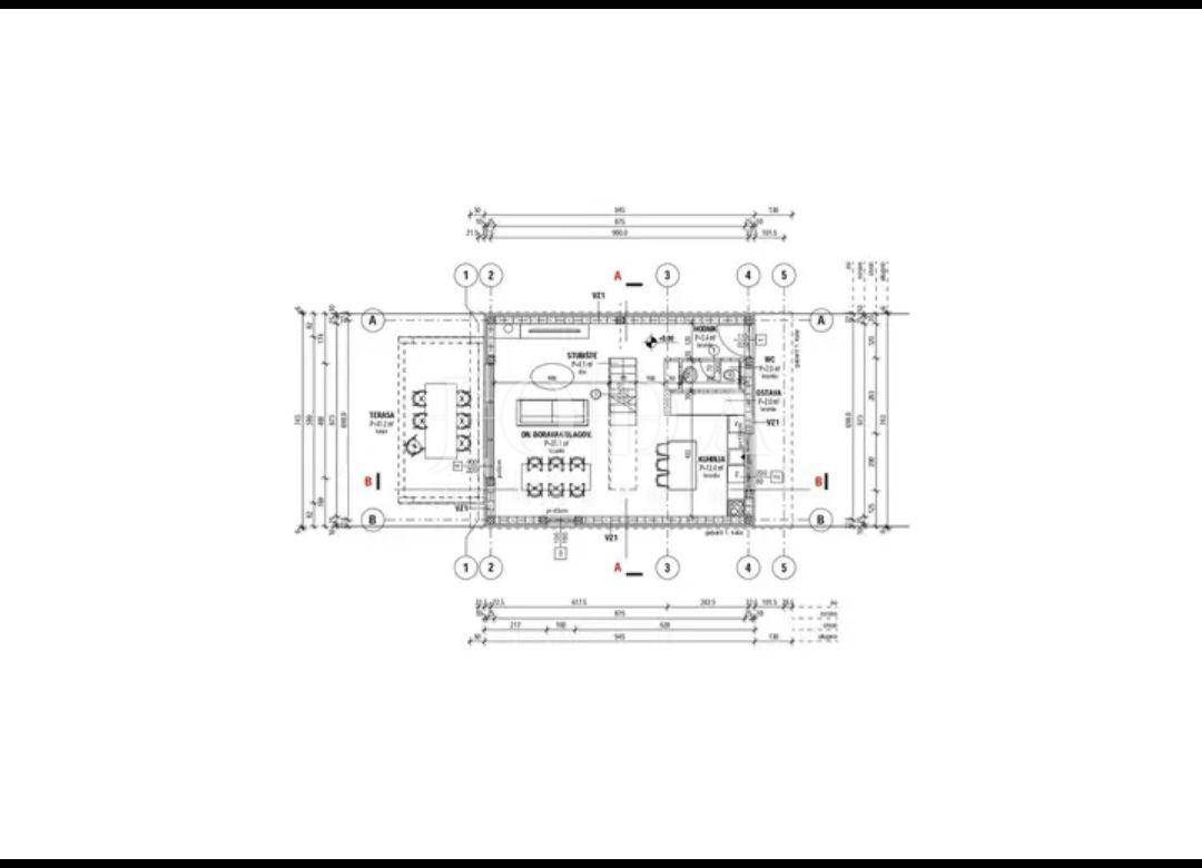
Na navedenom zemljištu predviđena je gradnja samostojeće stambene građevine, prizemlje i kat, bazen i parking za dva auta.

U prizemlju kuće predviđeni su dnevni boravak, blagovaonica i kuhinja kao open space prostor, ostava, toalet i hodnik.

Na kat se dolazi unutarnjim stepenicama, gdje su predviđene tri spavaće sobe svaka sa svojom kupaonom.

Vanjska terasa iznosi 40 četvornih metara, bazen 28 četvornih metara.

U neposrednoj blizini zemljišta nalaze se kuće za odmor, te je ova buduća kuća idealna za sve one koji žele uživati u svim blagodatima koje nudi mirno istarsko selo, bilo za miran obiteljski život ili za iznajmljivanje u turističke svrhe.

Na parceli se nalaze priključci za struju i vodu.

Predan je zahtjev za izdavanje građevinske dozvole za kuću neto površine 120 četvornih metara s pomoćnim objektima, a koja se očekuje na ljeto 2024. godine.

U prodajnu cijenu je uključen glavni projekt, građevinska dozvola ( nakon ishođenja ), priključci struje i vode, plaćeni komunalni doprinosi, pripremljen i očišćen teren za gradnju.

Moguć je dogovor s prodavateljem za izgradnju predmetne građevine u roh-bau fazi ili ključ u ruke.

ID KOD AGENCIJE: TR-5832

Josip Šikić, mag.oec
Agent s licencom
Mob: +385 91 890 4694
Tel: +385 51 403 771
E-mail: [email protected]
www.joda-nekretnine.hr

Lokacija

close
Napomena: prikazana je točna lokacija
Oglas objavljen 17.06.2024. 00:00
Do isteka još 2 godine i 7 mjeseci
Pregleda 44

Slični oglasi Pogledaj sve oglase

Navedite razlog prijave oglasa

Podijeli oglas

Svetvinčenat, okolica, građevinsko zemljište sa projektom i građevinskom dozvolom

Svetvinčenat, okolica, građevinsko zemljište sa projektom i građevinskom dozvolom

ID oglasa: 61162

Cijena: 140.000,00 €

U usporedbi može biti maksimalno 4 oglasa. Uklonite 1 oglas kako bi dodali novi oglas u usporedbe

PROVJERI OGLASE