Građevinsko zemljište 680 m2 s pravomoćnom dozvolom, Svetvinčenat

Cijena: 143.000,00 €
ID oglasa: 120824

Osnovni podaci

Lokacija Istarska, Svetvinčenat, Svetvinčenat
Tip zemljišta Građevinsko
Površina 680 m²

Opis

Na prodaju građevinsko zemljište površine 680 m² smješteno u mirnom naselju, općina Svetvinčenat, uz zeleni pojas koji osigurava privatnost i prirodno okruženje.

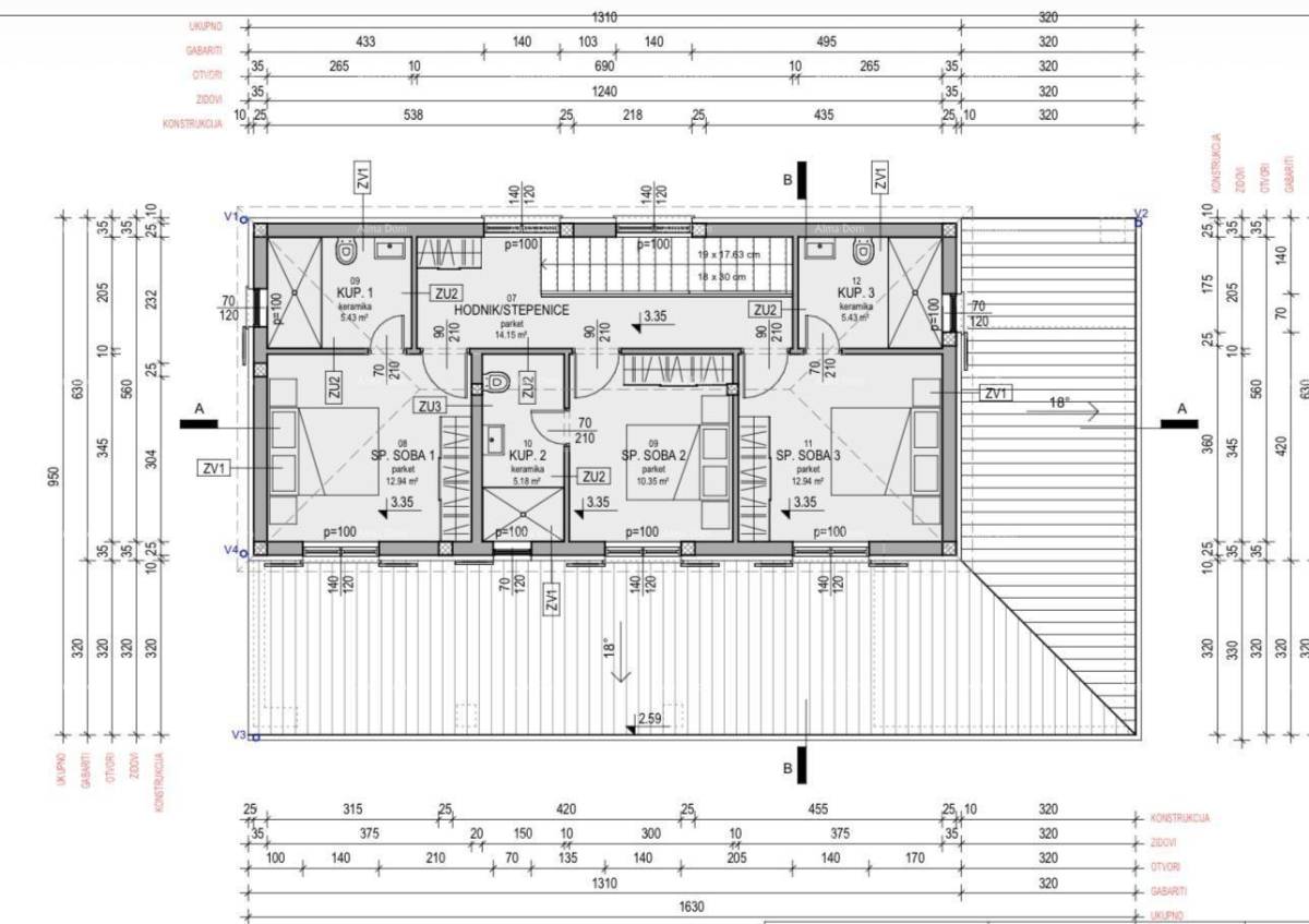
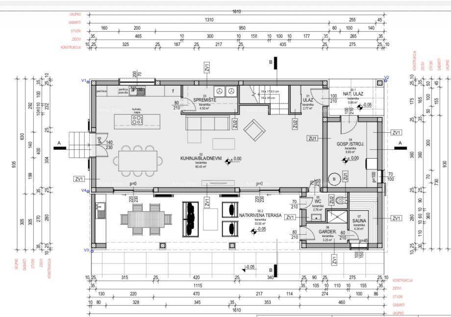
Zemljište dolazi s pravomoćnom građevinskom dozvolom za izgradnju obiteljske kuće s bazenom, ukupne površine 192 m².

Projekt uključuje:

3 spavaće sobe na katu
moderna obiteljska kuća s bazenom
funkcionalan i suvremen raspored prostora

Odlična prilika za izgradnju obiteljske kuće ili kuće za odmor u mirnom istarskom okruženju.

Za dodatne informacije, molimo kontaktirajte:

Azra
+385 91 611 5706
+385 98 420 885
[email protected]

Lokacija

close
Napomena: prikazana je točna lokacija

Kontakt podaci

Adresa 52100 nazovi 052/213-332 Poruka Pošalji privatnu poruku
Verifikacija Korisnik je verificirao broj telefona u državi: Hrvatska
Oglas objavljen 23.04.2026. 00:59
Do isteka još 2 godine i 8 mjeseci
Pregleda 8

Slični oglasi Pogledaj sve oglase

Navedite razlog prijave oglasa

Podijeli oglas

Građevinsko zemljište 680 m2 s pravomoćnom dozvolom, Svetvinčenat

Građevinsko zemljište 680 m2 s pravomoćnom dozvolom, Svetvinčenat

ID oglasa: 120824

Cijena: 143.000,00 €

U usporedbi može biti maksimalno 4 oglasa. Uklonite 1 oglas kako bi dodali novi oglas u usporedbe

PROVJERI OGLASE