SVETA NEDELJA, NOVOGRADNJA

Cijena: 159.500,00 €
ID oglasa: 72336

Osnovni podaci

Lokacija Zagrebačka, Sveta Nedelja, Novaki
Tip stana u stambenoj zgradi
Stambena površina 58 m²
Broj etaža Jednoetažni
Broj soba 1-sobni
Kat 2. kat
Netto površina 42 m²
Godina izgradnje 2026
Broj kupaonica s WC-om 1
Broj WC-a 1
Ukupni broj katova u zgradi 2
Sustav grijanja Dizalica topline
Namještenost i stanje Nenamješten
Broj vlastitih parkirnih mjesta 2
Klima uređaj DA
Kupac ne plaća agencijsku proviziju DA
Mogućnost zamjene Moguća zamjena za drugu nekretninu

Opis

EKSKLUZIVNA NOVOGRADNJA.
BEZ PROVIZIJE ZA KUPCA!
NOVAKI-BESTOVJE NA TOP LOKACIJI . IZMEĐU OFFERTISSIME I LIDLA.

U Svetoj Nedelji gradi se suvremena stambena zgrada koja se nalazi na izuzetno atraktivnoj lokaciji skrivenoj od glavne prometnice i buke dok su najvažniji sadržaji za početak dana poput vrućeg kruha, kave i svježeg mesa udaljeni svega stotinjak metara.
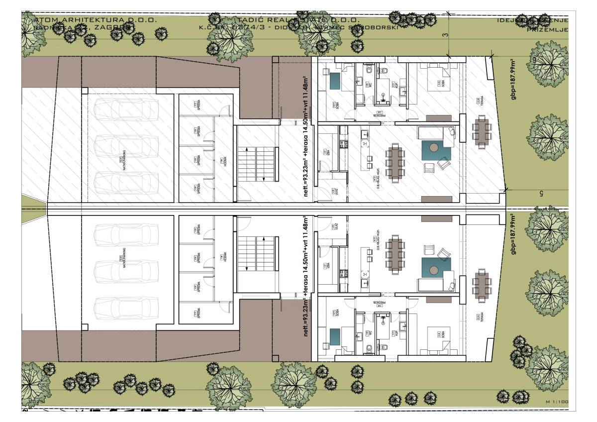
"CVJETNA-NOVAKI" objekat krasi moderna i suvremena novogradnja a sastoji se od 2 zgrade po 4 stana i 2 apartmana. Prizemlja i 2 kata.
Ukupno 10 stambenih jedinica smjestilo se na tri etaže s pripadajućim parkirnim mjestima od kojih su 6 natkrivena, kao i ostave.
Stanovima u prizemlju pridružen je vrt dok stanovi s prvog i s drugog kata osim PM i ostave imaju i natkrivene terase.
ZGRADA A:
-PRIZEMLJE BR.1: 93,23m2 + 14,50m2 terasa + dvorište.+ 2PM
-1KAT: BR.3: 83,30m2 + 5,08m2 balkon + 2PM
-1KAT: BR.4: 109,98m2 + 12m2 balkon + 2PM
-2KAT: BR:7 (Apartman): 41,71m2 + 16,04m2 terasa + 2PM
-2KAT:BR.8: 95m2 + 9,5m2 terasa + 2PM
ZGRADA B:
-PRIZEMLJE 2: 93,23m2 + 14,50m2 terasa + dvorište. +2PM
-1KAT: BR.5: 83,30m2 + 5,08m2 balkon +2PM (REZERVIRAN)
-1KAT: BR.6: 109,98m2 + 12m2 balkon+2PM
-2KAT: BR:9 (Apartman): 41,71m2 + 16,04m2 terasa + 2PM
-2KAT:BR.10: 95m2 + 9,5m2 terasa + 2PM

Objekt visoke energetske učinkovitosti razred "A".

- KONSTRUKTIVNI DJELOVI

- Protupotresni temelji i temeljna ploča
- Nosivi zidovi, thermo blok opeka 25 cm
- Stropna ploča – puna armirano betonska ploča
- Izrada toplinske ovojnice zgrade eps stiropor 15,0 cm

- STOLARIJA

- PROZORI I STJENE PO PROJEKTU

- PVC stolarija u antracit boji sa troslojnim staklima
- Rolete sa termo izoliranom kutijom.
Rolete se pokreću sa elektro motorima.
- Porta fon

- ULAZNA VRATA
- Protuprovalna ulazna vrata na ulazu u zgrade te u stanove.

- SOBNA VRATA
- Soban vrata – ( sobna vrata po izboru investitora.

- PROZORSKE KLUPČICE
- Vanjske prozorske klupčice izrađuju se od aluminija – boja antracit
- Unutarnje kamne prozorske klupčice

- GRIJANJE
- Podno grijanje izvodi se sa svim slojevima predviđenim projektom

- HLAĐENJE
- Sistem hlađenja izvodit će se preko dizalice topline.

- VODA I ODVODANJA
- Voda i odvodnja izvodi se od visokokvalitetnih nisko šumnih cijevi.

- ELEKTRO INSTALACIJE

- Elektro instalacije izvode se prema projektu i standardima.
( Za dodatne želje oko izvođenja elektro instalacija postoji mogućnost dogovora ).

- SANITARIJE
- Sanitarije u kupaonama i kuhinji ( baterije za tuš, umivaonik, te kuhinju )
- Ugradbeni vodokotlić Geberit sa wc školjkom.

- PODNE OBLOGE
- Podne obloge keramika I. klase, vinil ili drvene obloge za podno grijanje,
po dogovoru sa investitorom.

POČETAK RADOVA CAA PROSINAC 2025 god.
ROK ZA USELJENJE CAA PROSINAC 2026 godine.

CIJENA: 2750€ /m2 neto korisne površine.

U Prodaji je Apartman na 2 katu.
Od 42m2 + natkrivena terasa 17m2 (koef. O,5 = 8,5m2) + nenatkrivena terasa 30m2 (koef. 0,25 = 7,5m2
Ukupno 42m2 +8,5m2 +7,5m2 = 58m2 x 2.750 = 159.500€.
Spremište i parkirna mjesta se extra plaćaju.
Mogućnost zamjene za zemljište u Svetoj Nedelji ili Samoboru.

Za sve ostale informacije, obilazak, rezervaciju te kupoprodaju ove Nekretnine obratite Nam se s povjerenjem.

Lokacija

close
Napomena: prikazana je točna lokacija

Dodatni podaci

Podaci o objektu

  • Novogradnja
  • Gradski vodovod
  • Gradska kanalizacija

Balkon/Lođa/Terasa

  • Balkon

Alternativni izvori energije

  • Toplinske pumpe

Funkcionalnosti i karakteristike

  • Protuprovalna vrata
  • Tuš kabina
  • Podno grijanje
  • Električne rolete

Ostali objekti i površine

  • Spremište/šupa

Vrsta parkinga

  • Vanjsko natkriveno mjesto
  • Vanjsko ne-natkriveno mjesto

Dozvole i potvrde

  • Vlasnički list
  • Građevinska dozvola
  • Uporabna dozvola

Kontakt podaci

Oglas objavljen 23.10.2025. 19:25
Do isteka još 2 godine i 7 mjeseci
Pregleda 119

Slični oglasi Pogledaj sve oglase

Navedite razlog prijave oglasa

Podijeli oglas

SVETA NEDELJA,  NOVOGRADNJA

SVETA NEDELJA, NOVOGRADNJA

ID oglasa: 72336

Cijena: 159.500,00 €

U usporedbi može biti maksimalno 4 oglasa. Uklonite 1 oglas kako bi dodali novi oglas u usporedbe

PROVJERI OGLASE