Stan, Split, novogradnja

Cijena: 315.000,00 €
ID oglasa: 112141

Osnovni podaci

Lokacija Splitsko-dalmatinska, Split, Visoka
Tip stana u stambenoj zgradi
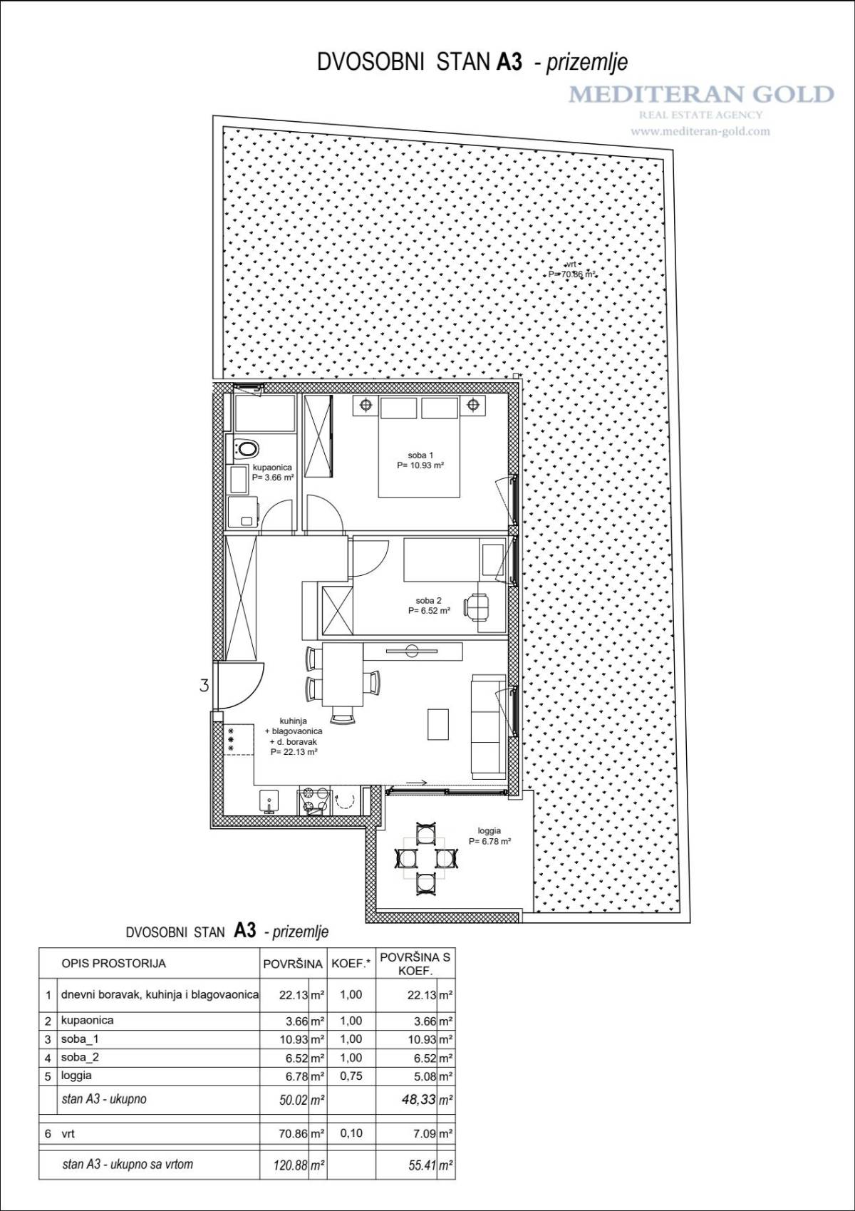
Stambena površina 55,41 m²
Broj etaža Jednoetažni
Broj soba 2-sobni
Kat Prizemlje
Godina izgradnje 2026
Godina zadnje renovacije 2026
Broj kupaonica s WC-om 1
Broj WC-a 1
Ukupni broj katova u zgradi 3
Sustav grijanja Grijalice i radijatori na struju
Namještenost i stanje Nenamješten
Energetski razred A+
Broj vlastitih parkirnih mjesta 1
Postotak agencijske provizije koju plaća kupac 2 %
Mogućnost zamjene Nije moguća zamjena za drugu nekretninu

Opis

Split, Visoka, suvremeni projekt dvije arhitektonski usklađene zgrade, prizemlje i tri kata, smještene u mirnoj ulici, lokacija spaja privatnost i praktičnost: u blizini su škola, vrtić, trgovine i sportski sadržaji, te brzi pristup glavnim prometnicama, uzvišen položaj donosi i lijepi pogled. Eksterijer je oblikovan u kombinaciji travertin fasade, prozirnih staklenih ograda, aluminijskih kliznih roleta i otvora. Uređeni pristupi, hortikultura, ambijentalna led rasvjeta i vanjski video nadzor osiguravaju visoku razinu estetike i sigurnosti. Stanovi su projektirani s naglaskom na funkcionalne tlocrte, odlično prirodno osvjetljenje i izbor premium materijala.
U ponudi stanovi različitih kvadratura. Kvalitena oprema u stanovima, podno grijanje u kupaonicama, vanjski video nadzor, zgrada ima lift. Ishođena pravomoćna građevinska dozvola, predviđeni završetak radova: 12/2027.godine.
Garažna mjesta po cijeni od 35.000€.
IZ PONUDE IZDVAJAMO: DVOSOBAN STAN:
PRIZEMLJE: A3, 55,41m2=315.000€.
Uvjeti kupoprodaje/plaćanje: 50% pri potpisu predugovora, 30% po završetku betonskih radova, 20% po useljenju.

Lokacija

close
Napomena: Prikazana je približna lokacija

Dodatni podaci

Podaci o objektu

  • Novogradnja
  • Lift
  • Pristup za osobe s invaliditetom
  • Gradski vodovod
  • Gradska kanalizacija

Balkon/Lođa/Terasa

  • Lođa (Loggia)

Funkcionalnosti i karakteristike

  • Protuprovalna vrata
  • Video Portafon
  • Tuš kabina
  • Podno grijanje

Ostali objekti i površine

  • Dvorište/vrt

Vrsta parkinga

  • Garažno mjesto

Orijentacija stana

  • Sjever
  • Jug

Dozvole i potvrde

  • Vlasnički list
  • Građevinska dozvola

Kontakt podaci

Oglas objavljen 04.03.2026. 14:37
Do isteka još 2 godine i 6 mjeseci
Pregleda 122

Slični oglasi Pogledaj sve oglase

Navedite razlog prijave oglasa

Podijeli oglas

Stan, Split, novogradnja

Stan, Split, novogradnja

ID oglasa: 112141

Cijena: 315.000,00 €

U usporedbi može biti maksimalno 4 oglasa. Uklonite 1 oglas kako bi dodali novi oglas u usporedbe

PROVJERI OGLASE