ŠIBENIK, SRIMA – Ekskluzivni stan u prizemlju, 70 m od mora i plaže – rijetkost na tržištu

Cijena: 360.397,00 €
ID oglasa: 78951

Osnovni podaci

Lokacija Šibensko-kninska, Vodice, Srima
Tip stana u stambenoj zgradi
Stambena površina 80,79 m²
Broj etaža 2
Broj soba Garsonijera
Kat Prizemlje
Netto površina 80,79 m²
Godina izgradnje 2026
Ukupni broj katova u zgradi 2
Energetski razred A
Broj vlastitih parkirnih mjesta 7+
Klima uređaj DA

Opis

ŠIBENIK, SRIMA – Ekskluzivni stan u prizemlju, 70 m od mora i plaže – rijetkost na tržištu

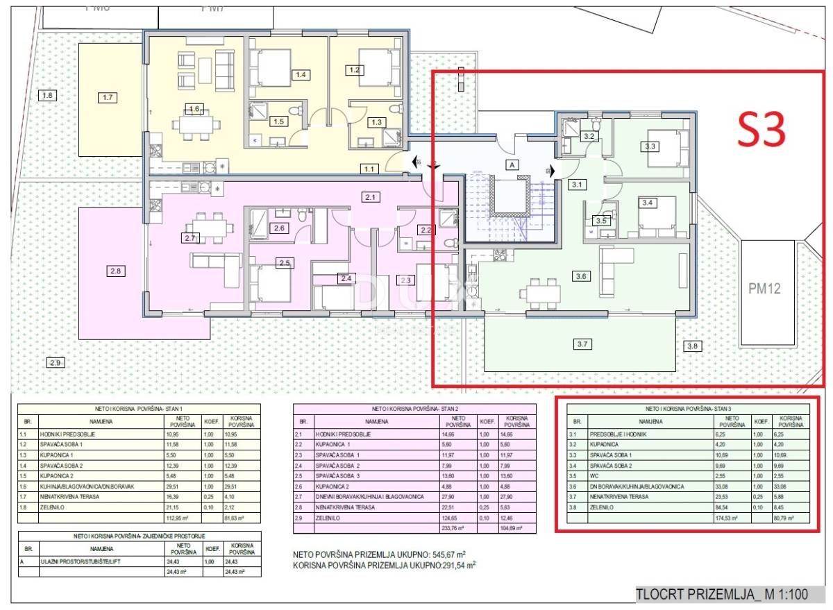
DUX predstavlja moderan stan S3 smješten u novogradnji s ukupno osam stambenih jedinica, na izuzetno atraktivnoj lokaciji u Srimi, svega 70 metara od mora i plaže, u drugom redu od mora.
Ova jedinstvena nekretnina savršeno kombinira vrhunsku kvalitetu gradnje, moderan dizajn i izvanrednu lokaciju, što je čini idealnim izborom za miran obiteljski život, odmor ili investiciju blizu mora.

Stan se nalazi u prizemlju zgrade, što mu omogućuje jednostavan pristup terasi i prostranom vrtu, a zahvaljujući jugoistočnoj orijentaciji, uživa u obilju prirodne svjetlosti tijekom cijelog dana.
Ukupna neto površina stana iznosi 174,53 m², dok korisna stambena površina iznosi 80,79 m².
Posebnu vrijednost ovoj nekretnini daje prostrano dvorište površine čak 84,54 m², što je prava rijetkost na tržištu i savršeno mjesto za opuštanje i uživanje u mediteranskom ambijentu.

Opis prostora:

Stan S3 ima iznimno funkcionalan raspored i prozračne prostorije.
Prilikom ulaska dočekuje vas predsoblje s hodnikom koji vodi u otvoreni prostor dnevnog boravka, kuhinje i blagovaonice s izlazom na veliku nenatkrivenu terasu i uređeni vrt, idealan za boravak na otvorenom.
Tu su i dvije spavaće sobe, kupaonica te odvojeni WC koji osigurava dodatnu praktičnost.

Stanu također pripada jedno parkirno mjesto, što dodatno povećava njegovu funkcionalnost i vrijednost.

Tlocrtna raspodjela (neto površine):

Predsoblje i hodnik: 6,25 m²

Kupaonica: 4,20 m²

Spavaća soba 1: 10,69 m²

Spavaća soba 2: 9,69 m²

WC: 2,55 m²

Dnevni boravak, kuhinja i blagovaonica: 33,08 m²

Nenatkrivena terasa: 23,53 m²

Vrt: 84,54 m²

Ukupna neto površina: 174,53 m²
Korisna stambena površina: 80,79 m²

Oprema i značajke:

Udaljenost od mora i plaže: 70 m / 1 minuta hoda

Orijentacija: jugoistok

Podno grijanje u kupaonici i dnevnom boravku

Klima uređaji u svim prostorijama

PVC stolarija s troslojnim staklima i električnim roletama

Termoizolacijska fasada (10 cm)

Vrhunska keramika i sanitarije renomiranih proizvođača

Visokokvalitetni materijali i završna obrada

Renomirani izvođač s dokazanom reputacijom

Jedno parkirno mjesto uključeno u cijenu

Prostrano dvorište od 84,54 m² – rijetkost na tržištu

Ova moderna novogradnja u Srimi predstavlja izvrsnu priliku za kupnju luksuznog stana u blizini mora, koji spaja udobnost, funkcionalnost i prestižnu lokaciju.
Za sve dodatne informacije i dogovor oko razgledavanja, molimo kontaktirajte nas.

Srima je mirno i šarmantno primorsko naselje poznato po dugim šljunčanim plažama, kristalno čistom moru i opuštenom mediteranskom ozračju.
Zahvaljujući blizini Vodica i Šibenika, nudi savršenu ravnotežu između mira i dostupnosti svih sadržaja potrebnih za ugodan život.

Poštovani klijenti, agencijska provizija naplaćuje se u skladu s Općim uvjetima poslovanja:
www.dux-nekretnine.hr/opci-uvjeti-poslovanja

ID KOD AGENCIJE: 43091

Dux Zadar
Mob: +385 91 312 1121
Tel: +385 91 480 8808
E-mail: [email protected]
www.dux-dalmacija.com

Lokacija

close
Napomena: prikazana je točna lokacija

Dodatni podaci

Balkon/Lođa/Terasa

  • Terasa

Funkcionalnosti i karakteristike

  • Video Portafon

Dozvole i potvrde

  • Građevinska dozvola
Oglas objavljen 03.11.2025. 00:00
Do isteka još 2 godine i 7 mjeseci
Pregleda 56

Slični oglasi Pogledaj sve oglase

Navedite razlog prijave oglasa

Podijeli oglas

ŠIBENIK, SRIMA – Ekskluzivni stan u prizemlju, 70 m od mora i plaže – rijetkost na tržištu

ŠIBENIK, SRIMA – Ekskluzivni stan u prizemlju, 70 m od mora i plaže – rijetkost na tržištu

ID oglasa: 78951

Cijena: 360.397,00 €

U usporedbi može biti maksimalno 4 oglasa. Uklonite 1 oglas kako bi dodali novi oglas u usporedbe

PROVJERI OGLASE