Prodaja, Zagreb,Gračani,luksuzna samostojeća vila,bazen,sauna, parking

Cijena: 1.700.000,00 €
ID oglasa: 54029

Osnovni podaci

Lokacija Zagreb
Tip kuće Samostojeća
Stambena površina 274 m²
Broj etaža Prizemnica
Broj soba 4
Sustav grijanja Sustav grijanja, klimatizacije i ventilacije
Energetski razred A

Opis

www.biliskov.com  ID: 14892
Gračani, Zagreb
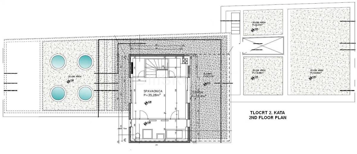
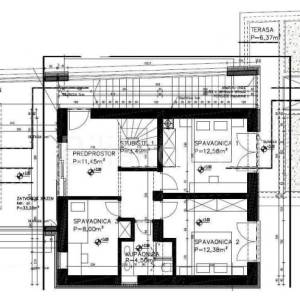
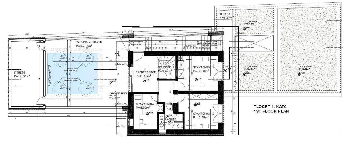
Luksuzna samostojeća četverosobna vila bruto površine 274 m², izgrađena 2016. godine, smjestila se na parceli od 1.111 m².
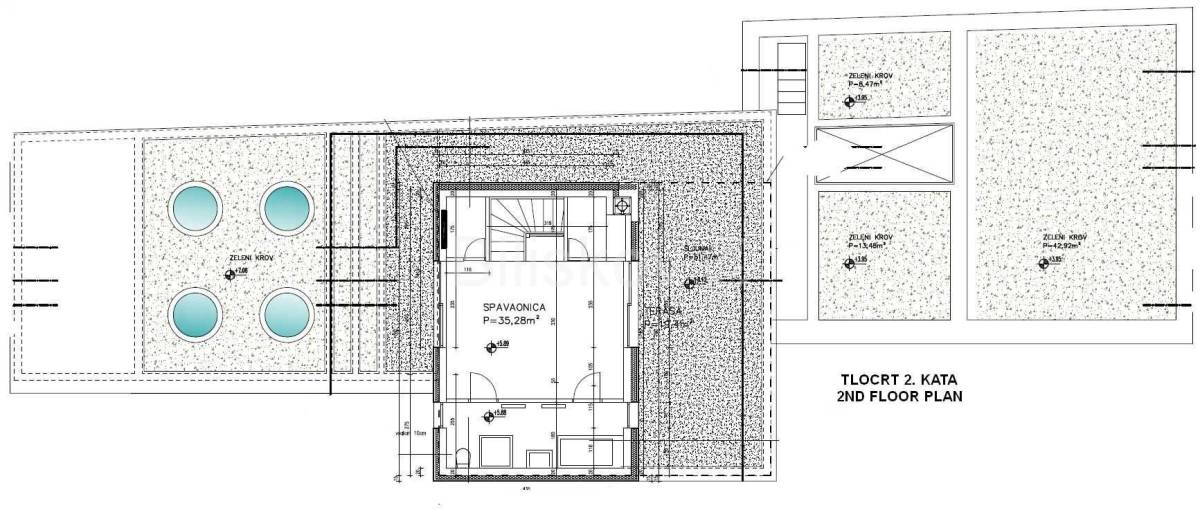
Vila se prostire na četiri etaže i uključuje tri spavaće sobe, ulazni hodnik, predsoblje, stepenište, četiri terase, tri kupaonice s WC-om, prostrani dnevni boravak otvorenog koncepta s kuhinjom i blagovaonicom, bazen, saunu i gospodarsku prostoriju. Dodatnu vrijednost pružaju uređeni vrt i tri parkirna mjesta, od kojih su dva natkrivena.
Smještena na mirnoj lokaciji na obroncima Medvednice, vila je okružena prostranom okućnicom i pažljivo uređenim hortikulturnim vrtom.
U blizini su dostupni svi ključni sadržaji, uključujući supermarket, vrtić, osnovnu školu i ljekarnu, dok se ispred vile nalazi javni besplatni parking. Nekretnina se nalazi u zoni javnog autobusnog prijevoza, a stanica je udaljena minutu hoda.
Ova elegantna nekretnina savršen je izbor za obitelj s dvoje djece, pružajući idealnu ravnotežu između prirodnog okruženja i moderne udobnosti.
Vila je energetski neovisna, opremljena sustavom podnog grijanja na električne dizalice topline te solarnim panelima za grijanje vode i prostora. Sigurnost osiguravaju protuprovalna vrata, alarmni sustav i video nadzor.
Ova jedinstvena nekretnina nudi priliku za luksuzan i udoban život u prirodnom okruženju.
 
Vlasništvo: 1/1
Dokumentacija: Uredna
Orijentacija: Sve strane svijeta
Grijanje: Eletrkično – dizalice topline, klima
Energetski certifikat: A
Stolarija: Alu
Cijena: 1.700.000 €
Pogledajte stan na poveznici: https://youtube.com/shorts/TkO_K2VoEj4
Pogledajte virtualnu kameru: https://360.biliskov.hr/virtual-tour/14892/index.html
Agencijska naknada za kupca: 2 % + PDV od ukupno dogovorene prodajne cijene. 

Lokacija

close
Napomena: prikazana je točna lokacija

Dodatni podaci

Balkon/Lođa/Terasa

  • Balkon
  • Lođa (Loggia)

Funkcionalnosti i karakteristike

  • Alarmni sustav
  • Kamin
  • Podno grijanje
  • Protuprovalna vrata
  • Sauna

Ostali objekti i površine

  • Dvorište/vrt
  • Bazen

Vrsta parkinga

  • Garažno mjesto
  • Vanjsko ne-natkriveno mjesto
Oglas objavljen 10.01.2025. 11:03
Do isteka još 2 godine i 8 mjeseci
Pregleda 160

Slični oglasi Pogledaj sve oglase

Navedite razlog prijave oglasa

Podijeli oglas

Prodaja, Zagreb,Gračani,luksuzna samostojeća vila,bazen,sauna, parking

Prodaja, Zagreb,Gračani,luksuzna samostojeća vila,bazen,sauna, parking

ID oglasa: 54029

Cijena: 1.700.000,00 €

U usporedbi može biti maksimalno 4 oglasa. Uklonite 1 oglas kako bi dodali novi oglas u usporedbe

PROVJERI OGLASE