Prodaja, Zagreb, Gračani, troetažna samostojeća kuća, okućnica, garaža

Cijena: 450.000,00 €
ID oglasa: 54151

Osnovni podaci

Lokacija Zagreb
Tip kuće Samostojeća
Stambena površina 238,21 m²
Broj etaža Prizemnica
Broj soba 8
Netto površina 892 m²
Sustav grijanja Sustav grijanja, klimatizacije i ventilacije
Energetski razred A

Opis

www.biliskov.com ID:  14617
Podsljeme, Gračani
Troetažna, samostojeća kuća s predivnim panoramskim pogledom površine 238 m2 izgrađena 1980. godine na parceli od 892 m2.
Posljednja adaptacija na bila je 2023. godine kada je promijenjen krov.
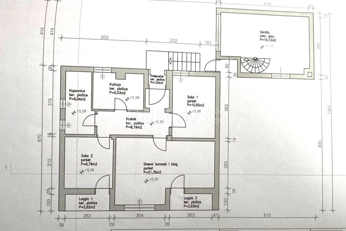
Prizemlje kuće sastoji se od hodnika, dnevnog boravka, kuhinje s blagovaonicom, kupaonice s wc-om, gostinjskog wc-a  i ostave. Pristup katu omogućava prekrasno drveno stubište. Na katu se nalazi hodnik, tri spavaće sobe od kojih dvije imaju izlaz na balkon s kojeg se pruža nevjerojatan pogled, kupaonica s wc-om, dodatna prostorija (18,14 m2),i spremišta ukupne  površine 24,16 m2.
Potkrovlje ima zaseban ulaz, odvojeno je od ostatka kuće, a sastoji se od hodnika, kuhinje, dnevnog boravka i blagovaonice, dvije spavaće sobe, kupaonice s wc-om i dvije loggie s pogledom.
Odlična mikrolokacija za miran obiteljski život na samo 500-tinjak metara od javnog prijevoza, što omogućava brz pristup svim sadržajima potrebnim za kvalitetan i sadržajan život. Do glavnog gradskog trga potrebno je oko 20 minuta javnim prijevozom, a automobilom svega 5-6 minuta, što ovu lokaciju čini savršenom kombinacijom privatnosti i izvanredne povezanosti.
EC: u izradi
Grijanje: Centralno plinsko etažno
Stolarija: PVC
Cijena: 450.000 €
Agencijska naknada za kupca: 2% + PDV od postignute kupoprodajne cijene. 

Lokacija

close
Napomena: prikazana je točna lokacija

Dodatni podaci

Balkon/Lođa/Terasa

  • Balkon

Ostali objekti i površine

  • Spremište/šupa

Vrsta parkinga

  • Garažno mjesto
Oglas objavljen 27.09.2024. 15:51
Do isteka još 2 godine i 8 mjeseci
Pregleda 171

Slični oglasi Pogledaj sve oglase

Navedite razlog prijave oglasa

Podijeli oglas

Prodaja, Zagreb, Gračani, troetažna samostojeća kuća, okućnica, garaža

Prodaja, Zagreb, Gračani, troetažna samostojeća kuća, okućnica, garaža

ID oglasa: 54151

Cijena: 450.000,00 €

U usporedbi može biti maksimalno 4 oglasa. Uklonite 1 oglas kako bi dodali novi oglas u usporedbe

PROVJERI OGLASE