Prodaja, Zagreb, Trnje, penthouse, terasa, 3GPM

Cijena: 3.000.000,00 €
ID oglasa: 54576

Osnovni podaci

Lokacija Zagreb
Tip stana u stambenoj zgradi
Stambena površina 370 m²
Broj etaža Jednoetažni
Broj soba 3
Kat Prizemlje
Sustav grijanja Sustav grijanja, klimatizacije i ventilacije
Energetski razred A

Opis

Trnje, Radnička cesta
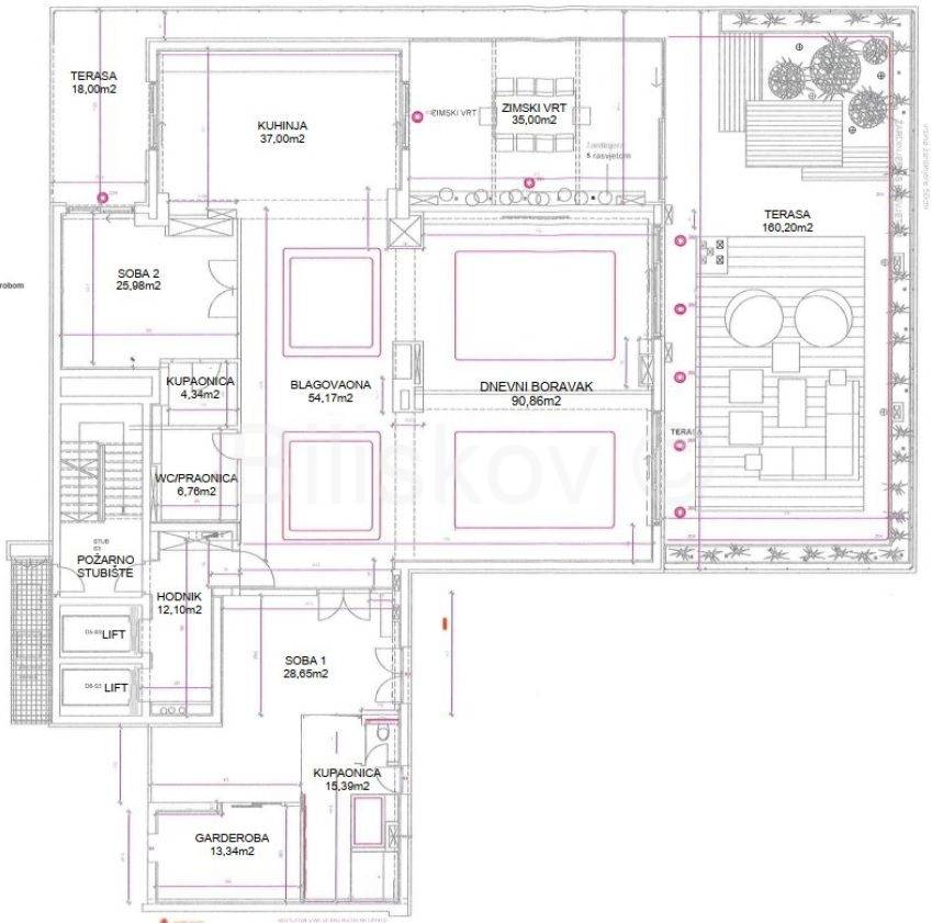
Luksuzan penthouse površine 370 m2 NKP na 5. Katu. Iz garaže se liftom ide direktno u stan. Osiguran je pristup osobama s invaliditetom.
Sastoji se od ulaznog prostora s liftom površine 12m2, dnevnog boravka s blagovaonicom i kuhinjom površine 180m2, 2 velike sobe (mogućnost preinake prostora za dodatnu 1 ili 2 sobe) 3 WC-a i dvije kupaonice. U master sobi se nalazi Jacuzzi, sauna i walke in tuš kabina.
Kuhinja i dnevni boravak imaju direktan izlaz na prekrasnu prostranu terasu površine 213m2.
Stan je luksuzno uređen i vrhunski opremljen, centralno etažno podno grijanje stana i terase, smart home sustav i alu stolarija.
Stan se prodaje s 3 garažna parkirna mjesta na -2 etaži površine 30m2.
Savršena lokacija u blizini svih bitnih sadržaja, prometnica i u središtu Zagrebačkog centralnog poslovnog okruga.
Orijentacija: Sjever - Jug - Istok - Zapad
EC: B
Cijena: 3.000.000,00€
Agencijska provizija: 2% + PDV
www.biliskov.com  ID: 12889
  

Lokacija

close
Napomena: prikazana je točna lokacija

Dodatni podaci

Podaci o objektu

  • Lift

Balkon/Lođa/Terasa

  • Lođa (Loggia)

Funkcionalnosti i karakteristike

  • Alarmni sustav
  • Kamin
  • Podno grijanje
  • Protuprovalna vrata
  • Sauna

Vrsta parkinga

  • Garažno mjesto
Oglas objavljen 16.02.2023. 14:54
Do isteka još 2 godine i 8 mjeseci
Pregleda 193

Slični oglasi Pogledaj sve oglase

Navedite razlog prijave oglasa

Podijeli oglas

Prodaja, Zagreb, Trnje, penthouse, terasa, 3GPM

Prodaja, Zagreb, Trnje, penthouse, terasa, 3GPM

ID oglasa: 54576

Cijena: 3.000.000,00 €

U usporedbi može biti maksimalno 4 oglasa. Uklonite 1 oglas kako bi dodali novi oglas u usporedbe

PROVJERI OGLASE