Prodaja,Trnje,adaptiran dvosoban stan 34m2 na 1 katu zgrade

Cijena: 175.000,00 €
ID oglasa: 114528

Osnovni podaci

Lokacija Zagreb
Tip stana u stambenoj zgradi
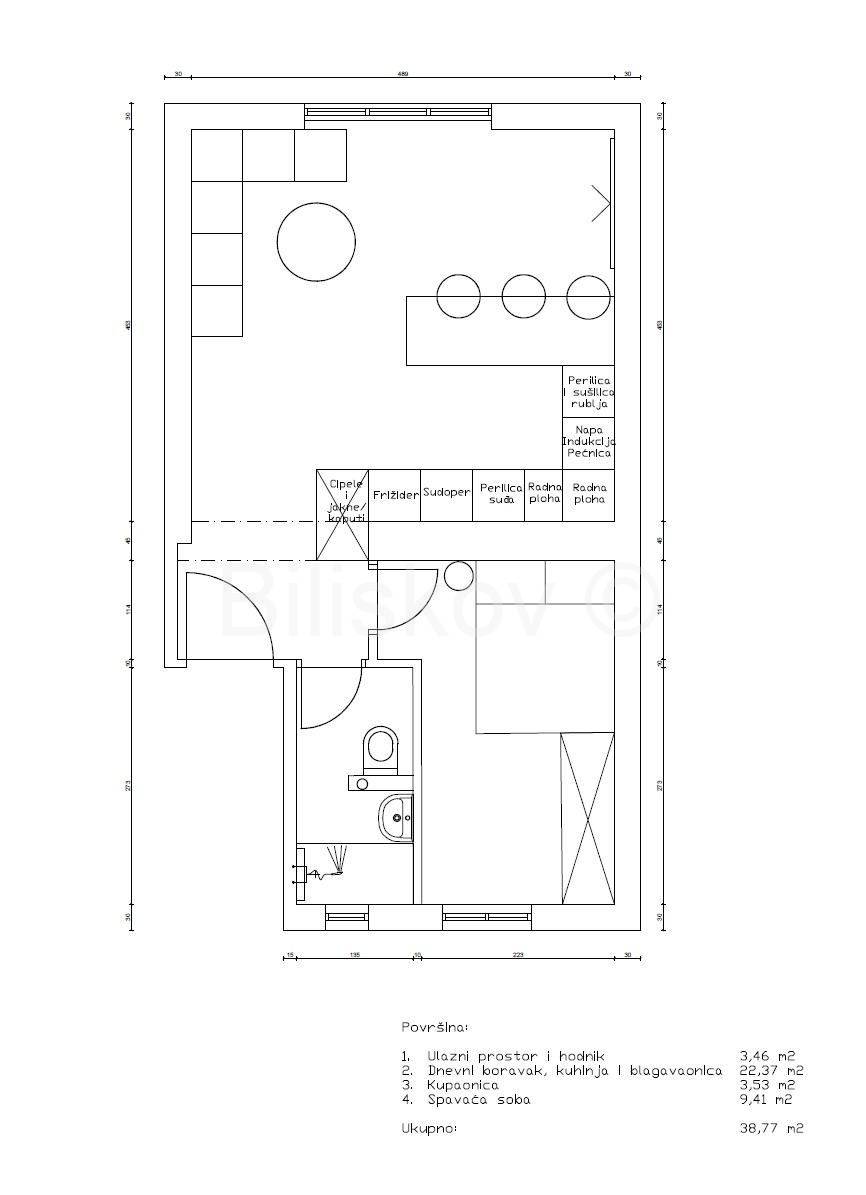
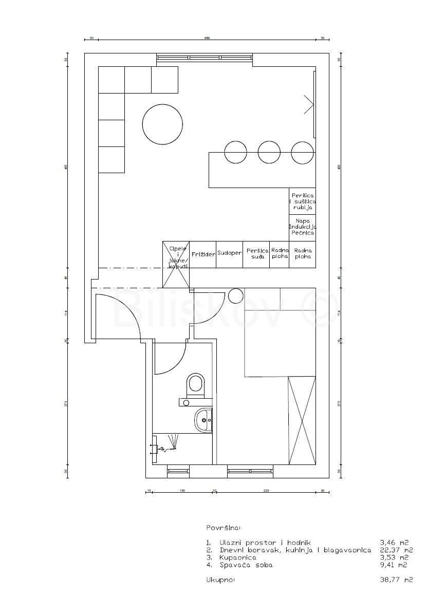
Stambena površina 38,77 m²
Broj etaža 3
Broj soba 2
Kat 1. kat
Ukupni broj katova u zgradi 3
Sustav grijanja Sustav grijanja, klimatizacije i ventilacije
Energetski razred A

Opis

www.biliskov.com ID: 15869
Trnje
Novouređen, u potpunosti adaptiran dvosoban stan površine 34 m2 na 1. katu zgrade bez lifta izgrađene 1936 godine.
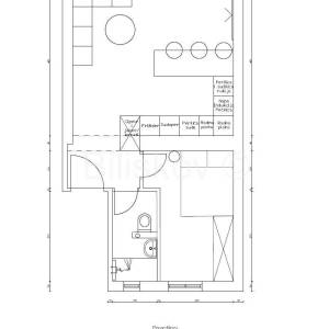
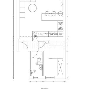
Stan se sastoji od ulaznog prostora i hodnika (3,46 m2), dnevnog boravka, blagavaone i kuhinje (22,37 m2), spavaće sobe (9,41 m2), kupaonice s WC-om (3,53 m2).
Stan će biti kompletno adaptiran; promijenjene instalacije u cijelom stanu (struja i voda),nova protuprovalna vrata, dvoslojna PVC stolarija s komarnicima kao i sva nova sobna vrata. Postavljen je višeslojni parket sa širokim bijelim lajsnama, novi radijatori i klima uređaji u svim sobama, nove kupaonice i saniterija čime je zamijenjen doslovno svaki zamjenjivi segment u stanu.
Atraktivna i izuzetno tražena lokacija u neposrednoj blizini svih bitnih sadržaja.
Idejno rješenje za uređenje prikazano na slikama. Planirani završetak radova 20.04.2026.
Kupci imaju mogućnost odabira podnih obloga i sanitarija, kao i tlocrtnih izmjena, ako kupnja bude realizirana unutar roka adaptacije.
Cijena stana nakon adaptacije iznosit će 185.000,00 €.
Vlasništvo je uredno!
EC: U izradi
Grijanje: Na struju
Cijena: 175.000 €
Agencijska naknada za kupca: 2 % + PDV od postignute kupoprodajne cijene. 

Lokacija

close
Napomena: prikazana je točna lokacija

Dodatni podaci

Funkcionalnosti i karakteristike

  • Protuprovalna vrata

Dozvole i potvrde

  • Vlasnički list
Oglas objavljen 16.03.2026. 16:02
Do isteka još 2 godine i 8 mjeseci
Pregleda 93

Slični oglasi Pogledaj sve oglase

Navedite razlog prijave oglasa

Podijeli oglas

Prodaja,Trnje,adaptiran dvosoban stan 34m2 na 1 katu zgrade

Prodaja,Trnje,adaptiran dvosoban stan 34m2 na 1 katu zgrade

ID oglasa: 114528

Cijena: 175.000,00 €

U usporedbi može biti maksimalno 4 oglasa. Uklonite 1 oglas kako bi dodali novi oglas u usporedbe

PROVJERI OGLASE