Prodaja samostojećih vila s bazenom u luksuznom, stambenom projektu, Labin! Vila E

Cijena: 772.000,00 €
ID oglasa: 80184

Osnovni podaci

Lokacija Istarska, Labin, Labin
Tip kuće Samostojeća
Stambena površina 283 m²
Broj etaža Prizemnica
Broj soba 1

Opis

Prodajemo samostojeće vile s bazenom u novom stambenom projektu, blizina Labina.

Projekt se sastoji od 5 luksuznih vila, svaka villa se sastoji od prizemlja i kata.

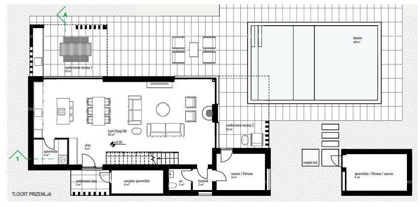
Prizemlje se sastoji od modernog dnevnog dijela sa open space konceptom kuhinje, blagovaone i dnevnog boravka koji doprinosi skladu i funkcionalnosti. u prizemlju se također nalazi i spremište (unutarnje), prostorija za saunu/fitness te prijelaz na 2 natkrivene terase. Uz kuće nalazi se vanjska terasa s natkrivenom vanjskom kuhinjom. Terasa je popločena prefabriciranim betonskim
pločama. Vanjski bazen je dimenzija 9 x 5,3 m i sastoji se od plitkog dječjeg i dubljeg dijela, a u blizini se nalazi
vanjski tuš. Pomoćni objekt u funkciji vanjskog spremišta,površine 12 m2.

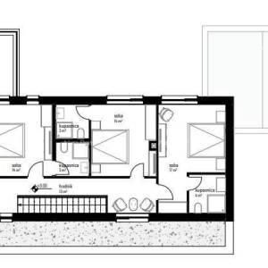
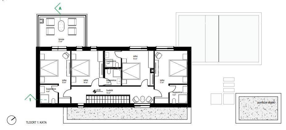
Na katu se nalazi hodnik i 4 spavaće sobe s pripadajućim kupaonicama.
Sobe su orijentirane na sjeverozapad.
Jedna od soba ima izlaz na krovnu terasu površine 17 m2.

Unutrašnja neto površine kuće E je 176 m2.

Predviđeno je postavljanje klima inverterskog sustava za regulaciju temperature, podnog grijanja na fain coil sistem za dodatnu udobnost, te još jedna prednost, postavljanje solarnih elektrana za smanjenje potrošnje energije.
Na krovu kuća postavljeni su fotonaponski moduli ukupne snage 5,46 kWp.

Ville se nalaze u ranoj fazi izgradnje, što predstavlja mogućnost dogovora oko odabira završnih materijala.

Blizina svih potrebnih sadržaja kao što su trgovina, škola, pošta, dom zdravlja, sportski sadržaji, restorani, čine ovu lokaciju odličnim izborom ukoliko se želite baviti turističkim iznajmljivanjem te tako brže vratiti uložena sredstva.

Kuća E
Ukupna površina parcele: 2642 m2
Uređena okućnica: 825 m2 od čega 703 m2 čine zelene
površine, a 122 m2 opločane površine vanjskih terasa
Parking: 138 m2(3 parkirna mjesta).

Rok završetka gradnje - lipanj 2025.

Za dodatne informacije, molimo kontaktirajte:

Azra
+385 91 611 5706
+385 98 420 885
[email protected]

Lokacija

close
Napomena: prikazana je točna lokacija

Kontakt podaci

Adresa 52100 nazovi 052/213-332 Poruka Pošalji privatnu poruku
Verifikacija Korisnik je verificirao broj telefona u državi: Hrvatska
Oglas objavljen 06.11.2025. 01:13
Do isteka još 2 godine i 8 mjeseci
Pregleda 115

Slični oglasi Pogledaj sve oglase

Navedite razlog prijave oglasa

Podijeli oglas

Prodaja samostojećih vila s bazenom u luksuznom, stambenom projektu, Labin! Vila E

Prodaja samostojećih vila s bazenom u luksuznom, stambenom projektu, Labin! Vila E

ID oglasa: 80184

Cijena: 772.000,00 €

U usporedbi može biti maksimalno 4 oglasa. Uklonite 1 oglas kako bi dodali novi oglas u usporedbe

PROVJERI OGLASE