Prodaje se kuća prizemnica u mirnom dijelu Labina

Cijena: 494.400,00 €
ID oglasa: 118580

Osnovni podaci

Lokacija Istarska, Labin, Labin
Tip kuće Samostojeća
Stambena površina 143 m²
Broj etaža Prizemnica
Broj soba 1

Opis

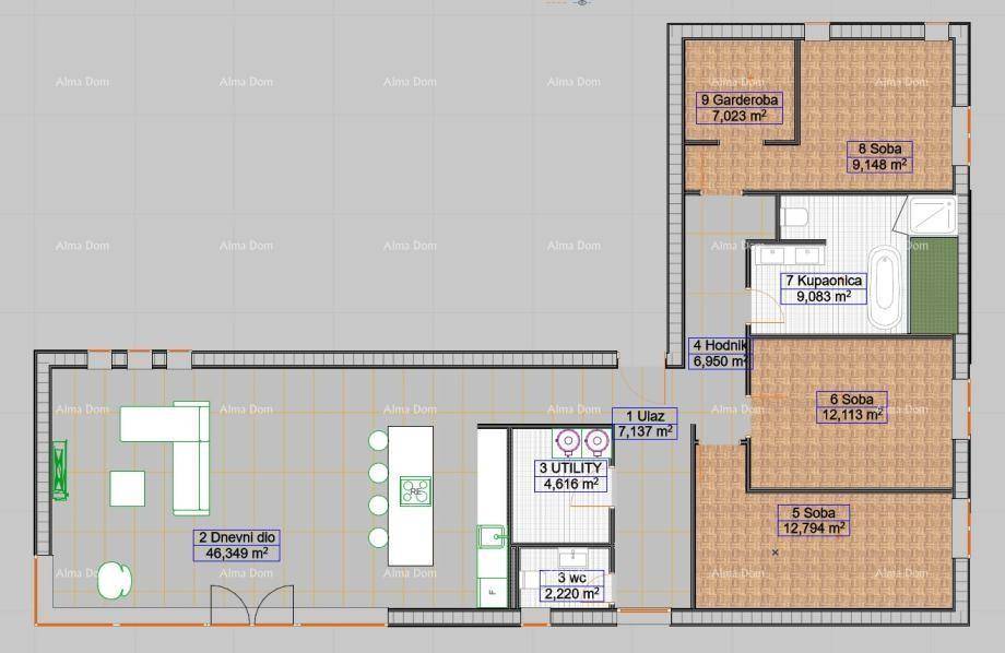
U ponudi je moderno izgrađena prizemna kuća stambene površine 143 m², smještena na izuzetno mirnoj lokaciji, a ipak nadomak starog grada Labina do kojeg se može stići i pješice.

Unutrašnjost kuće koncipirana je s naglaskom na udobnost i funkcionalnost. Središnji dio čini otvoreni dnevni prostor koji povezuje kuhinju, blagovaonicu i dnevni boravak. Uz to, nekretnina raspolaže glavnom spavaćom sobom s vlastitom walk-in garderobom, još dvije dodatne sobe, dvije kupaonice te praktičnom pomoćnom prostorijom.

Kod opremanja se pazilo na kvalitetu i energetsku učinkovitost – ugrađeno je podno grijanje putem dizalice topline, kvalitetna toplinska izolacija te dvije klima jedinice. Kuća ima A+ energetski certifikat.

Okućnica površine 1073 m² pruža dovoljno prostora za uređenje vrta, bazena ili dodatnih sadržaja prema vlastitim željama.

Idealna nekretnina za miran obiteljski život ili kao investicija za turistički najam.

Udaljenost do centra iznosi svega 1 km, dok su prve plaže na manje od 5 km.

Za dodatne informacije, molimo kontaktirajte:

Azra
+385 91 611 5706
+385 98 420 885
[email protected]

Lokacija

close
Napomena: prikazana je točna lokacija

Kontakt podaci

Adresa 52100 nazovi 052/213-332 Poruka Pošalji privatnu poruku
Verifikacija Korisnik je verificirao broj telefona u državi: Hrvatska
Oglas objavljen 10.04.2026. 01:26
Do isteka još 2 godine i 8 mjeseci
Pregleda 19

Slični oglasi Pogledaj sve oglase

Navedite razlog prijave oglasa

Podijeli oglas

Prodaje se kuća prizemnica u mirnom dijelu Labina

Prodaje se kuća prizemnica u mirnom dijelu Labina

ID oglasa: 118580

Cijena: 494.400,00 €

U usporedbi može biti maksimalno 4 oglasa. Uklonite 1 oglas kako bi dodali novi oglas u usporedbe

PROVJERI OGLASE