Prodaja, Pag, Mandre, novogradnja, 3S, 1. red do mora, parking

Cijena: 412.985,70 €
ID oglasa: 53902

Osnovni podaci

Lokacija Zadarska, Kolan, Mandre
Tip stana u stambenoj zgradi
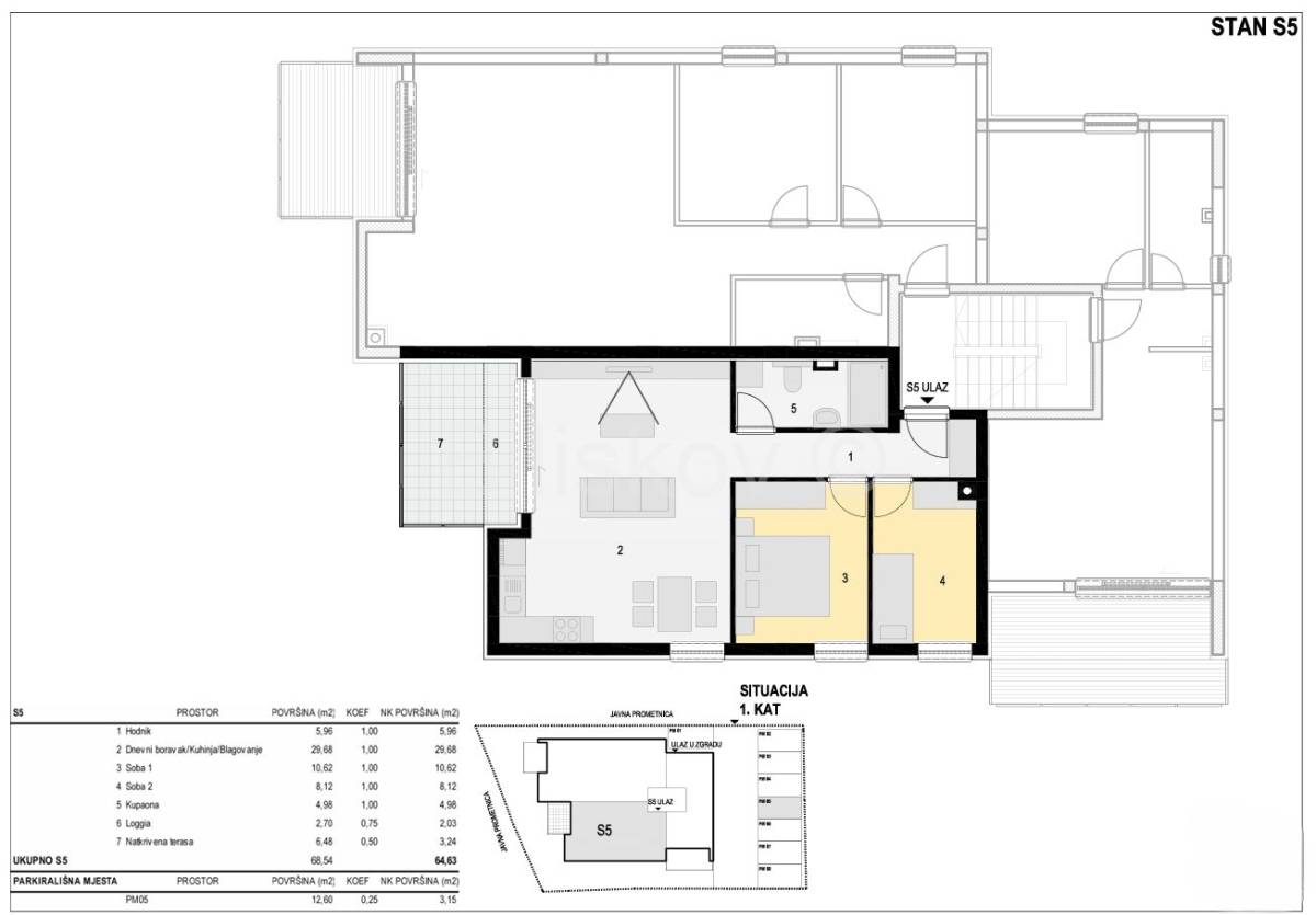
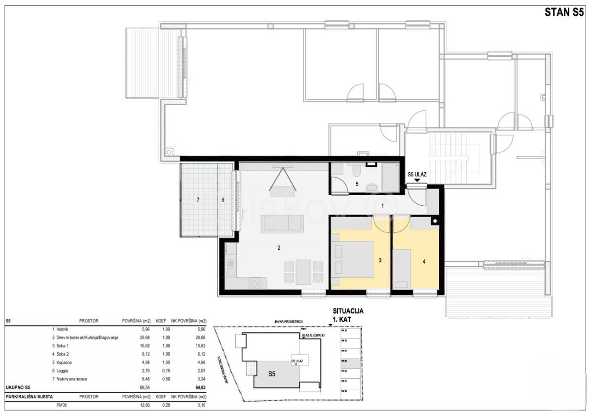
Stambena površina 64,63 m²
Broj etaža 2
Broj soba 3
Kat 1. kat
Ukupni broj katova u zgradi 2
Sustav grijanja Sustav grijanja, klimatizacije i ventilacije
Energetski razred A

Opis

www.biliskov.com ID:15188
Pag, Mandre
Prodaje se trosoban stan površine 64,63 m2 na 1. katu luksuzne novogradnje s 8 stanova čija se izgradnja očekuje kroz 09., 10.mjesec 2025. godine
Stan (S5) sastoji se od ulaznog prostora, hodnika, „open space“ kuhinje, blagovaonice i dnevnog boravka, dvije spavaće sobe, kupaonice, loggie i balkona.
Stanu pripada vanjsko nenatkriveno parkirno mjesto.
Izuzetna lokacija na otoku Pagu – nekretnina tik uz more, s panoramskim pogledom i direktnim pristupom plaži. Rijetkost na tržištu, idealna za ekskluzivnu turističku ponudu ili privatnu oazu mira. Luka Mandre i svi ključni sadržaji nalaze se na svega 700 metara udaljenosti.
Kvalitetna izvezdba i materijali gradnje osiguravaju sigurnost i udobnost.
Energetski certifikat: u izradi
Vanjska Stolarija: Aluminijska s dvoslojnim staklima i električnim podizačima roleta (Schuco)
Grijanje: Dizalica topline (podno grijanje)        
Cijena: 412.985,70 €
Agencijska naknada za kupca: 2 % + PDV od postignute kupoprodajne cijene.
 
  

Lokacija

close
Napomena: Prikazana je približna lokacija

Dodatni podaci

Balkon/Lođa/Terasa

  • Balkon

Funkcionalnosti i karakteristike

  • Podno grijanje
  • Protuprovalna vrata

Vrsta parkinga

  • Vanjsko ne-natkriveno mjesto
Oglas objavljen 11.04.2025. 12:34
Do isteka još 2 godine i 8 mjeseci
Pregleda 32

Slični oglasi Pogledaj sve oglase

Navedite razlog prijave oglasa

Podijeli oglas

Prodaja, Pag, Mandre, novogradnja, 3S, 1. red do mora, parking

Prodaja, Pag, Mandre, novogradnja, 3S, 1. red do mora, parking

ID oglasa: 53902

Cijena: 412.985,70 €

U usporedbi može biti maksimalno 4 oglasa. Uklonite 1 oglas kako bi dodali novi oglas u usporedbe

PROVJERI OGLASE