PAG, MANDRE - Moderna novogradnja s pogledom na more 80 metara od plaže! S8

Cijena: 294.480,00 €
ID oglasa: 73009

Osnovni podaci

Lokacija Zadarska, Kolan, Mandre
Tip stana u stambenoj zgradi
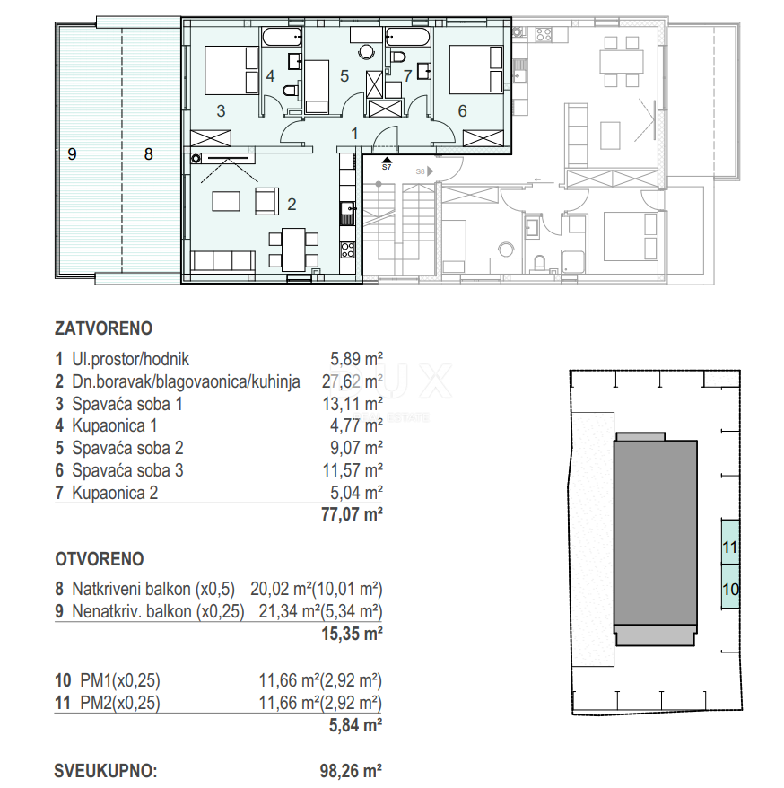
Stambena površina 73,62 m²
Broj etaža 2
Broj soba Garsonijera
Kat 2. kat
Netto površina 73,62 m²
Godina izgradnje 2026
Ukupni broj katova u zgradi 2
Energetski razred A
Klima uređaj DA

Opis

PAG, MANDRE - Moderna novogradnja s pogledom na more 80 metara od plaže! S8

Prodaje se atraktivan stan S8 u novogradnji smještenoj u Mandrama, samo 80 metara od prekrasne plaže. Zgrada sadrži ukupno osam modernih stanova, građenih s naglaskom na kvalitetu, udobnost i suvremeni stil života.

Stan S8 nalazi se na drugom katu te se sastoji od dvije spavaće sobe, kupaonice s podnim grijanjem, prostranog dnevnog boravka s kuhinjom i blagovaonicom te natkrivene terase s pogledom na more idealne za opuštanje u toplim ljetnim večerima. Stanu pripadaju i dva parkirna mjesta.

Ova novogradnja predstavlja savršen spoj modernog dizajna i mediteranskog šarma – idealna za odmor, ali i kao investicija za najam tijekom turističke sezone.

Mandre su slikovito ribarsko mjesto na otoku Pagu, poznato po čistom moru, uređenim plažama i mirnoj atmosferi. Otok Pag oduševljava svojom jedinstvenom prirodom, bogatom gastronomskom ponudom, paškog sira i vina, te autentičnim dalmatinskim duhom.

Za više informacija i razgledavanje ove nekretnine, slobodno nas kontaktirajte – vaš novi dom uz more čeka vas u Mandrama!

Poštovani klijenti, agencijska provizija naplaćuje se u skladu s Općim uvjetima poslovanja:
www.dux-nekretnine.hr/opci-uvjeti-poslovanja

ID KOD AGENCIJE: 42871

Josip Šestan
Agent s licencom
Mob: +385 91 799 6986
Tel: +385 91 480 8808
E-mail: [email protected]
www.dux-dalmacija.com

Lokacija

close
Napomena: prikazana je točna lokacija

Dodatni podaci

Podaci o objektu

  • Gradski vodovod

Balkon/Lođa/Terasa

  • Terasa

Dozvole i potvrde

  • Građevinska dozvola
Oglas objavljen 24.10.2025. 00:00
Do isteka još 2 godine i 7 mjeseci
Pregleda 69

Slični oglasi Pogledaj sve oglase

Navedite razlog prijave oglasa

Podijeli oglas

PAG, MANDRE - Moderna novogradnja s pogledom na more 80 metara od plaže! S8

PAG, MANDRE - Moderna novogradnja s pogledom na more 80 metara od plaže! S8

ID oglasa: 73009

Cijena: 294.480,00 €

U usporedbi može biti maksimalno 4 oglasa. Uklonite 1 oglas kako bi dodali novi oglas u usporedbe

PROVJERI OGLASE