PAG, MANDRE - Moderna novogradnja s pogledom na more 80 metara od plaže! S4

Cijena: 180.120,00 €
ID oglasa: 73016

Osnovni podaci

Lokacija Zadarska, Kolan, Mandre
Tip stana u stambenoj zgradi
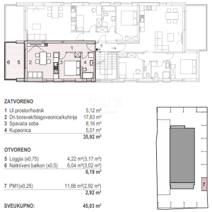
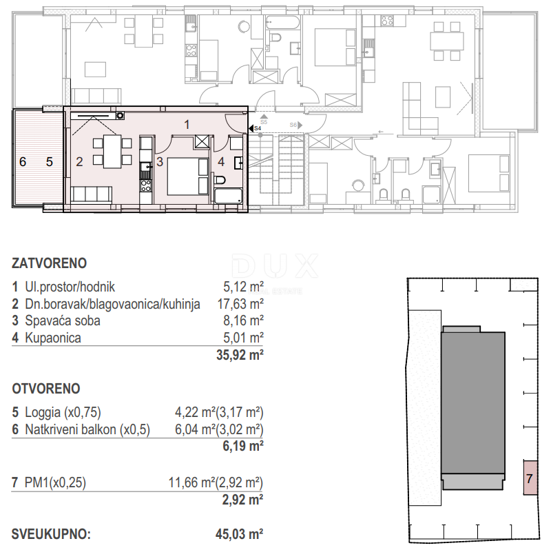
Stambena površina 45,03 m²
Broj etaža 2
Broj soba Garsonijera
Kat 1. kat
Netto površina 45,03 m²
Godina izgradnje 2026
Ukupni broj katova u zgradi 2
Energetski razred A
Klima uređaj DA

Opis

PAG, MANDRE - Moderna novogradnja s pogledom na more 80 metara od plaže! S4

Prodaje se atraktivan stan S4 u novogradnji smještenoj u Mandrama, samo 80 metara od prekrasne plaže. Zgrada sadrži ukupno osam modernih stanova, građenih s naglaskom na kvalitetu, udobnost i suvremeni stil života.

Stan S4 nalazi se na katu te se sastoji od spavaće sobe, kupaonice s podnim grijanjem, dnevnog boravka s kuhinjom i blagovaonicom te natkrivene terase idealne za opuštanje u toplim ljetnim večerima. Stanu pripada i parkirng mjesto. Sve prostorije opremljene su klima uređajima, dok stanovi na prvom i drugom katu nude prekrasan pogled na more.

Ova novogradnja predstavlja savršen spoj modernog dizajna i mediteranskog šarma – idealna za odmor, ali i kao investicija za najam tijekom turističke sezone.

Mandre su slikovito ribarsko mjesto na otoku Pagu, poznato po čistom moru, uređenim plažama i mirnoj atmosferi. Otok Pag oduševljava svojom jedinstvenom prirodom, bogatom gastronomskom ponudom, paškog sira i vina, te autentičnim dalmatinskim duhom.

Za više informacija i razgledavanje ove nekretnine, slobodno nas kontaktirajte – vaš novi dom uz more čeka vas u Mandrama!

Poštovani klijenti, agencijska provizija naplaćuje se u skladu s Općim uvjetima poslovanja:
www.dux-nekretnine.hr/opci-uvjeti-poslovanja

ID KOD AGENCIJE: 42862

Josip Šestan
Agent s licencom
Mob: +385 91 799 6986
Tel: +385 91 480 8808
E-mail: [email protected]
www.dux-dalmacija.com

Lokacija

close
Napomena: prikazana je točna lokacija

Dodatni podaci

Podaci o objektu

  • Gradski vodovod

Balkon/Lođa/Terasa

  • Terasa

Dozvole i potvrde

  • Građevinska dozvola
Oglas objavljen 24.10.2025. 00:00
Do isteka još 2 godine i 7 mjeseci
Pregleda 46

Slični oglasi Pogledaj sve oglase

Navedite razlog prijave oglasa

Podijeli oglas

PAG, MANDRE - Moderna novogradnja s pogledom na more 80 metara od plaže! S4

PAG, MANDRE - Moderna novogradnja s pogledom na more 80 metara od plaže! S4

ID oglasa: 73016

Cijena: 180.120,00 €

U usporedbi može biti maksimalno 4 oglasa. Uklonite 1 oglas kako bi dodali novi oglas u usporedbe

PROVJERI OGLASE