Prodaja moderne, luksuzne vile s bazenom, Kaštelir Labinci, Poreč!

Cijena: 1.250.000,00 €
ID oglasa: 119019

Osnovni podaci

Lokacija Istarska, Kaštelir-Labinci, Kaštelir
Tip kuće Samostojeća
Stambena površina 99 m²
Broj etaža Prizemnica
Broj soba 1

Opis

Novo u ponudi!

Prodajemo luksuznu vilu u Kašteliru s bazenom!
Ova prekrasna vila kombinira modernu arhitekturu s luksuznim sadržajima, pružajući savršen spoj udobnosti i stila. Prostrana nekretnina prostire se na tri etaže, a njezin otvoreni tlocrt dizajniran je kako bi maksimalno iskoristio prirodno svjetlo i pružio pogled na okolinu.

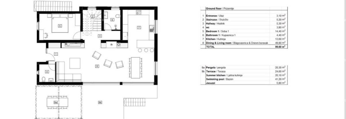
Prizemlje:
Prizemlje se sastoji od prostranog ulaza koji vodi u veliki dnevni boravak i blagovaonicu (48,89 m²) Uz dnevni boravak se nalazi moderna, potpuno opremljena kuhinja (6,90 m²). Na ovoj razini također se nalazi udobna spavaća soba, potpuno opremljena kupaonica te WC za goste. Velika vanjska terasa, ljetna kuhinja i elegantna pergola (20,30 m²) šire unutarnji prostor prema van, savršeni za uživanje u lijepo uređenom vrtu i bazenu.

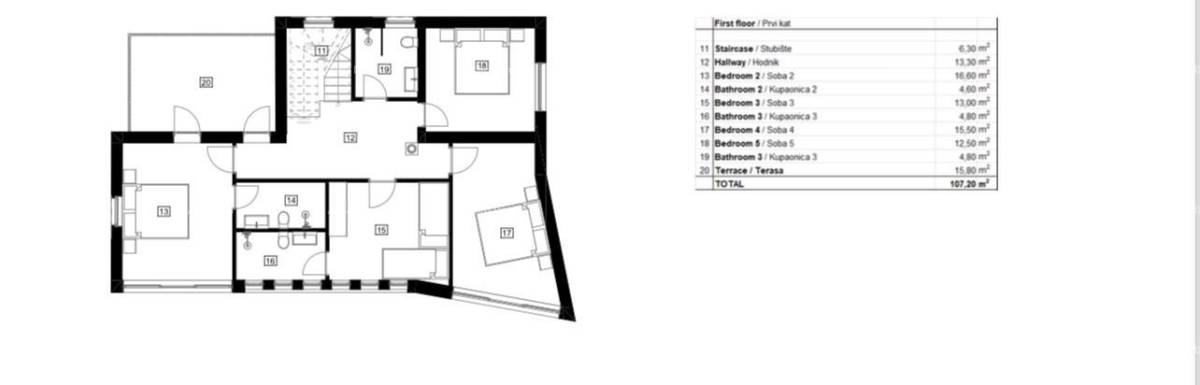
Prvi kat:

Prvi kat nudi pažljivo osmišljen raspored s četiri prostrane spavaće sobe, svaka s puno prirodnog svjetla i pogleda. Glavna spavaća soba (15,90 m²) ima vlastitu kupaonicu (4,80 m²). Dvije dodatne kupaonice služe ostalim spavaćim sobama. Na ovom katu nalazi se i velika terasa (16,80 m²), idealna za opuštanje i uživanje u panoramskom pogledu.

Krov:
Na krovu vile nalazi se predivno uređena terasa (27,90 m²) s pergolom (23,90 m²), koja pruža ekskluzivan prostor za objedovanje na otvorenom, sunčanje ili opuštanje uz prekrasan pogled.

Podrum:
Podrum nudi različite funkcionalne prostore, uključujući teretanu (26,50 m²), saunu (14,30 m²) i veliku garažu (47,90 m²). Također se nalazi tehnička soba (11,60 m²) i dodatni prostor za pohranu.

Vanjski prostor:
Vila se nalazi u lijepo uređenom vrtu s privatnim bazenom (41,20 m²) i jacuzzijem (5,80 m²). Vanjski prostor je pažljivo dizajniran s dovoljno prostora za opuštanje i aktivnosti na otvorenom.

Ukupna površina:
Vila nudi ukupno 323,50 m² unutarnjeg prostora i 132,60 m² vanjskog prostora, što je čini savršenim izborom za obitelji ili pojedince koji traže moderan, luksuzan život u mirnom okruženju.

Za dodatne informacije, molimo kontaktirajte:

Azra
+ 385 91 611 5706
+385 98 420 885
[email protected]

Lokacija

close
Napomena: prikazana je točna lokacija

Kontakt podaci

Adresa 52100 nazovi 052/213-332 Poruka Pošalji privatnu poruku
Verifikacija Korisnik je verificirao broj telefona u državi: Hrvatska
Oglas objavljen 12.04.2026. 01:07
Do isteka još 2 godine i 8 mjeseci
Pregleda 86

Slični oglasi Pogledaj sve oglase

Navedite razlog prijave oglasa

Podijeli oglas

Prodaja moderne, luksuzne vile s bazenom, Kaštelir Labinci, Poreč!

Prodaja moderne, luksuzne vile s bazenom, Kaštelir Labinci, Poreč!

ID oglasa: 119019

Cijena: 1.250.000,00 €

U usporedbi može biti maksimalno 4 oglasa. Uklonite 1 oglas kako bi dodali novi oglas u usporedbe

PROVJERI OGLASE