Prodaja - Kamena istarska kuća s projektom i predanom dokumentacijom –blizina Tinjan!

Cijena: 85.000,00 €
ID oglasa: 115173

Osnovni podaci

Lokacija Istarska, Tinjan, Tinjan
Tip kuće Samostojeća
Stambena površina 73 m²
Broj etaža Prizemnica
Broj soba 1

Opis

Na prodaju je stara kuća/ruševina s izrađenim projektom rekonstrukcije, na zemljištu površine 95 m², smještena u manjem mjestu, u blizini Sv.Lovreča i Tinjana.
Ova nekretnina predstavlja idealnu priliku za ulaganje – projekt je već gotov, a u tijeku je ishođenje građevinske dozvole.

Osnovni podaci:

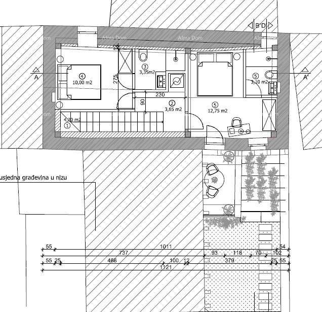
Površina postojeće ruševine: 73 m²

Dvorište: 22 m²

Tlocrtna projekcija postojeće građevine: 61,65 m² + vanjsko stubište 11,10 m²

Vanjski gabariti: 11,24 x 5,26 m (stub. 7,21 x 1,81 m)

Visina do vijenca: 6,30 m

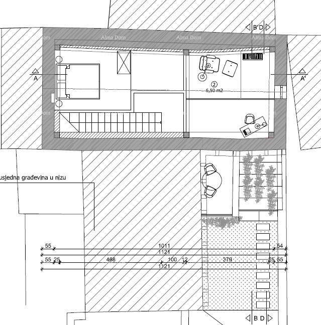
Projektom rekonstrukcije predviđena je izgradnja obiteljske kuće na tri etaže (prizemlje + kat + potkrovlje), s jednom stambenom jedinicom i pristupom iz prizemlja sa zapadne strane.
Planirano je uklanjanje dijela vanjskog stubišta radi funkcionalnijeg rasporeda i veće okućnice, uz zadržavanje autentičnog karaktera stare istarske kuće, prilagođene suvremenom načinu života.

Ova nekretnina nudi savršenu priliku za stvaranje šarmantnog doma po vlastitim željama – bilo za obiteljski život, odmor ili kao atraktivnu investiciju.

Za više informacija, molimo kontaktirajte:
Azra
+385 91 611 5706
+385 98 420 885
[email protected]

Lokacija

close
Napomena: prikazana je točna lokacija

Kontakt podaci

Adresa 52100 nazovi 052/213-332 Poruka Pošalji privatnu poruku
Verifikacija Korisnik je verificirao broj telefona u državi: Hrvatska
Oglas objavljen 20.03.2026. 01:06
Do isteka još 2 godine i 8 mjeseci
Pregleda 39

Slični oglasi Pogledaj sve oglase

Navedite razlog prijave oglasa

Podijeli oglas

Prodaja - Kamena istarska kuća s projektom i predanom dokumentacijom –blizina Tinjan!

Prodaja - Kamena istarska kuća s projektom i predanom dokumentacijom –blizina Tinjan!

ID oglasa: 115173

Cijena: 85.000,00 €

U usporedbi može biti maksimalno 4 oglasa. Uklonite 1 oglas kako bi dodali novi oglas u usporedbe

PROVJERI OGLASE