Samostojeća kuća u izgradnji – Tinjan

Cijena: 190.000,00 €
ID oglasa: 116708

Osnovni podaci

Lokacija Istarska, Tinjan, Tinjan
Tip kuće Samostojeća
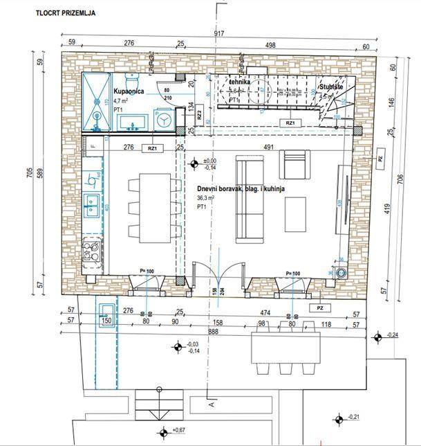
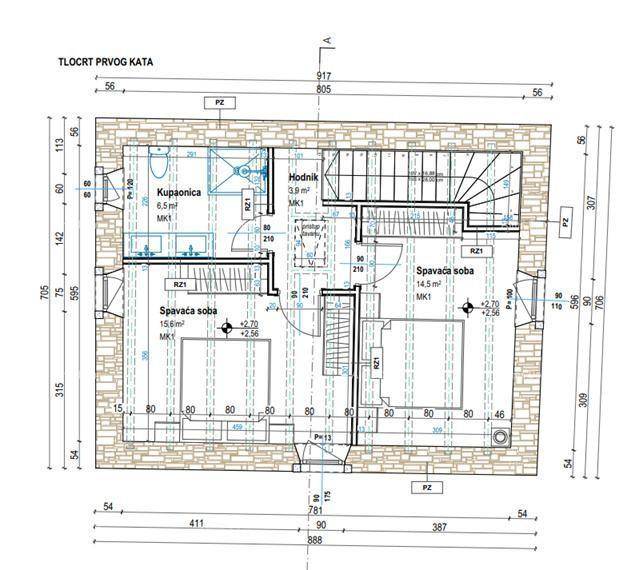
Stambena površina 82 m²
Broj etaža Prizemnica
Broj soba 1

Opis

Na prodaju je samostojeća kuća smještena u mirnom naselju općine Tinjan, s već ishodovanom građevinskom dozvolom i prijavljenim početkom gradnje – idealna prilika za one koji žele dovršiti kuću po vlastitim željama, s već završenim ključnim građevinskim fazama.

Dosad izvedeni radovi uključuju:
Izlivena AB podna ploča
Postavljena armiranobetonska međukatna konstrukcija
Ugrađene betonske stepenice
Izrađena nova drvena krovna konstrukcija s kompletnom izolacijom i završnim pokrovom od crijepa "mediteran"
Izgrađen pregradni zid za WC u prizemlju
Prema projektu, izrađeni su novi vanjski otvori (4) s ugrađenim starim ertama na pročelju, što čuva tradicionalni istarski izgled objekta

Na parceli su već dovedeni priključci:
Voda (aktivni priključak)
Građevinski priključak struje

Ova nekretnina pruža odličnu osnovu za izgradnju obiteljske kuće ili kuće za odmor, uz već dovršene ključne građevinske radove. Lokacija nudi mir i privatnost.

Za više informacija pogledajte sljedeće informacije:
Azra
+385 91 611 5706
+385 98 420 885
[email protected]

Lokacija

close
Napomena: prikazana je točna lokacija

Kontakt podaci

Adresa 52100 nazovi 052/213-332 Poruka Pošalji privatnu poruku
Verifikacija Korisnik je verificirao broj telefona u državi: Hrvatska
Oglas objavljen 29.03.2026. 01:03
Do isteka još 2 godine i 8 mjeseci
Pregleda 22

Slični oglasi Pogledaj sve oglase

Navedite razlog prijave oglasa

Podijeli oglas

Samostojeća kuća u izgradnji – Tinjan

Samostojeća kuća u izgradnji – Tinjan

ID oglasa: 116708

Cijena: 190.000,00 €

U usporedbi može biti maksimalno 4 oglasa. Uklonite 1 oglas kako bi dodali novi oglas u usporedbe

PROVJERI OGLASE