Prodaja građevinske parcele sa ishodovanom, pravomoćnom građevinskom dozvolom , BIBIĆI!!

Cijena: 72.000,00 €
ID oglasa: 113524

Osnovni podaci

Lokacija Istarska, Svetvinčenat, Svetvinčenat
Tip zemljišta Građevinsko
Površina 472 m²

Opis

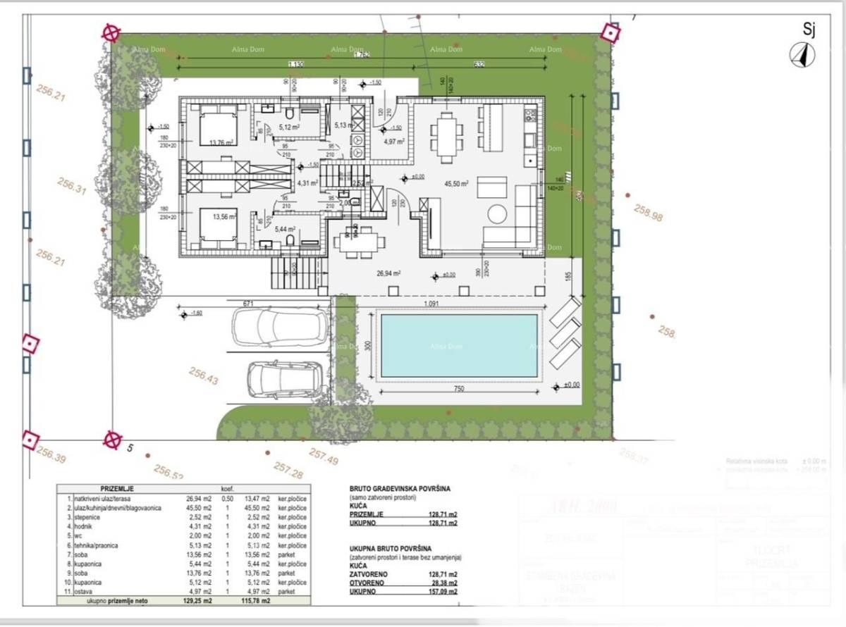
Prodaja građevinskog zemljišta .
Naseljeni dio mjesta, zemljište je okruženo sa lijepim, novim , modernim kućama sa bazenima.

U naselju Bibići, prodajemo građevinsko zemljište, površine 472m2.

Zemljište se nalazi svega nekoliko minuta vožnje do Svetvinčentata i posjeduje projekt za izgradnju kuće sa bazenom.

Za više informacija, molimo kontaktirajte:

Azra
+385 91 6115706
+385 98 420 885
[email protected]

Lokacija

close
Napomena: prikazana je točna lokacija

Kontakt podaci

Adresa 52100 nazovi 052/213-332 Poruka Pošalji privatnu poruku
Verifikacija Korisnik je verificirao broj telefona u državi: Hrvatska
Oglas objavljen 12.03.2026. 01:03
Do isteka još 2 godine i 8 mjeseci
Pregleda 31

Slični oglasi Pogledaj sve oglase

Navedite razlog prijave oglasa

Podijeli oglas

Prodaja građevinske parcele sa ishodovanom,  pravomoćnom građevinskom dozvolom , BIBIĆI!!

Prodaja građevinske parcele sa ishodovanom, pravomoćnom građevinskom dozvolom , BIBIĆI!!

ID oglasa: 113524

Cijena: 72.000,00 €

U usporedbi može biti maksimalno 4 oglasa. Uklonite 1 oglas kako bi dodali novi oglas u usporedbe

PROVJERI OGLASE