ISTRA, SVETVINČENAT – Atraktivno građevinsko zemljište s modernim projektom kuće i bazena

Cijena: 62.000,00 €
ID oglasa: 70213

Osnovni podaci

Lokacija Istarska, Svetvinčenat, Svetvinčenat
Tip zemljišta Građevinsko
Površina 305 m²

Opis

ISTRA, SVETVINČENAT – Atraktivno građevinsko zemljište s modernim projektom kuće i bazena

Svetvinčenat, slikovito istarsko mjesto smješteno u središtu poluotoka, sve je češći izbor kupaca koji traže miran život, povezanost s prirodom i tradicionalni ambijent uz bogatu povijesnu baštinu. Zbog svoje autentičnosti, uređenosti i pozicije, Svetvinčenat postaje atraktivna točka za obiteljsku gradnju, ali i za turističke investicije.

U mirnom naselju nadomak Svetvinčenta, prodaje se građevinsko zemljište površine 305 m², s izdanom pravomoćnom građevinskom dozvolom za kuću s bazenom. Lokacija je izuzetno pogodna za one koji žele tišinu, prirodno okruženje i gotovu dokumentaciju spremnu za gradnju.

Pristup parceli osiguran je uređenim makadamskim putem dužine oko 100 metara, koji vodi do asfaltirane ceste.
Uz sam pristupni put već su provedene cijevi za vodu, optički internet, elektroinstalaciju i gromobransku zaštitu – čime je već odrađen važan dio pripremne infrastrukture.
Priključak za električnu energiju već je plaćen, a zahtjev za gradilišni priključak podnesen – postavljanje od strane HEP-a očekuje se uskoro, što znači da izgradnja može započeti odmah.

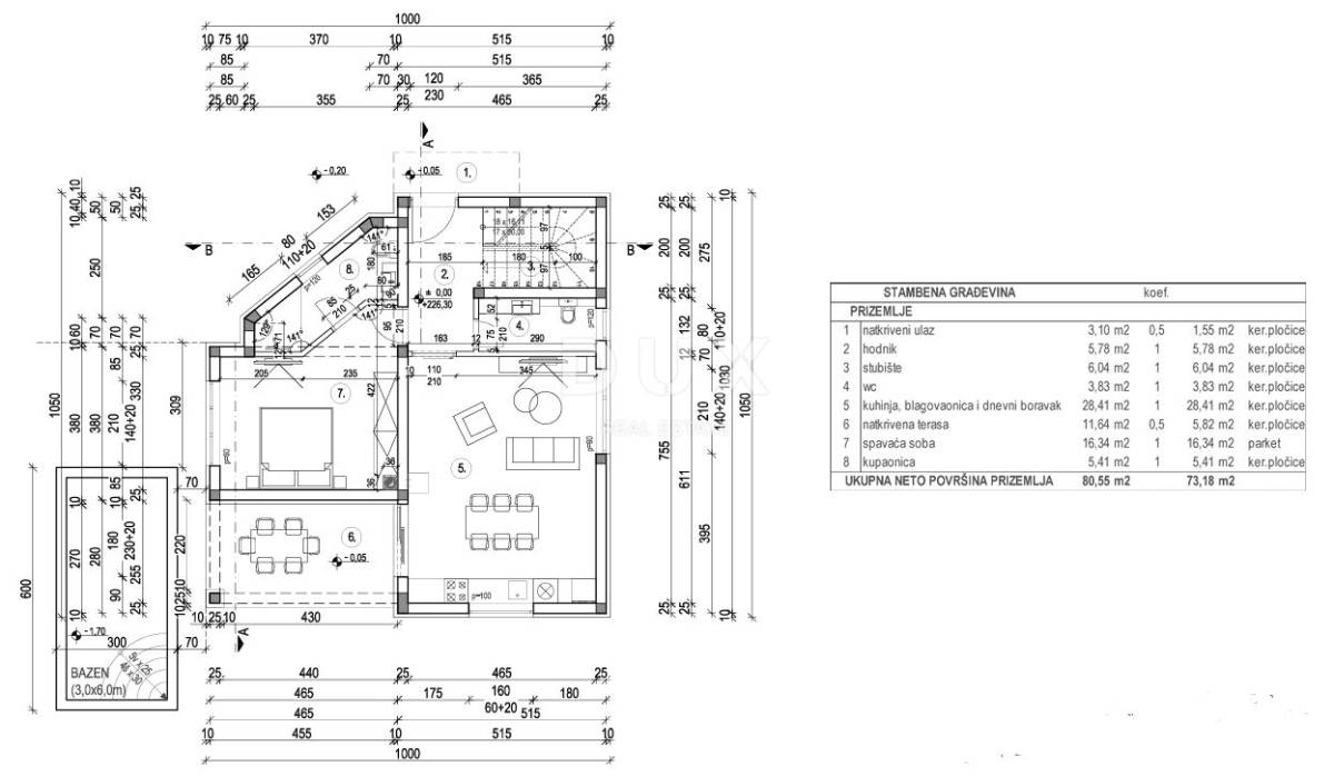
Na parceli je projektirana moderna katnica ukupne neto površine 139,95 m², pažljivo osmišljena za ugodan boravak tijekom cijele godine ili u funkciji kuće za odmor.
U prizemlju su predviđeni natkriveni ulaz, hodnik, toalet te prostrani dnevni prostor u kojem su povezani kuhinja, blagovaonica i dnevni boravak s izlazom na natkrivenu terasu. Također, u prizemlju se nalazi i spavaća soba s vlastitom kupaonicom – vrlo praktično rješenje za goste ili kao glavna soba bez stepenica.
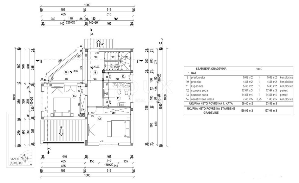
Na katu su smještene još dvije spavaće sobe, dodatna kupaonica, praonica rublja i natkrivena terasa s pogledom na okolnu prirodu.

Odmah uz ovu parcelu nalaze se još dvije građevinske čestice s istim statusom – obje s pravomoćnim dozvolama i projektima za slične kuće, također dostupne za kupnju. Time se pruža dodatna fleksibilnost – bilo za proširenje privatnog posjeda ili razvoj više objekata u sklopu investicije.
Kupnja je moguća pojedinačno, kao što je ovdje slučaj, ili u kombinaciji s drugim parcelama odmah pored – ovisno o potrebama i željama budućeg vlasnika.

Vlasnik je pravna osoba, a kupac pri kupnji ne plaća porez na promet nekretnina, što čini ovu ponudu još povoljnijom.

Ova nekretnina nudi već gotovu dokumentaciju, funkcionalan projekt i pripremljenu infrastrukturu u okruženju koje spaja privatnost, kvalitetu i istarski karakter.
Idealna je za one koji žele izbjeći dugotrajne administrativne procese i odmah krenuti s gradnjom u jednom od najpoželjnijih dijelova unutrašnje Istre.

Poštovani klijenti, agencijska provizija naplaćuje se u skladu s Općim uvjetima poslovanja:
http://www.dux-nekretnine.hr/opci-uvjeti-poslovanja

ID KOD AGENCIJE: 42746

Tina Širol
Agent s licencom
Mob: +385 95 825 4533
Tel: +385 99 640 8438
E-mail: [email protected]
www.dux-istra.com

Lokacija

close
Napomena: prikazana je točna lokacija

Dodatni podaci

Komunalije

  • Gradski vodovod
Oglas objavljen 19.10.2025. 00:00
Do isteka još 2 godine i 7 mjeseci
Pregleda 43

Slični oglasi Pogledaj sve oglase

Navedite razlog prijave oglasa

Podijeli oglas

ISTRA, SVETVINČENAT – Atraktivno građevinsko zemljište s modernim projektom kuće i bazena

ISTRA, SVETVINČENAT – Atraktivno građevinsko zemljište s modernim projektom kuće i bazena

ID oglasa: 70213

Cijena: 62.000,00 €

U usporedbi može biti maksimalno 4 oglasa. Uklonite 1 oglas kako bi dodali novi oglas u usporedbe

PROVJERI OGLASE