Zakup, Zagreb, Centar, uredski prostor, 110 m2

Cijena: 1.800,00 €
ID oglasa: 54873

Osnovni podaci

Lokacija Zagreb
Pozicija Ulični lokal
Kat 1
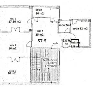
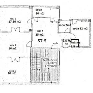
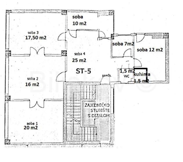
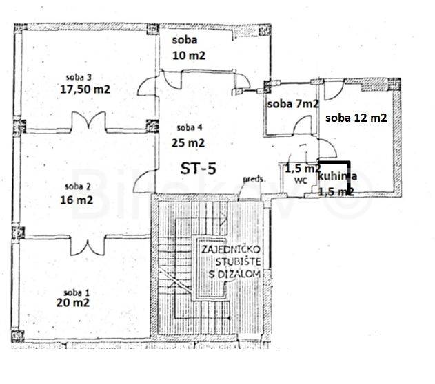
Površina 110 m²
Godina izgradnje 2019
Godina zadnje adaptacije 2025
Grijanje Sustav grijanja, klimatizacije i ventilacije
Energetski razred A

Opis

Donji grad, Petrićeva
Uredski  prostor površine 110m2 na 1.katu zgrade koja je građena 1938 godine.
Zgrada ima dizalo.
Stan je kompletno adaptiran u uredski prostor 2013 godine.
Prostor se sastoji od:  halla, 6 soba, WC-a i male čajne kuhinjice. Ured je djelomično namješten, ali će do najma biti kompletno namješten uredskim namještajem po mjeri. Visina stropova je 3m. U stanu je sva infrastruktura potrebna za ured. Stubište je održavano i uredno.
Lokacija je sjajna jer se nalazi do Trga bana Josipa Jelačića.
Orijentacija: Zapad
Grijanje: plinsko etažno
Cijena najma: 1800€ mjesečno+režije+depozit u visini jedne mjesečne najamnine
Posrednička naknada : 1 mjesečna najamnina+PDV
www.biliskov.com  ID: 9343
pogledajte virtualnu šetnju kroz nekretninu:
https://360.biliskov.hr/virtual-tour/9343/index.html  

Lokacija

close
Napomena: prikazana je točna lokacija
Oglas objavljen 01.03.2019. 15:35
Do isteka još 2 godine i 8 mjeseci
Pregleda 158

Slični oglasi Pogledaj sve oglase

Navedite razlog prijave oglasa

Podijeli oglas

Zakup, Zagreb, Centar, uredski prostor, 110 m2

Zakup, Zagreb, Centar, uredski prostor, 110 m2

ID oglasa: 54873

Cijena: 1.800,00 €

U usporedbi može biti maksimalno 4 oglasa. Uklonite 1 oglas kako bi dodali novi oglas u usporedbe

PROVJERI OGLASE