ZAGREBAČKA, DONJI STUPNIK - Izvrsna investicija – građevinsko zemljište s projektom i dozvolom!

Cijena: 220.000,00 €
ID oglasa: 69875

Osnovni podaci

Lokacija Zagrebačka, Stupnik, Donji Stupnik
Tip zemljišta Građevinsko
Površina 803 m²

Opis

ZAGREBAČKA, DONJI STUPNIK - Izvrsna investicija – građevinsko zemljište s projektom i dozvolom!

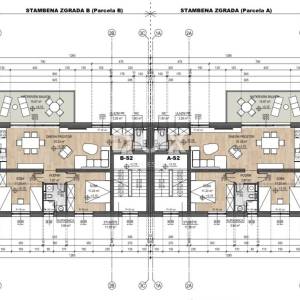
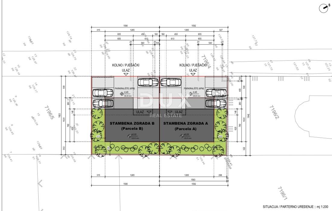
Na prodaju su dvije povezane građevinske parcele ukupne površine 579 m², koje dolaze s ishođenim i pravomoćnim građevinskim dozvolama za izgradnju dviju poluugrađenih stambenih zgrada. Projekt predviđa ukupno šest komfornih stanova, svaki veličine oko 70 m², odnosno ukupno 420 m² neto stambenog prostora. Radi se o projektu koji je spreman za realizaciju odmah, što ovu nekretninu čini idealnom za investitore i sve koji žele izbjeći dugotrajan proces ishođenja dozvola i papirologije.

Uz građevinske čestice, u cijenu je uključeno i dodatnih 224 m² razmjernog suvlasništva u pristupnom putu, čime ukupna površina koja se prenosi u vlasništvo iznosi 803 m². Pristupna cesta je već uređena i funkcionalna; položeni su vodovodni priključci, cijevi za oborinsku odvodnju i priprema za telefonske instalacije. Osim toga, prometnica je završno uređena drobljenim asfaltom, a duž nje su postavljeni stupovi za struju, uključujući i solarnu rasvjetu.

Parcele su smještene na blagoj uzvisini iznad pristupne prometnice, što omogućuje otvoren i neometan pogled prema Sljemenu i Žumberačkoj gori. Lokacija je izuzetno praktična za svakodnevni život jer se u neposrednoj blizini nalaze autobusna stanica, škola, vrtić, dom zdravlja i trgovački centar.

U cijenu su uključene dvije planirane građevinske parcele, suvlasnički udio u pristupnom putu, projektna dokumentacija, pravomoćne građevinske dozvole te kompletna priprema infrastrukture u pristupnoj cesti, uključujući vodovod, oborinsku kanalizaciju i telefoniju, kao i uređena prometnica s postavljenim stupovima za električnu energiju. Ponuda ne uključuje troškove priključaka na komunalne sustave kao što su voda, struja i kanalizacija, niti plaćanje komunalnog i vodnog doprinosa.

Ova nekretnina predstavlja izvrsnu priliku za gradnju bez dodatnog čekanja – projekt je spreman, dokumentacija je uredna, a sve što preostaje jest započeti izgradnju.

Poštovani klijenti, agencijska provizija naplaćuje se u skladu s Općim uvjetima poslovanja:
www.dux-nekretnine.hr/opci-uvjeti-poslovanja

ID KOD AGENCIJE: 42714

Mihaela Pleša
Agent s licencom
Mob: +385 99 414 0675
Tel: +385 91 480 8808
E-mail: [email protected]
www.dux-nekretnine.hr

Lokacija

close
Napomena: prikazana je točna lokacija

Dodatni podaci

Komunalije

  • Gradski vodovod
  • Gradska kanalizacija
Oglas objavljen 16.10.2025. 00:00
Do isteka još 2 godine i 8 mjeseci
Pregleda 13

Slični oglasi Pogledaj sve oglase

Navedite razlog prijave oglasa

Podijeli oglas

ZAGREBAČKA, DONJI STUPNIK - Izvrsna investicija – građevinsko zemljište s projektom i dozvolom!

ZAGREBAČKA, DONJI STUPNIK - Izvrsna investicija – građevinsko zemljište s projektom i dozvolom!

ID oglasa: 69875

Cijena: 220.000,00 €

U usporedbi može biti maksimalno 4 oglasa. Uklonite 1 oglas kako bi dodali novi oglas u usporedbe

PROVJERI OGLASE