ZADAR, ZATON - Stan s pogledom na more 95 metara od mora! SA2

Cijena: 387.000,00 €
ID oglasa: 62297

Osnovni podaci

Lokacija Zadarska, Nin, Zaton
Tip stana u stambenoj zgradi
Stambena površina 85,65 m²
Broj etaža 2
Broj soba Garsonijera
Kat 1. kat
Netto površina 85,65 m²
Godina izgradnje 2025
Ukupni broj katova u zgradi 2
Energetski razred A
Klima uređaj DA

Opis

ZADAR, ZATON - Stan s pogledom na more 95 metara od mora! SA2.

Na svega 95 metara od mora, u mirnom mjestu Zaton, gradi se moderan projekt s devet luksuznih stanova smještenih u zatvorenom resortu s rampom na ulazu. Naselje je zamišljeno kao privatna oaza, sastavljena od pet zgrada, gdje stanari uživaju u potpunoj sigurnosti i privatnosti.

Stanovi na višim katovima imaju prostrane krovne terase s prekrasnim pogledom na more i otoke, dok prizemne jedinice krase vlastiti vrtovi. Postoji i mogućnost kupnje potpuno namještenih stanova uz nadoplatu. Posebna pažnja posvećena je dizajnu interijera, modernim tehnološkim rješenjima i kvalitetnim materijalima kako bi dom bio funkcionalan, siguran i udoban.

Pametni dom sustav omogućuje upravljanje rasvjetom, klimatizacijom i grijanjem, a gradnja se izvodi armiranobetonskom konstrukcijom s termoizolacijom od 10 cm. Aluminijska stolarija s električnim roletama, multi-split klima uređaji, podno grijanje u kupaonicama i dnevnom boravku, video portafon, nadzorne kamere te protuprovalna i protupožarna vrata dio su standardne opreme. Korištene su prvoklasne sanitarije i podne obloge renomiranih proizvođača. Planirani završetak radova je do kraja 2025.

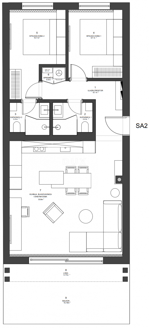
Stan SA2 smješten je na katu i sastoji se od dvije spavaće sobe, dvije kupaonice, spremišta te prostranog dnevnog dijela s kuhinjom i blagovaonicom. Njegovu posebnu vrijednost čini natkriveni balkon s pogledom na more.

Zaton je mirno dalmatinsko mjesto poznato po kristalno čistom moru, šljunčanim plažama i opuštenom mediteranskom ozračju, dok je u neposrednoj blizini Zadar – grad bogate povijesti, kulturnih znamenitosti i vrhunskih restorana, idealna destinacija za život i odmor.

Prodavatelj je pravna osoba te kupac ne plaća porez na promet nekretnina.

Za sve dodatne informacije i dogovor oko razgledavanja slobodno nas kontaktirajte.

Poštovani klijenti, agencijska provizija naplaćuje se u skladu s Općim uvjetima poslovanja:
www.dux-nekretnine.hr/opci-uvjeti-poslovanja

ID KOD AGENCIJE: 42276

Josip Šestan
Agent s licencom
Mob: +385 91 799 6986
Tel: +385 91 480 8808
E-mail: [email protected]
www.dux-dalmacija.com

Lokacija

close
Napomena: prikazana je točna lokacija

Dodatni podaci

Podaci o objektu

  • Gradski vodovod
  • Gradska kanalizacija

Balkon/Lođa/Terasa

  • Terasa

Dozvole i potvrde

  • Građevinska dozvola
Oglas objavljen 02.10.2025. 00:00
Do isteka još 2 godine i 8 mjeseci
Pregleda 15

Slični oglasi Pogledaj sve oglase

Navedite razlog prijave oglasa

Podijeli oglas

ZADAR, ZATON - Stan s pogledom na more 95 metara od mora! SA2

ZADAR, ZATON - Stan s pogledom na more 95 metara od mora! SA2

ID oglasa: 62297

Cijena: 387.000,00 €

U usporedbi može biti maksimalno 4 oglasa. Uklonite 1 oglas kako bi dodali novi oglas u usporedbe

PROVJERI OGLASE