Trosoban stan S2 na 1.katu novogradnji u Kanfanaru

Cijena: 339.000,00 €
ID oglasa: 69564

Osnovni podaci

Lokacija Istarska, Kanfanar, Kanfanar
Tip stana u kući
Stambena površina 123 m²
Broj etaža Jednoetažni
Broj soba Garsonijera
Kat Suteren

Opis

Prodajemo stanovi u zgradi čija izgradnja je započeta u 9-om mjesecu 2023g godine. Projekt se sastoji od dvije spojene zgrade sa ukupno 8 stanova, 3 stanova u jednoj i 5 u drugoj zgradi.

Zgrade su u mirnom dijelu Kanfanara okruženo luksuznim vilama dalje od prometnih cesta.

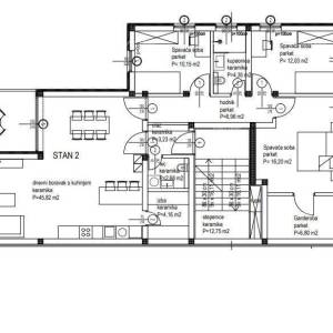
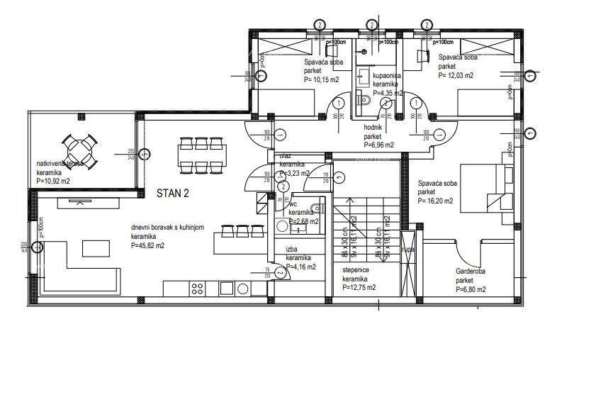
Trosoban stan S2 se nalazi na 1. katu zgrade od ukupno 3 stanova, jedan stan na svakom katu, ima stambenu površinu od 123.30 m2 i sastoji od slijedećih prostorija:

dnevni boravak +kuhinja + blagavaona - 45.82 m2
predsoblje - 3.23 m2
hodnik - 6.96 m2
WC - 2.68 m2
kupaonica - 4.35 m2
spavaća soba 1 - 10.15 m2
spavaća soba 2 - 12.03 m2
spavaća soba 3 - 16.20 m2
izba/špajza - 4.16 m2
garderoba - 6.80 m2
natkrivena terasa - 10.92 m2

Stanu pripada 1 parkirno mjesto.
Kvalitetna keramika je predviđena u svakoj prostoriji osim spavaćih soba i ulaznog prostora gdje će biti postavljene vrhunske vinil podne obloge.
Izgradnja je zapoćeta početkom jeseni 2023 i završetak planira se na kraj 2024 god.

Primamo rezervacije!

+385 91 611 5706
[email protected]
+385 98 420 885

Lokacija

close
Napomena: prikazana je točna lokacija

Kontakt podaci

Adresa 52100 nazovi 052/213-332 Poruka Pošalji privatnu poruku
Verifikacija Korisnik je verificirao broj telefona u državi: Hrvatska
Oglas objavljen 15.10.2025. 01:14
Do isteka još 2 godine i 8 mjeseci
Pregleda 84

Slični oglasi Pogledaj sve oglase

Navedite razlog prijave oglasa

Podijeli oglas

Trosoban stan S2 na 1.katu novogradnji u Kanfanaru

Trosoban stan S2 na 1.katu novogradnji u Kanfanaru

ID oglasa: 69564

Cijena: 339.000,00 €

U usporedbi može biti maksimalno 4 oglasa. Uklonite 1 oglas kako bi dodali novi oglas u usporedbe

PROVJERI OGLASE