Stara Novalja, 79.61m2, 3s, 1.kat, pogled na more!

Cijena: 235.000,00 €
ID oglasa: 90328

Osnovni podaci

Lokacija Ličko-senjska, Novalja, Stara Novalja
Tip nekretnine Vikendica
Površina objekta 79,61 m²

Opis

OTOK PAG, STARA NOVALJA, NOVOGRADNJA S POGLEDOM NA MORE, MIRNA LOKACIJA!

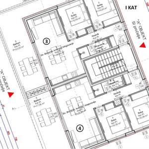
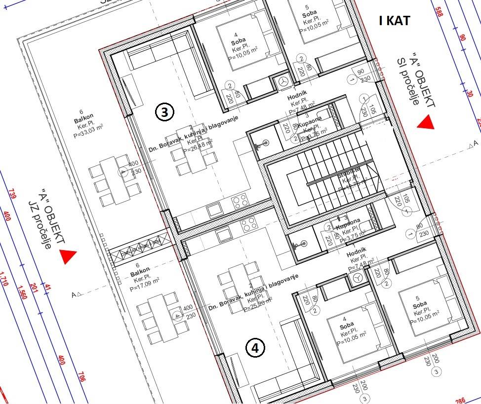
Prodaje se prostrani trosobni apartman oznake br. 3 ukupne površine 79,61 m2 na 1. katu novogradnje na mirnoj lokaciji u Staroj Novalji.

Sastoji se od: hodnika 7,48 m2, kupaone s wc-om 3,75 m2, sobe 10,05 m2, sobe 10,05 m2, dnevnog boravka s kuhinjom i blagovaonom 26,48 m2 i terase 33,03 m2 s roštiljem.

Sve spavaće sobe i dnevni boravak imaju svoj klima uređaj (ukupno 3), a u kupaonicama je provedeno podno grijanje. Objekt se gradi armiranobetonskom konstrukcijom, s vanjskom toplinskom izolacijom debljine 15 cm. Alu-troslojna podizna stolarija sa stop sol reflektirajućim, kvalitetnim keramičkim oblogama u svim prostorijama i protuprovalnim ulaznim vratima. Prostorije unutar stana su odvojene dvostrukom izolacijom knauf/kamena vuna koje ojačaju zvučnu i protupožarnu zaštitu. Ulazna vrata u zgradu su Inotherm, protuprovalna aluminijska vrata, dok je stubište zgrade protupožarno osigurano, a stan ima video portafon.

Pripada mu i parkirno mjesto.

Rok useljenja planiran je za 12. mjesec 2025.

Do prekrasne šetnice uz more 10 minuta hoda, kao i do pješčane plaže Planjka.

Postoji mogućnost opremanja apartmana u dogovoru s investitorom.

Kupac ne plaća agencijsku proviziju.

Za više informacija i zakazivanje razgledavanja slobodno kontaktirajte našeg agenta Igora na 095/581-4355.

Lokacija

close
Napomena: prikazana je točna lokacija
Oglas objavljen 26.11.2025. 00:05
Do isteka još 2 godine i 8 mjeseci
Pregleda 116

Slični oglasi Pogledaj sve oglase

Navedite razlog prijave oglasa

Podijeli oglas

Stara Novalja, 79.61m2, 3s, 1.kat, pogled na more!

Stara Novalja, 79.61m2, 3s, 1.kat, pogled na more!

ID oglasa: 90328

Cijena: 235.000,00 €

U usporedbi može biti maksimalno 4 oglasa. Uklonite 1 oglas kako bi dodali novi oglas u usporedbe

PROVJERI OGLASE