Stan, Kaštel Novi, novogradnja, pogled

Cijena: 534.600,00 €
ID oglasa: 119512

Osnovni podaci

Lokacija Splitsko-dalmatinska, Kaštela, Kaštel Novi
Tip stana u stambenoj zgradi
Stambena površina 162 m²
Broj etaža Višeetažni
Broj soba 3-sobni
Kat Prizemlje
Godina izgradnje 2026
Godina zadnje renovacije 2026
Broj kupaonica s WC-om 2
Broj WC-a 2
Ukupni broj katova u zgradi 2
Sustav grijanja Grijalice i radijatori na struju
Namještenost i stanje Nenamješten
Energetski razred A+
Broj vlastitih parkirnih mjesta 2
Klima uređaj DA
Postotak agencijske provizije koju plaća kupac 2 %
Mogućnost zamjene Nije moguća zamjena za drugu nekretninu

Opis

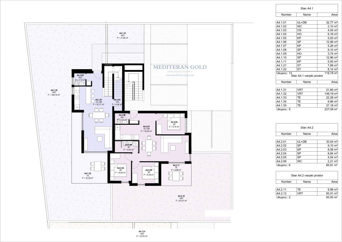
U prodaji moderna novogradnja vrhunske kvalitete i opreme, pogodna za obiteljski život ili investiciju, na atraktivnoj lokaciji u Kaštel Novom, Rudine. Smještena u mirnoj ulici u blizini svih ključnih sadržaja, projektirana s naglaskom na kvalitetu, udobnost i suvremeni stil života. Projekt se sastoji od manjih stambenih zgrada, svaka s po dva kata, što osigurava visoku razinu privatnosti i komfora stanovanja. Luksuzan standard gradnje i moderna arhitektura, mirna lokacija, odlična prometna povezanost. Svaka zgrada obuhvaća četiri funkcionalno raspoređena stana. Svi stanovi imaju pogled na more. Stanovi su dizajnirani s naglaskom na funkcionalnost, suvremen stil i maksimalno iskorištenje prirodnog svjetla i nude najviši standard opreme: aluminijska stolarija s troslojnim staklom, električne rolete, podno grijanje, inverter klima uređaji, luksuzne keramičke pločice i opremu provjerenih brendova.Ovaj projekt donosi spoj elegancije, udobnosti i dugotrajne kvalitete. Predviđeno useljenje 6/2027.godine. U cijeni su dva parkirna mjesta.
U PONUDI: A4.1, 162m2, prvi i drugi kat, trosoban, troetažan stan + 2 parkirna mjesta = 534.600€.
Stan sa tri natkrivene terase, u prizemlju je dnevni boravak s blagovaonicom, kuhinjom i vrtom , na prvom katu su dvije spavaće sobe i dvije kupaonice . Na drugom katu je spavaća soba sa kupaonicom i terasa.

Lokacija

close
Napomena: Prikazana je približna lokacija

Dodatni podaci

Podaci o objektu

  • Novogradnja
  • Gradski vodovod

Balkon/Lođa/Terasa

  • Lođa (Loggia)
  • Terasa

Funkcionalnosti i karakteristike

  • Protuprovalna vrata
  • Video Portafon
  • Tuš kabina

Vrsta parkinga

  • Vanjsko ne-natkriveno mjesto

Orijentacija stana

  • Sjever
  • Jug

Dozvole i potvrde

  • Vlasnički list
  • Građevinska dozvola

Kontakt podaci

Oglas objavljen 15.04.2026. 12:23
Do isteka još 2 godine i 7 mjeseci
Pregleda 145

Slični oglasi Pogledaj sve oglase

Navedite razlog prijave oglasa

Podijeli oglas

Stan, Kaštel Novi, novogradnja, pogled

Stan, Kaštel Novi, novogradnja, pogled

ID oglasa: 119512

Cijena: 534.600,00 €

U usporedbi može biti maksimalno 4 oglasa. Uklonite 1 oglas kako bi dodali novi oglas u usporedbe

PROVJERI OGLASE