Split, Neslanovac, prodaja 3 soban stan 100 m2, 2 parkinga

Cijena: 320.000,00 €
ID oglasa: 53789

Osnovni podaci

Lokacija Splitsko-dalmatinska, Split
Tip stana u stambenoj zgradi
Stambena površina 100 m²
Broj etaža 2
Broj soba 3
Kat 2. kat
Ukupni broj katova u zgradi 2
Energetski razred A

Opis

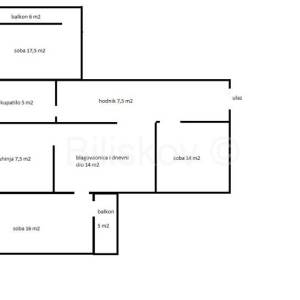
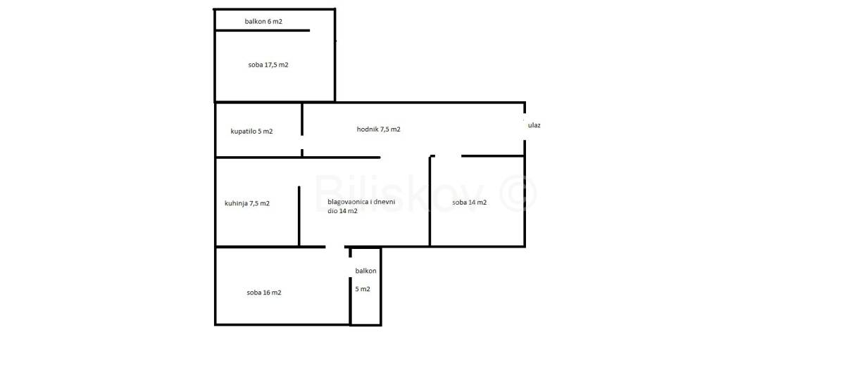
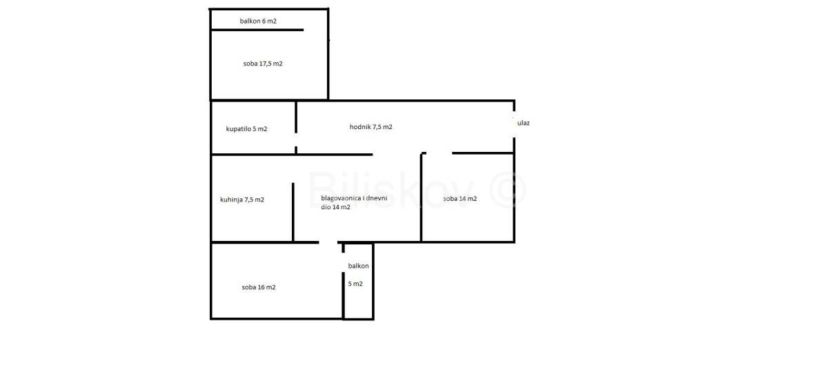
Split, Neslanovac trosoban stan 80 m2, dva balkona ukupno 11 m2 i 2 parkirna mjesta, ostava 9 m2
Stan je izgrađen u manjoj stambenoj zgradi, etažiran je.
Sastoji od tri sobe, kuhinje sa blagovaonicom i dnevnim dijelom, kupatila i dva balkona.
Dvorišni dio nije etažiran, ali je dovoljno prostran te dogovorom stanara prodavatelju pripadaju dva parkirna mjesta.
Budućim etažiranjem vanjskog dijela otvara se mogućnost dobivanja još vanjskog prostora (npr. ostava...)
Stan se nalazi na lokaciji koja je povezana sa Brdima i Buhausom, blizina Konzuma.
Nalazi se u mirnom dijelu.
Vlasništvo uredno, etažirano, Rješenje o izvedenom stanju.
 
www.biliskov.com  ID: 15355-1
 
 
 

Lokacija

close
Napomena: prikazana je točna lokacija

Dodatni podaci

Podaci o objektu

  • Gradski vodovod
  • Gradska kanalizacija

Balkon/Lođa/Terasa

  • Balkon

Ostali objekti i površine

  • Spremište/šupa

Dozvole i potvrde

  • Vlasnički list
Oglas objavljen 16.07.2025. 09:23
Do isteka još 2 godine i 8 mjeseci
Pregleda 180

Slični oglasi Pogledaj sve oglase

Navedite razlog prijave oglasa

Podijeli oglas

Split, Neslanovac, prodaja 3 soban stan 100 m2, 2 parkinga

Split, Neslanovac, prodaja 3 soban stan 100 m2, 2 parkinga

ID oglasa: 53789

Cijena: 320.000,00 €

U usporedbi može biti maksimalno 4 oglasa. Uklonite 1 oglas kako bi dodali novi oglas u usporedbe

PROVJERI OGLASE