Split, Firule, prodaja 3soban stan, velika terasa

Cijena: 950.000,00 €
ID oglasa: 110835

Osnovni podaci

Lokacija Splitsko-dalmatinska, Split
Tip stana u stambenoj zgradi
Stambena površina 115 m²
Broj etaža 4
Broj soba 3
Kat 1. kat
Ukupni broj katova u zgradi 4
Sustav grijanja Sustav grijanja, klimatizacije i ventilacije
Energetski razred A

Opis

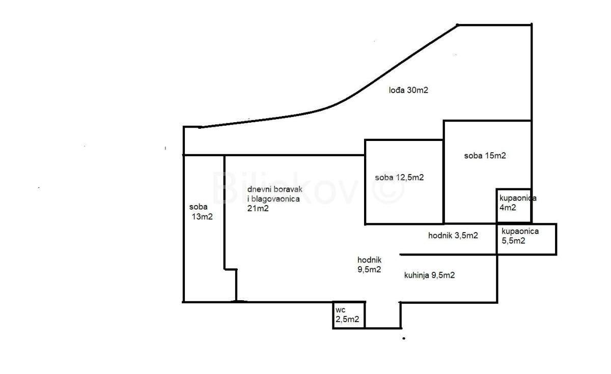
Split, Firule, komforan trosoban stan površine 95m2 s terasom od 32m2 na 1.katu stambene zgrade. Cijeli stan je južne orjentacije i sve sobe izlaze na terasu.
Sastoji se od 3 spavaće sobe, kuhinje s blagovaonicom i dnevnim boravkom, 2 kupaonice (jedna u najvećoj spavaćoj sobi), gostinjskog WCa i velike terase. Na terasi se nalazi jakuzzi sa dvije ležaljke i stol sa 6 stolica. Sve sobe su klimatizirane i vanjske jedinice se nalaze skrivene od pogleda u ormaru koji sluzi i kao manje spremište.
Stan je kompletno renoviran i novonamješten 2025.godine, te je vrlo brzo useljiv.
Nalazi se na odličnoj lokaciji, dvije minute od mora i šetnice koja vodi do centra grada i brojnih plaža. 
www.biliskov.com   ID:15816-1 

Lokacija

close
Napomena: Prikazana je približna lokacija

Dodatni podaci

Podaci o objektu

  • Gradski vodovod
  • Gradska kanalizacija

Balkon/Lođa/Terasa

  • Lođa (Loggia)

Funkcionalnosti i karakteristike

  • Perilica posuđa
  • Protuprovalna vrata
Oglas objavljen 24.02.2026. 13:35
Do isteka još 2 godine i 8 mjeseci
Pregleda 92

Slični oglasi Pogledaj sve oglase

Navedite razlog prijave oglasa

Podijeli oglas

Split, Firule, prodaja 3soban stan, velika terasa

Split, Firule, prodaja 3soban stan, velika terasa

ID oglasa: 110835

Cijena: 950.000,00 €

U usporedbi može biti maksimalno 4 oglasa. Uklonite 1 oglas kako bi dodali novi oglas u usporedbe

PROVJERI OGLASE