Sesvete,centar,4-S dvoetažni stan 88m2(S1G3) s balkonom i parkingom

Cijena: 251.900,00 €
ID oglasa: 74086

Osnovni podaci

Lokacija Zagreb
Tip stana u stambenoj zgradi
Stambena površina 87,96 m²
Broj etaža Jednoetažni
Broj soba 4
Kat Prizemlje
Sustav grijanja Sustav grijanja, klimatizacije i ventilacije
Energetski razred A

Opis

Predstavljamo novu stambenu zgradu u mirnom i uređenom dijelu Sesveta,,svega nekoliko minuta hoda od centra,autobusne stanice,škole vrtića što predstavlja savršen spoj urbanog života i mirnog obiteljskog okruženja. Zgrada moderne arhitekture nudi funkcionalne i svijetle stanove različitih kvadratura, idealne za ugodan obiteljski život.

 DOSTUPNI STANOVI

2-sobni, 3-sobni i 4-sobni stanovi

Površine od 50 m² do 95 m²

Svaki stan ima balkon, loggiu ili vrt

Vanjsko parkirno mjesto uključeno u cijenu

Mogućnost spremišta

 OPREMA I STANDARD GRADNJE
✔️ Podno grijanje s dizalicom topline (termostat u svakoj prostoriji) ✔️ Klima uređaj ✔️ PVC stolarija s troslojnim IZO staklom i elektro aluminijskim roletama ✔️ Keramičke pločice 1. klase i parket prilagođen podnom grijanju ✔️ Kupaonice potpuno opremljene sanitarnim uređajima ✔️ Fasada 15 cm (stiropor + kamena vuna) – izvrsna toplinska i zvučna izolacija ✔️ Energetski razred A+

LOKACIJA – OBITELJSKA OAZA UZ CENTAR SESVETA
Mirno i sigurno naselje s izvrsnom prometnom povezanošću i bogatom infrastrukturom:

Vrtić i osnovna škola – svega 10 minuta pješke

U blizini: centar Sesveta, trgovine, pošta, ljekarne, parkovi, bazen i sportski sadržaji

Autobusna i željeznička stanica u neposrednoj blizini

Brz pristup Zagrebu i obilaznici

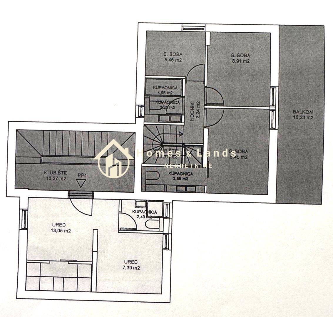
Dvoetažni stan oznake S1G3 ukupne površine 108m2(obračunski 89m2 )sastoji se od ulaznog hodnika,kuhinje s blagovaonicom i dnevnog boravka,ostave,kupaonice,balkona,internog stubišta za spavaći dio koji uključuje tri spavaće sobe,hodnik i 2 kupaonice na katu, te prostranog vrta 73m2 i vanjskog parkinga.
 

USELJENJE: do 31.12.2025.Dokumentacija uredna – kupnja direktno od investitora.

INFO: +385 98 517 877 

Lokacija

close
Napomena: Prikazana je približna lokacija

Dodatni podaci

Podaci o objektu

  • Gradski vodovod
  • Gradska kanalizacija

Balkon/Lođa/Terasa

  • Balkon

Funkcionalnosti i karakteristike

  • Podno grijanje
  • Video Portafon
  • Protuprovalna vrata
  • Tuš kabina

Ostali objekti i površine

  • Spremište/šupa

Vrsta parkinga

  • Vanjsko ne-natkriveno mjesto

Dozvole i potvrde

  • Vlasnički list

Kontakt podaci

Profile
HomesAndLands
Svi oglasi ove trgovine
Adresa 10000, Hrvatska nazovi 098/517-877 Poruka Pošalji privatnu poruku
Verifikacija Korisnik je verificirao broj telefona u državi: Hrvatska
Oglas objavljen 26.10.2025. 14:03
Do isteka još 2 godine i 8 mjeseci
Pregleda 47

Slični oglasi Pogledaj sve oglase

Navedite razlog prijave oglasa

Podijeli oglas

Sesvete,centar,4-S dvoetažni stan 88m2(S1G3) s balkonom i parkingom

Sesvete,centar,4-S dvoetažni stan 88m2(S1G3) s balkonom i parkingom

ID oglasa: 74086

Cijena: 251.900,00 €

U usporedbi može biti maksimalno 4 oglasa. Uklonite 1 oglas kako bi dodali novi oglas u usporedbe

PROVJERI OGLASE