RIJEKA-CENTAR,36,8 m²,Adaptiran 2-sob. stan + nastavak uhodanog najma

Cijena: 200.000,00 €
ID oglasa: 99361

Osnovni podaci

Lokacija Primorsko-goranska, Rijeka, Centar
Tip stana u stambenoj zgradi
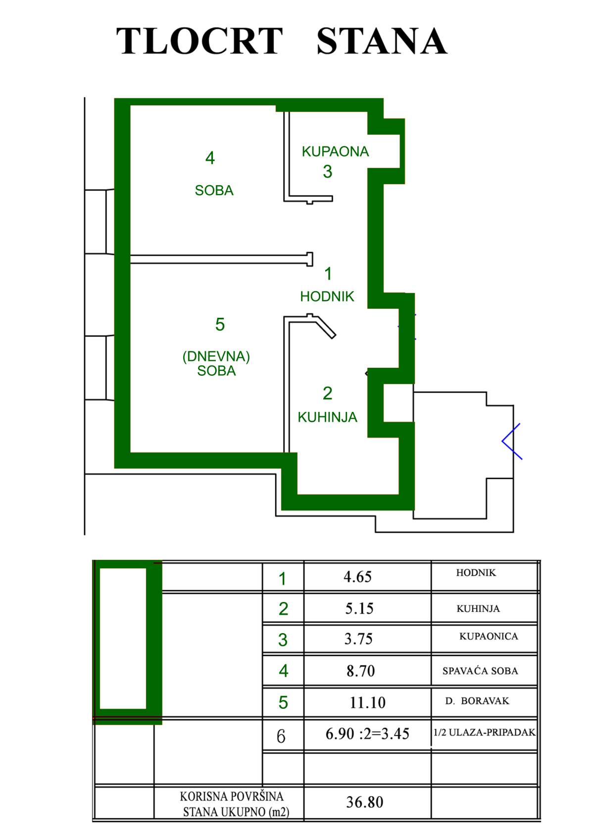
Stambena površina 36,80 m²
Broj etaža Jednoetažni
Broj soba 2-sobni
Kat Visoko prizemlje
Netto površina 36,80 m²
Godina zadnje renovacije 2024
Broj kupaonica s WC-om 1
Ukupni broj katova u zgradi 4
Namještenost i stanje Potpuno namješten
Energetski razred A+
Klima uređaj DA
Kupac ne plaća agencijsku proviziju DA
Mogućnost zamjene Nije moguća zamjena za drugu nekretninu

Opis

-PRIVATNI OGLAS-
Rijeka– centar (Sušak), 36,8 m² – adaptiran 2-soban stan + preuzimanje najma do 06mj.2026
Opis:
Prodaje se 2-sob. stan južne orijentacije u visokom prizemlju četverokatnice u mirnom dijelu Sušaka (Centar,Milana Smokvine Tvrdog). Površina 36,80 m².Stan je potpuno namješten, funkcionalan,kuhinja po mjeri (2025.), PVC stolarija, klima,optički internet,energetski razred:A,zadnja adaptacija:2024,nije potrebno ulaganje.Idealno pozicioniran za miran život ili kao nekretnina za dugoročni/dnevni najam.
Korak do centra grada i svih sadržaja (fakulteti, javni prijevoz, trgovine),niske režije.Rijetko u ponudi stan ove optimalne kvadrature dostupan na ovoj mikrolokaciji!
Vlasništvo 1/1,bez uknjiženih ili neuknjiženih tereta,bez hipoteke,uredna i jasna dokumentacija,etažiran.

Cijena: 200000 € – bez agencijske provizije, direktno od vlasnika.
Kupac preuzima uhodan najam s pouzdanim podstanarom (student) koji ostaje u stanu do kraja 06mj.2026. godine.
Ne propustite priliku za kupnju "ključ u ruke" nekretnine na lokaciji gdje se stanovi rijetko prodaju!
Za više informacija i dogovor za razgled slobodno se javite porukom ili pozivom.

Kontakt: E-mail: [email protected]
+385-91-928 33 38 (Mob./what's Up/Viber)
Bez agencija molim.
Virtualna šetnja: https://my.matterport.com/show/?m=PRfWNACWaN8
YouTube video:https://youtube.com/shorts/lWXKxlM9HR4
Video: https://u.pcloud.link/publink/show?code=XZgvtY5Zr5ioUDxPe7pbN9wOwmfcVmiecCby

Lokacija

close
Napomena: prikazana je točna lokacija

Dodatni podaci

Podaci o objektu

  • Gradski plin
  • Gradski vodovod
  • Gradska kanalizacija

Funkcionalnosti i karakteristike

  • Video Portafon
  • Tuš kabina
  • Električne rolete
  • Perilica posuđa

Vrsta parkinga

  • Naplatni javni parking

Orijentacija stana

  • Jug

Dozvole i potvrde

  • Vlasnički list

Kontakt podaci

Oglas objavljen 20.12.2025. 18:36
Do isteka još 2 godine i 8 mjeseci
Pregleda 7

Slični oglasi Pogledaj sve oglase

Navedite razlog prijave oglasa

Podijeli oglas

RIJEKA-CENTAR,36,8 m²,Adaptiran 2-sob. stan + nastavak uhodanog najma

RIJEKA-CENTAR,36,8 m²,Adaptiran 2-sob. stan + nastavak uhodanog najma

ID oglasa: 99361

Cijena: 200.000,00 €

U usporedbi može biti maksimalno 4 oglasa. Uklonite 1 oglas kako bi dodali novi oglas u usporedbe

PROVJERI OGLASE