Rab-luksuzan stan na prvom katu samo 50m od mora

Cijena: 467.000,00 €
ID oglasa: 61440

Osnovni podaci

Lokacija Primorsko-goranska, Rab, Barbat na Rabu
Tip stana u stambenoj zgradi
Stambena površina 120 m²
Broj etaža 2
Broj soba Garsonijera
Kat 1. kat
Netto površina 120 m²
Godina izgradnje 2023
Ukupni broj katova u zgradi 2
Energetski razred A
Klima uređaj DA

Opis

Apartman se nalazi na odličnoj lokaciji na otoku Rabu, samo 50 metara udaljen od mora i plaže. To pruža prekrasan pogled na more i blizinu obalne šetnice, grada, taxi brodica i trajekta.

Projekt se ističe visokom kvalitetom gradnje i vrhunskim materijalima.

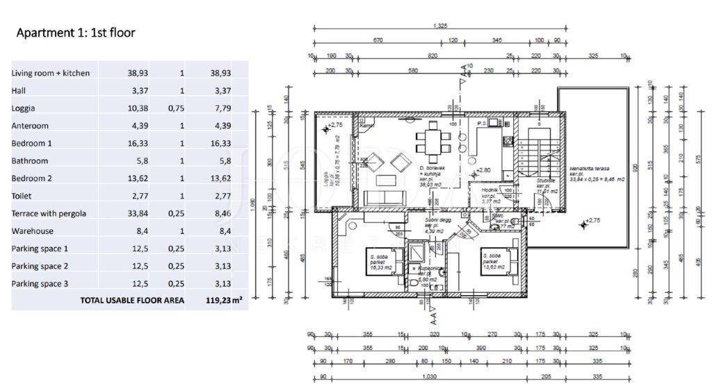
Apartman se nalazi na 1. katu i proteže se na 120 četvornih metara stambene površine. Ima dvije spavaće sobe, kuhinju s dnevnim boravkom, kupaonicu, zaseban WC, loggiu s pogledom na more, spremište i čak 2 parkirna mjesta.

Apartman će biti opremljen visokokvalitetnom PVC stolarijom s troslojnim staklom, klima uređajem i pripremom za električno grijanje. Podovi će biti obloženi kvalitetnom keramikom i vinil oblogama.

Stan je izgrađen s pažljivim dizajnom i pruža udobnost, funkcionalnost i suvremeni stil života, što ga čini privlačnim za ljubitelje mora, sunca i otoka.

ID KOD AGENCIJE: 5253

Ana Šutalo, bcc.oec
Agent s licencom
Mob: 0976252606
Tel: 051403771
E-mail: [email protected]
www.joda-nekretnine.hr

Lokacija

close
Napomena: prikazana je točna lokacija

Dodatni podaci

Podaci o objektu

  • Gradski vodovod
  • Gradska kanalizacija

Balkon/Lođa/Terasa

  • Terasa

Funkcionalnosti i karakteristike

  • Video Portafon

Dozvole i potvrde

  • Građevinska dozvola
Oglas objavljen 19.10.2023. 00:00
Do isteka još 2 godine i 2 mjeseca
Pregleda 126

Slični oglasi Pogledaj sve oglase

Navedite razlog prijave oglasa

Podijeli oglas

Rab-luksuzan stan na prvom katu samo 50m od mora

Rab-luksuzan stan na prvom katu samo 50m od mora

ID oglasa: 61440

Cijena: 467.000,00 €

U usporedbi može biti maksimalno 4 oglasa. Uklonite 1 oglas kako bi dodali novi oglas u usporedbe

PROVJERI OGLASE