PULA – moderan stan u novogradnji, D3

Cijena: 279.000,00 €
ID oglasa: 73037

Osnovni podaci

Lokacija Istarska, Pula, Centar
Tip stana u kući
Stambena površina 54 m²
Broj etaža Jednoetažni
Broj soba Garsonijera
Kat Suteren

Opis

Na prodaju stan u sklopu novog stambenog projekta u Puli, smještenog u popularnom gradskom kvartu Šijana, poznatom po izvrsnoj povezanosti i blizini svih bitnih sadržaja – škole, vrtića, shopping centra i javnog prijevoza.

Projekt obuhvaća šest modernih stambenih zgrada s ukupno 24 stana, smještenih unutar potpuno privatnog kompleksa sa zelenim površinama i suvremenim infrastrukturnim rješenjima.

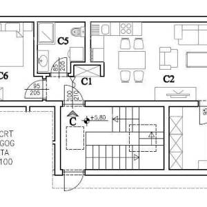
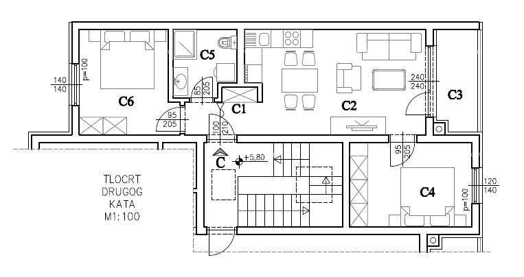
Stan D3 smješten je na drugom katu zgrade D te obuhvaća ukupnu neto površinu od 76,66 m², uključujući stan, lođu, garažno parkirno mjesto i spremište.
Stambeni dio površine 54,81 m² sastoji se od:
prostranog dnevnog boravka s kuhinjom i blagovaonicom,
dvije spavaće sobe,
kupaonice i hodnika,
dok lođa nudi ugodan prostor za opuštanje na otvorenom.

Uz stan dolazi garažno parkirno mjesto površine 32,35 m² (obračunski 19,41 m²) te spremište u prizemlju zgrade.

Oprema:

termoizolacijska fasada debljine 10 cm (ETICS, mineralna vuna/EPS),

protuprovalna vrata i PVC stolariju s dvoslojnim IZO staklom punjenim argonom i roletama,

vrhunska keramika modernog dizajna u svim prostorijama, protukliznu keramiku na lođama,

klima uređaj i električno podno grijanje u dnevnom boravku, kuhinji i kupaonici, uz električne radijatore (sušila) s termostatom.

U okolišu zgrade planirane su uređene zelene površine s autohtonim biljem, automatsko navodnjavanje, LED rasvjeta s detektorima pokreta te održivi sustav odvodnje.

Planirani završetak gradnje: proljeće 2027. godine

Za sve dodatne informacije i razgled stana, molimo kontaktirajte:

Azra
+385 91 611 5706
+385 98 420 885
[email protected]

Lokacija

close
Napomena: prikazana je točna lokacija

Kontakt podaci

Adresa 52100 nazovi 052/213-332 Poruka Pošalji privatnu poruku
Verifikacija Korisnik je verificirao broj telefona u državi: Hrvatska
Oglas objavljen 25.10.2025. 01:05
Do isteka još 2 godine i 8 mjeseci
Pregleda 9

Slični oglasi Pogledaj sve oglase

Navedite razlog prijave oglasa

Podijeli oglas

PULA – moderan stan u novogradnji, D3

PULA – moderan stan u novogradnji, D3

ID oglasa: 73037

Cijena: 279.000,00 €

U usporedbi može biti maksimalno 4 oglasa. Uklonite 1 oglas kako bi dodali novi oglas u usporedbe

PROVJERI OGLASE