Prodaja,Pakoštane,trosobni apartman u prizemlju 148m2 s terasom

Cijena: 550.000,00 €
ID oglasa: 96700

Osnovni podaci

Lokacija Zadarska, Pakoštane, Pakoštane
Tip stana u stambenoj zgradi
Stambena površina 148 m²
Broj etaža Jednoetažni
Broj soba 3
Kat Prizemlje
Netto površina 61 m²
Energetski razred A

Opis

www.biliskov.com  ID:
Pakoštane, blizina plaže
Buduća novogradnja uz more.
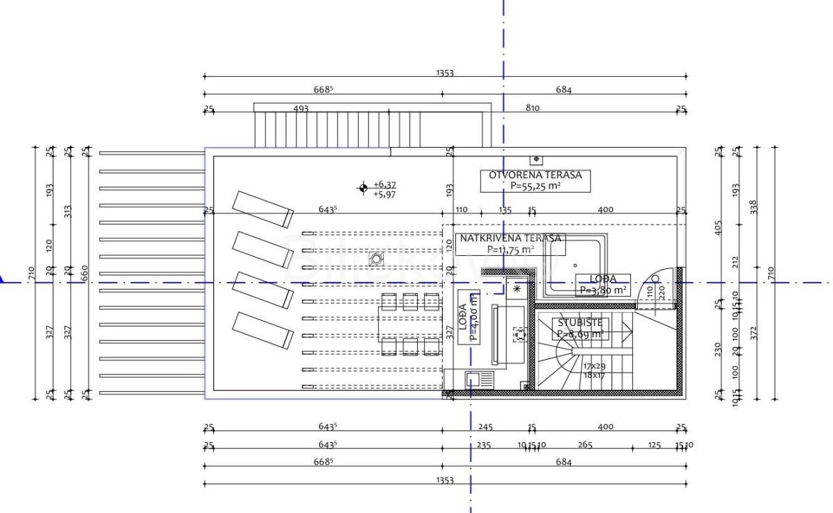
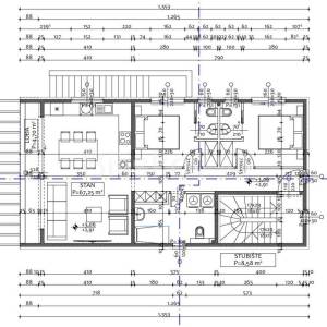
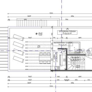
Izvanredan trosobni apartman, obračunske stambene površine 148 m², smjestit će se u prizemlju moderno projektirane zgrade. Nekretnina se sastoji od stana površine 68 m², terase od 30 m², dva parkirna mjesta ukupne površine 31,50 m², kućnog vrta površine 60 m² te podrumske prostorije od 51 m².
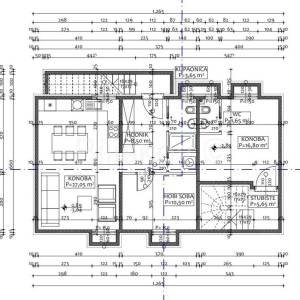
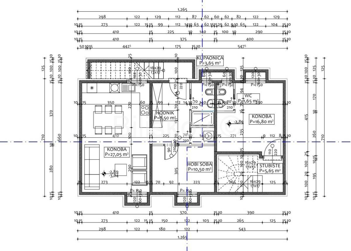
Tablica površina nalazi se među priloženim slikama i tlocrtima.
Stan se sastoji od hodnika, dvije spavaće sobe — svake s vlastitim toaletom — velike moderne kupaonice, kuhinje s blagovaonicom i dnevnog boravka.
U ovoj fazi, prije početka gradnje, postoji mogućnost odlučiti hoće li se kupovati podrumska prostorija od 51 m², koja se može prilagoditi kao dodatni prostor prizemnom stanu. Može se urediti kao prostor za druženje, hobi ili SPA zonu. Ako se podrumska prostorija ne kupi zajedno sa stanom, u podrumu će se urediti dodatni manji stan.
Moderno projektirana manja zgrada s 2–3 stambene jedinice bit će funkcionalna i suvremena, a stanovi će imati otvorene panoramske poglede i visoke standarde gradnje.
Početak radova očekuje se u travnju 2027. godine. U ponudi su još ukupno četiri stana.
U izgradnji će se koristiti najmoderniji i najkvalitetniji materijali, među kojima se izdvajaju:

kombinacija vrhunske aluminijske i PVC stolarije sa sjenilima (električno daljinsko upravljanje) i komarnicima
smart home sustav
ograđeni i kontrolirani ulaz s videonadzorom i portafonom
sustav podnog grijanja u svim prostorijama (povezan sa smart home sustavom)
klimatizacija u svim prostorijama, osim kupaonice (povezana na smart home sustav)

Ova je nekretnina idealna za osobno uživanje, kao i za ulaganje u turistički ili dugoročni najam.
Stolarija: Alu-PVC
Grijanje: Električno
Orijentacija: Zapad
EC: očekuje se A+
Cijena: 550.000 €
Agencijska naknada: 2% + PDV od prodajne dogovorene cijene 

Lokacija

close
Napomena: prikazana je točna lokacija

Dodatni podaci

Balkon/Lođa/Terasa

  • Balkon
  • Lođa (Loggia)

Funkcionalnosti i karakteristike

  • Podno grijanje
  • Protuprovalna vrata

Ostali objekti i površine

  • Dvorište/vrt

Vrsta parkinga

  • Vanjsko ne-natkriveno mjesto

Dozvole i potvrde

  • Vlasnički list
Oglas objavljen 08.12.2025. 16:38
Do isteka još 2 godine i 8 mjeseci
Pregleda 7

Slični oglasi Pogledaj sve oglase

Navedite razlog prijave oglasa

Podijeli oglas

Prodaja,Pakoštane,trosobni apartman u prizemlju 148m2 s terasom

Prodaja,Pakoštane,trosobni apartman u prizemlju 148m2 s terasom

ID oglasa: 96700

Cijena: 550.000,00 €

U usporedbi može biti maksimalno 4 oglasa. Uklonite 1 oglas kako bi dodali novi oglas u usporedbe

PROVJERI OGLASE