Prodaja zemljišta 511 m2 s građevinskom dozvolom i plaćenim doprinosima, Medulin!

Cijena: 239.000,00 €
ID oglasa: 98824

Osnovni podaci

Lokacija Istarska, Medulin, Medulin
Tip zemljišta Građevinsko
Površina 511 m²

Opis

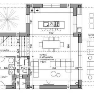
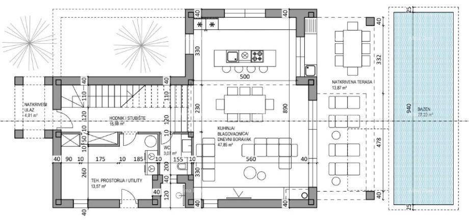
Prodajemo građevinsko zemljište s projektom, građevinskom dozvolom i uplaćenim komunalijama.
Zemljište se nalazi na lijepoj lokaciji, okruženo zelenilom, 1,5 km udaljeno od mora.

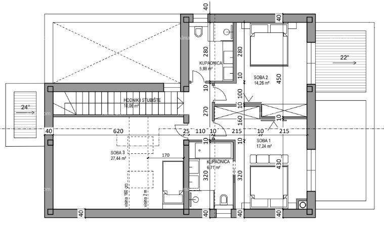
Zemljište ima projekt za katnicu s bazenom, veličine 200m2.
Kuća za odmor posjeduje dnevni boravak s kuhinjom i blagavaonom, 3 spavaće sobe, 2 kupaone, toalet, spremište, terasu i sunčalište uz bazen, vanjski tuš i vanjsku kuhinju.

Za dodatne informacije, molimo kontaktirajte:

Azra
+385 91 611 57 06
+385 98 420 885
[email protected]

Lokacija

close
Napomena: prikazana je točna lokacija

Kontakt podaci

Adresa 52100 nazovi 052/213-332 Poruka Pošalji privatnu poruku
Verifikacija Korisnik je verificirao broj telefona u državi: Hrvatska
Oglas objavljen 18.12.2025. 01:19
Do isteka još 2 godine i 8 mjeseci
Pregleda 6

Slični oglasi Pogledaj sve oglase

Navedite razlog prijave oglasa

Podijeli oglas

Prodaja zemljišta 511 m2 s građevinskom dozvolom i plaćenim doprinosima, Medulin!

Prodaja zemljišta 511 m2 s građevinskom dozvolom i plaćenim doprinosima, Medulin!

ID oglasa: 98824

Cijena: 239.000,00 €

U usporedbi može biti maksimalno 4 oglasa. Uklonite 1 oglas kako bi dodali novi oglas u usporedbe

PROVJERI OGLASE