Prodaja, Zagreb, Rudeš, novogradnja, trosoban stan, loggia

Cijena: 295.000,00 €
ID oglasa: 53821

Osnovni podaci

Lokacija Zagreb
Tip stana u stambenoj zgradi
Stambena površina 81,90 m²
Broj etaža Jednoetažni
Broj soba 3
Kat 1. kat
Sustav grijanja Sustav grijanja, klimatizacije i ventilacije
Energetski razred A

Opis

www.biliskov.com  ID: 15312
Trešnjevka-Sjever, Rudeš
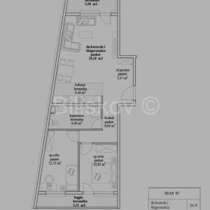
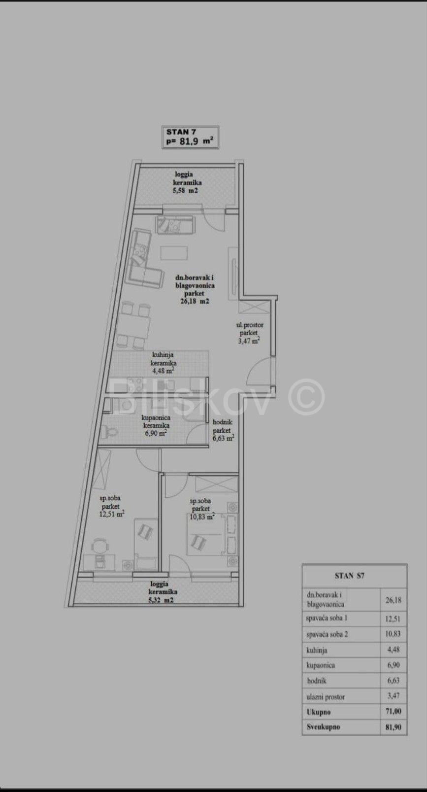
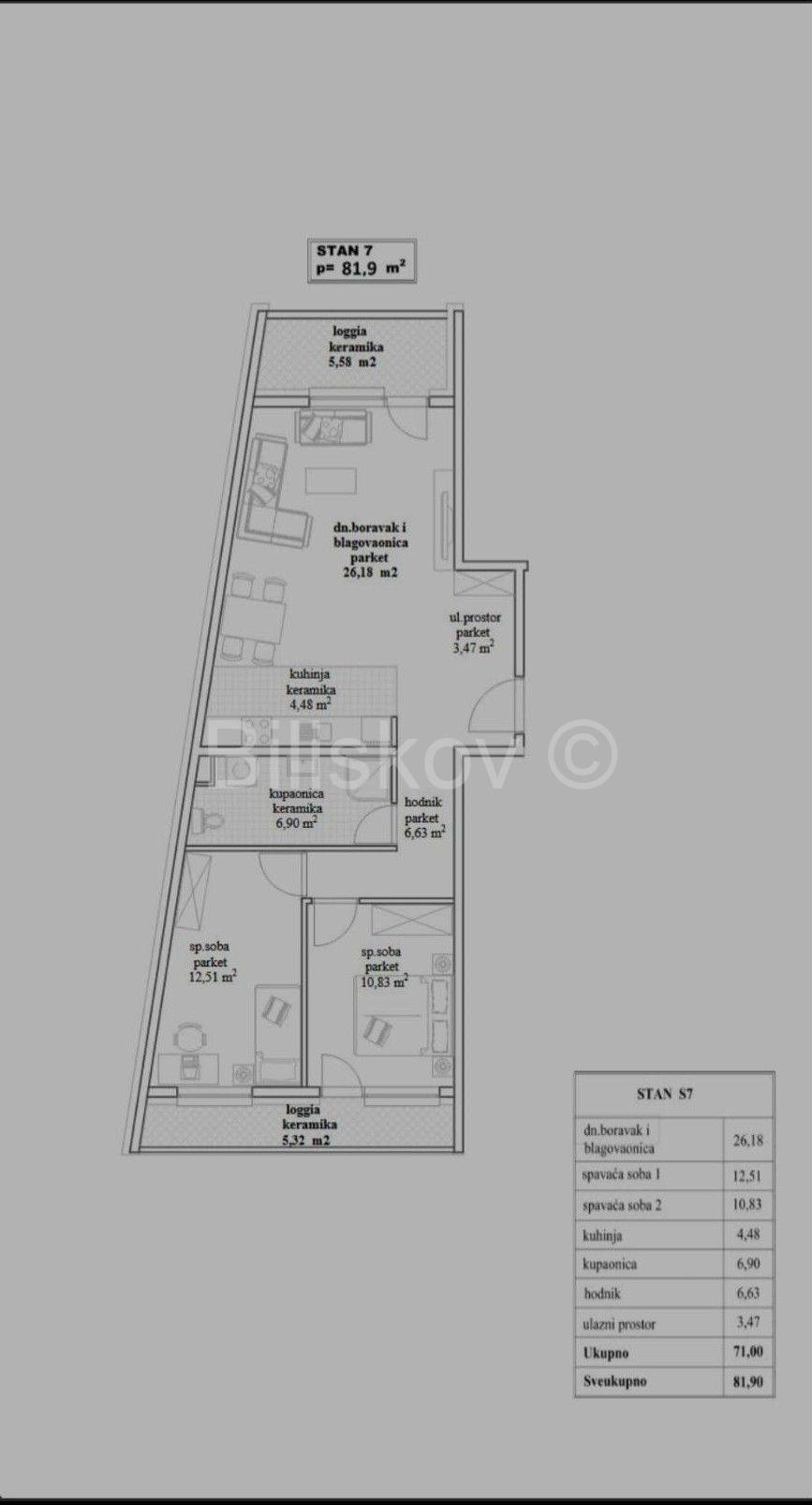
Prodaje se trosoban, nenamješten, stan površine 81,9 m2 u kvalitetnoj i modernoj zgradi izgrađenoj 2023. godine.
Stan, odličnog rasporeda, se sastoji od ulaznog hodnika, prostranog „open space” prostora koji objedinjuje kuhinju, blagovaonicu i dnevni boravak s izlazom na loggiu, moderne kupaonice te dvije udobne spavaće sobe, obje s izlazom na dodatnu loggiu.
Uz stan je obavezna kupnja garažnog parkirnog mjesta.
Na svega nekoliko minuta hoda nalaze se osnovna škola, vrtić, dječje igralište i ostali sadržaji potrebni za kvalitetan obiteljski život. Javni prijevoz (autobus) udaljen je svega dvije minute, omogućujući brzu i jednostavnu povezanost s ostatkom grada. U krugu od 100 metara nalaze se Kaufland i Lidl, dok je Konzum dostupan unutar 300 metara – za brzu, jednostavnu i svakodnevnu nabavku.
EC: A
Orijentacija: Sjever-Istok-Jug
Vanjska stolarija: Aluminijska s troslojnim ISO staklima
Cijena: 295.000 €
Agencijska naknada za kupca: 2 % od postignute kupoprodajne cijene. 

Lokacija

close
Napomena: prikazana je točna lokacija

Dodatni podaci

Podaci o objektu

  • Lift

Funkcionalnosti i karakteristike

  • Alarmni sustav
  • Protuprovalna vrata
Oglas objavljen 16.06.2025. 14:42
Do isteka još 2 godine i 8 mjeseci
Pregleda 54

Slični oglasi Pogledaj sve oglase

Navedite razlog prijave oglasa

Podijeli oglas

Prodaja, Zagreb, Rudeš, novogradnja, trosoban stan, loggia

Prodaja, Zagreb, Rudeš, novogradnja, trosoban stan, loggia

ID oglasa: 53821

Cijena: 295.000,00 €

U usporedbi može biti maksimalno 4 oglasa. Uklonite 1 oglas kako bi dodali novi oglas u usporedbe

PROVJERI OGLASE