NOVOGRADNJA-Rudeš: 3S stan s natkrivenom tersom, vrt i spremište, PM

Cijena: 298.000,00 €
ID oglasa: 77351

Osnovni podaci

Lokacija Zagreb
Tip stana u stambenoj zgradi
Stambena površina 72,60 m²
Broj etaža 3
Broj soba 3
Kat Prizemlje
Ukupni broj katova u zgradi 3
Sustav grijanja Sustav grijanja, klimatizacije i ventilacije
Energetski razred A

Opis

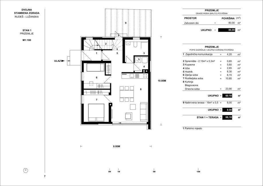
NOVOGRADNJA 2024.g.-Rudeš/Lužanska ulica: trosobni stan u prizemlju NKP 60.10m2 s natkrivenom terasom NKP 8.00m2, parkirnim mjestom NKP 2.6m2, te vrtom NKP 0.90m2 i spremištem u vrtu NKP 1.15m2, sveukupno NKP 72.60m2.

Stan orijentacije sjever-jug-zapad sastoji se od hodnika, open space kuhinje s blagovaonom i dnevnim boravkom, dvije spavaće sobe, kupaonice, izbe s priključkom za perilicu rublja i smještene dizalice topline, te spremišta ispod stubišta.

Grijanje dizalica topline s podnim grijanjem. U svakoj prostoriji zasebni termostati za regulaciju grijanja. Inverterska klima jedinica za dogrijavanje i rashlađivanje.

Zasebna brojila struje i vode.

Priprema za napajanje električnih automobila (na fasadi).

Video portafon, telefonska instalacija, svaka soba sas pripremom za internet i TV...ulazna vrata protupožarna i protuprovalna, PVC stolarija sa 6 komora plus tri brtve s komarnicima i roletama na elektro upravljanje. Unutarnja vrata s magnetnom bravom i skrivenim pantima. Kupaonica s walk-in tušem, keramika i sanitarije vrhunske kvalitete, troslojni parket Chevron...

Zgrada kvalitetne protupotresne gradnje, zidovi kombinacija betona i Ytong blokova (d=25cm), stropna ploča armirano betonska, ravni krov iz armiranog betona obložen TPO folijom, pregradni zidovi iz gips kartona s dvostrukom oblogom, ETICS fasada.

Energetski razred A+.

Blizina svih bitnih sadržaja poput trgovina, dječjeg vrtića, osnovne škole, ljekarne, shopping centara...

Javni parking besplatni.

Stan je dostupan za razglede.

Želite li dodatne informacije ili dogovoriti razgled ove nekretnine? Stojimo Vam na raspolaganju na broj telefona 095 1962 918 ilina e-mail: [email protected].

Lokacija

close
Napomena: Prikazana je približna lokacija

Dodatni podaci

Podaci o objektu

  • Gradski vodovod
  • Gradska kanalizacija

Balkon/Lođa/Terasa

  • Lođa (Loggia)

Funkcionalnosti i karakteristike

  • Tuš kabina
  • Kamin
  • Podno grijanje
  • Video Portafon
  • Protuprovalna vrata

Ostali objekti i površine

  • Spremište/šupa
  • Dvorište/vrt

Vrsta parkinga

  • Vanjsko ne-natkriveno mjesto
Oglas objavljen 27.06.2025. 10:03
Do isteka još 2 godine i 8 mjeseci
Pregleda 37

Slični oglasi Pogledaj sve oglase

Navedite razlog prijave oglasa

Podijeli oglas

NOVOGRADNJA-Rudeš: 3S stan s natkrivenom tersom, vrt i spremište, PM

NOVOGRADNJA-Rudeš: 3S stan s natkrivenom tersom, vrt i spremište, PM

ID oglasa: 77351

Cijena: 298.000,00 €

U usporedbi može biti maksimalno 4 oglasa. Uklonite 1 oglas kako bi dodali novi oglas u usporedbe

PROVJERI OGLASE