Prodaja, Turanj, četverosoban stan u luksuznom kompleksu, blizina mora

Cijena: 911.000,00 €
ID oglasa: 53948

Osnovni podaci

Lokacija Zadarska, Sveti Filip I Jakov, Turanj
Tip stana u stambenoj zgradi
Stambena površina 130,44 m²
Broj etaža Jednoetažni
Broj soba 4
Kat 1. kat
Sustav grijanja Sustav grijanja, klimatizacije i ventilacije
Energetski razred A

Opis

www.biliskov.com  ID: 15101  
Sv. Filip i Jakov, Turanj
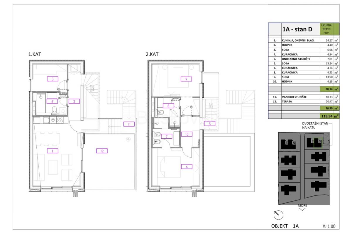
Prekrasan četverosoban dvoetažni stan u novogradnji neto površine 130,44 m2.
Stan se se nalazi na prvom katu moderne urbane vile u zatvorenom luksuznom kompleksu na samo 50 metara od mora.
Sastoji od unutarnjeg stubišta, dva hodnika, tri spavaće sobe, tri kupaonice te velikog “open space” prostora gdje je kuhinja, blagovaonica i dnevni boravak. Ukupna stambena površina iznosi 88,14 m2.
Također, stanu pripada terasa od 20,47 m2, vanjsko stubište od 10,33 m2 te parkirno mjesto površine 11,50 m2.
U izgradnju su korišteni samo najmoderniji i najkvalitenije materijali te je posebna pozornost posvećena sljedećim čimbenicima:

Prvoklasna toplinska i hidro izolacija
Vrhunski aluminijski prozori, vrata i staklene stijene; Cortizo
Aluminijske harmo grilje; električno upravljanje
Ventilirana fasada
Sustav podnog grijanja i toplinska pumpa
Najnovija generacija sustava modularnog stropnog hlađenja
Smart Home rješenje
Ograđeni i kontrolirani ulazak u kompleks s video nadzorom i portafonskim sustavom
Individualni video nadzor stambenih jedinica i stambenog vrta

Ovaj luksuzni kompleks smješten je na izuzetnoj lokaciji u samom srcu Dalmacije. U neposrednoj blizini svih bitnih sadržaja (škola, vrtić, dućani, ljekarne, bolnic, trgovine i slično).
Lokacija nudi izvanrednu cestovnu povezanost:  15 minuta vožnje od Zračne luke Zadar  i 20 minuta od centra grada Zadra.
 
EC: U izradi
Orijentacija: Jug, Zapad, Istok
Kupoprodajna cijena: 911.000 €
Posrednička naknada za kupca: 2% + PDV od postignute kupoprodajne cijene 

Lokacija

close
Napomena: prikazana je točna lokacija

Dodatni podaci

Balkon/Lođa/Terasa

  • Lođa (Loggia)

Funkcionalnosti i karakteristike

  • Alarmni sustav
  • Video Portafon
  • Protuprovalna vrata

Vrsta parkinga

  • Vanjsko ne-natkriveno mjesto
Oglas objavljen 14.03.2025. 11:37
Do isteka još 2 godine i 8 mjeseci
Pregleda 170

Slični oglasi Pogledaj sve oglase

Navedite razlog prijave oglasa

Podijeli oglas

Prodaja, Turanj, četverosoban stan u luksuznom kompleksu, blizina mora

Prodaja, Turanj, četverosoban stan u luksuznom kompleksu, blizina mora

ID oglasa: 53948

Cijena: 911.000,00 €

U usporedbi može biti maksimalno 4 oglasa. Uklonite 1 oglas kako bi dodali novi oglas u usporedbe

PROVJERI OGLASE