Prodaja stanova u novom stambenom projektu na eksluzivnoj lokaciji, 300 m od mora, Pula, Veruda! s14-z2

Cijena: 222.669,00 €
ID oglasa: 101992

Osnovni podaci

Lokacija Istarska, Pula, Centar
Tip stana u kući
Stambena površina 57 m²
Broj etaža Jednoetažni
Broj soba Garsonijera
Kat Suteren

Opis

Novi stambeni projekt na eksluzivnoj lokaciji, Pula, Veruda!

Projekt Sisplac smješten je na jednoj od najboljih lokacija u Puli. Ova lokacija je savršena za stanovanje zbog sportsko-rekreacijskog sadržaja na tom području, blizine tržnice Veruda, uređenih parkova, te svih prirodnih blagodati, atraktivnih plaža, mora i najpopularnije šetnice u gradu Lungomare.

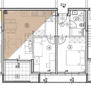
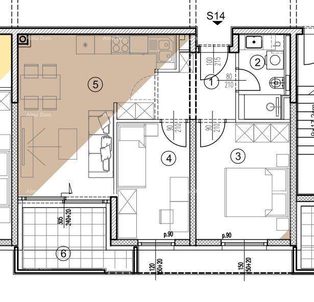
Stan S14, nalazi se na 1 katu zgrade, površine 57,57 m2 (54,982).

Stan se sastoji od honika, dnevnog boravka sa kuhinjom i blagavaonom, 2 spavaće sobe, kupaone i balkona.

Podovi u sobama će biti parket, a u ostalim prostorijama je karemaika. Zgrada posjeduje lift i podzemnu garažu.

* Napomena: stanu pripada garažno parkirno mjesto uz dodatnu nadoplatu, po cijeni od 20.000 eura.

Za dodatne informacije, molimo kontaktirajte:

Azra
+385 91 611 5706
+385 98 420 885
[email protected]

Lokacija

close
Napomena: prikazana je točna lokacija

Kontakt podaci

Adresa 52100 nazovi 052/213-332 Poruka Pošalji privatnu poruku
Verifikacija Korisnik je verificirao broj telefona u državi: Hrvatska
Oglas objavljen 12.01.2026. 01:19
Do isteka još 2 godine i 8 mjeseci
Pregleda 7

Slični oglasi Pogledaj sve oglase

Navedite razlog prijave oglasa

Podijeli oglas

Prodaja stanova u novom stambenom projektu na eksluzivnoj lokaciji, 300 m od mora, Pula, Veruda! s14-z2

Prodaja stanova u novom stambenom projektu na eksluzivnoj lokaciji, 300 m od mora, Pula, Veruda! s14-z2

ID oglasa: 101992

Cijena: 222.669,00 €

U usporedbi može biti maksimalno 4 oglasa. Uklonite 1 oglas kako bi dodali novi oglas u usporedbe

PROVJERI OGLASE