Prodaja stanova u izgradnji - novi stambeni kompleks, Pula! Stan D zg A3

Cijena: 350.000,00 €
ID oglasa: 101352

Osnovni podaci

Lokacija Istarska, Pula, Centar
Tip stana u kući
Stambena površina 110 m²
Broj etaža Jednoetažni
Broj soba Garsonijera
Kat Suteren

Opis

NOVOGRADNJA – MANJI STAMBENI KOMPLEKS U IZGRADNJI (3 ZGRADE U NIZU)

Na prodaju je manji stambeni kompleks u izgradnji koji se sastoji od tri moderne zgrade u nizu.
Svaka zgrada projektirana je kao stambena cjelina s ukupno četiri stana, raspoređenih kroz prizemlje i dva kata.

Stanovi su funkcionalnog rasporeda, s naglaskom na komfor, prirodno osvjetljenje i kvalitetne građevinske materijale. Svakom stanu pripada parkirno mjesto, a predviđena je i moderna energetski učinkovita oprema.

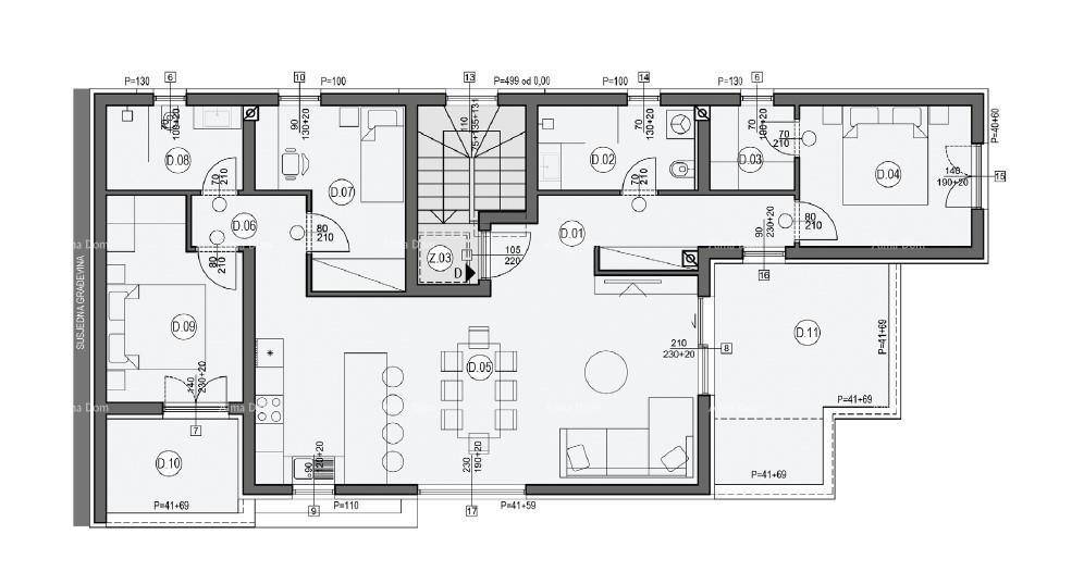
Stan D, nalazi se na 2.katu zgrade A3 i sastoji od: ulaznog prostora, dnevnog prostora s kuhinjom i blagavaonom, 3 spavaće sobe, 2 kupaone, hodnika, garderobe, balkona.
Kompleks se nalazi na mirnoj lokaciji idealnoj za obiteljski život ili kao investicija za najam, s lakim pristupom svim bitnim sadržajima – trgovinama, školom, javnim prijevozom i plažama.

Projekt je u fazi izgradnje.
Stanu pripada garaža i parkirno mjesto.

Za dodatne informacije, molimo kontaktirajte:
Azra
+385 91 611 5706
+385 98 420 885
[email protected]

Lokacija

close
Napomena: prikazana je točna lokacija

Kontakt podaci

Adresa 52100 nazovi 052/213-332 Poruka Pošalji privatnu poruku
Verifikacija Korisnik je verificirao broj telefona u državi: Hrvatska
Oglas objavljen 08.01.2026. 01:40
Do isteka još 2 godine i 8 mjeseci
Pregleda 8

Slični oglasi Pogledaj sve oglase

Navedite razlog prijave oglasa

Podijeli oglas

Prodaja stanova u izgradnji - novi stambeni kompleks, Pula! Stan D zg A3

Prodaja stanova u izgradnji - novi stambeni kompleks, Pula! Stan D zg A3

ID oglasa: 101352

Cijena: 350.000,00 €

U usporedbi može biti maksimalno 4 oglasa. Uklonite 1 oglas kako bi dodali novi oglas u usporedbe

PROVJERI OGLASE