Prodaja, Stan, Remete, Vinec, 4s, 144m2

Cijena: 648.000,00 €
ID oglasa: 99077

Osnovni podaci

Lokacija Zagreb, Maksimir, Remete
Tip stana u stambenoj zgradi
Stambena površina 144 m²
Broj etaža Jednoetažni
Broj soba Garsonijera
Kat Prizemlje
Godina izgradnje 2025
Ukupni broj katova u zgradi 2

Opis

Prodaja, Stan, Remete, Vinec, 4s, 144m2
Prodaja, Stan, Novogrdanja, Remete, 4s, 144m2, Lift, Garaža.
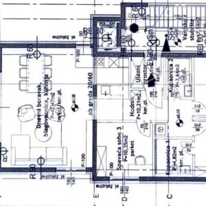
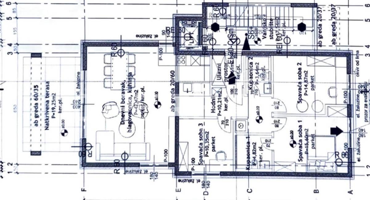
Stan se sastoji od ulaznog prostora, open space kuhinja/boravak (42,5m2), 3 prostorne spavaće sobe 15,6m2, 14,9m2, 10.4m2), dvije kupaone, terasa (19m2), vrt (200m2).
Urbana vila se sastoji od 3 stambene jedinice, svaka na jednom katu, stanu pripada jedno garažno, i jedno vanjsko parking mjesto. Zgrada također ima lift.
Visoka kvaliteta gradnje, alu stolarija, električne žaluzine i rolete, dizalice topline, prva klasa parket i keramika.
Ostali detalji na upit.

USLUGA KREDITNOG POSREDOVANJA: Opereta ekspert pruža besplatnu uslugu kreditnog posredovanja, uspoređujući ponude više banaka na jednom mjestu. Naš tim objašnjava sve opcije i vodi vas kroz cijeli proces – od konzultacija do isplate kredita, kako biste donijeli informiranu financijsku odluku i uštedjeli vrijeme.

Lokacija

close
Napomena: prikazana je točna lokacija

Dodatni podaci

Balkon/Lođa/Terasa

  • Terasa

Ostali objekti i površine

  • Dvorište/vrt

Dozvole i potvrde

  • Građevinska dozvola
Oglas objavljen 19.12.2025. 01:09
Do isteka još 2 godine i 8 mjeseci
Pregleda 139

Slični oglasi Pogledaj sve oglase

Navedite razlog prijave oglasa

Podijeli oglas

Prodaja, Stan, Remete, Vinec, 4s, 144m2

Prodaja, Stan, Remete, Vinec, 4s, 144m2

ID oglasa: 99077

Cijena: 648.000,00 €

U usporedbi može biti maksimalno 4 oglasa. Uklonite 1 oglas kako bi dodali novi oglas u usporedbe

PROVJERI OGLASE