Prodaja, Rudeš, 3s stan, novogradnja, terasa, vrt, parking

Cijena: 297.660,00 €
ID oglasa: 54225

Osnovni podaci

Lokacija Zagreb
Tip stana u stambenoj zgradi
Stambena površina 72,60 m²
Broj etaža 2
Broj soba 3
Kat Prizemlje
Ukupni broj katova u zgradi 2
Sustav grijanja Sustav grijanja, klimatizacije i ventilacije
Energetski razred A

Opis

www.biliskov.com ID: 14397
Trešnjevka sjever, Rudeš
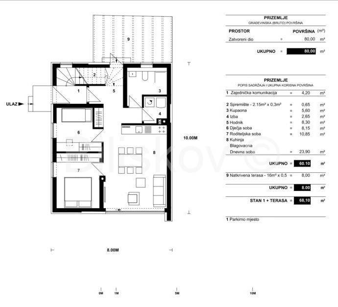
Prodaje se trosoban stan površine 72,6 m2 u prizemlju novogradnje čiji se završetak očekuje u rujnu 2024 godine.
Stan se sastoji od prostranog hodnika koji vodi u svijetli i elegantni „open space“ dnevni boravak s modernom kuhinjom i blagovaonicom. Tu su i dvije udobne spavaće sobe koje nude mir i privatnost, dok je kupaonica s wc-om opremljena za vaše svakodnevne potrebe. Praktičnost dodatno povećava izba, a natkrivena terasa pruža savršeno mjesto za opuštanje na svježem zraku. Posebnost ovog stana je vrt, zaklonjen od pogleda susjeda, koji osigurava privatnost i mir. 
Uz stan dolazi vanjsko parkirno mjesto i spremište, osiguravajući dodatnu udobnost i funkcionalnost.
Zgrada se nalazi na iznimno traženoj lokaciji, okružena svim sadržajima potrebnim za kvalitetan i sadržajan život. U blizini su javni prijevoz (300 m), osnovna škola (300 m), dječji vrtić (300 m), dom zdravlja i ljekarna (50 m), te predivno Jarunsko jezero (1500 m). Trgovine, restorani i kafići također su na dohvat ruke, čineći ovu lokaciju idealnom za sve generacije.
Vlasništvo je uredno.
Energetski razred: A+
Stolarija: PVC s električnim podizačima roleta i komarnicima
Grijanje: Dizalica topline s termostatom za regulaciju temperature u svakoj prostoriji
Cijena: 297.660 €
Agencijska naknada za kupca: 2%+ PDV od postignute kupoprodajne cijene. 

Lokacija

close
Napomena: Prikazana je približna lokacija

Dodatni podaci

Balkon/Lođa/Terasa

  • Lođa (Loggia)

Funkcionalnosti i karakteristike

  • Alarmni sustav
  • Video Portafon

Ostali objekti i površine

  • Spremište/šupa
  • Dvorište/vrt
Oglas objavljen 18.06.2024. 14:16
Do isteka još 2 godine i 8 mjeseci
Pregleda 46

Slični oglasi Pogledaj sve oglase

Navedite razlog prijave oglasa

Podijeli oglas

Prodaja, Rudeš, 3s stan, novogradnja, terasa, vrt, parking

Prodaja, Rudeš, 3s stan, novogradnja, terasa, vrt, parking

ID oglasa: 54225

Cijena: 297.660,00 €

U usporedbi može biti maksimalno 4 oglasa. Uklonite 1 oglas kako bi dodali novi oglas u usporedbe

PROVJERI OGLASE