Prodaja, Rovinj, poslovna zgrada u atraktivnoj gospodarskoj zoni

Cijena: 3.024.000,00 €
ID oglasa: 54072

Osnovni podaci

Lokacija Istarska, Rovinj, Rovinj
Pozicija Ulični lokal
Kat Prizemlje
Godina izgradnje 2024
Godina zadnje adaptacije 2025

Opis

www.biliskov.com  ID: 14778
Rovinj
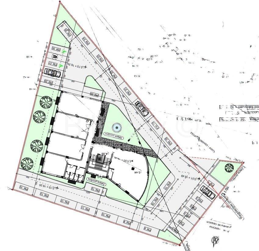
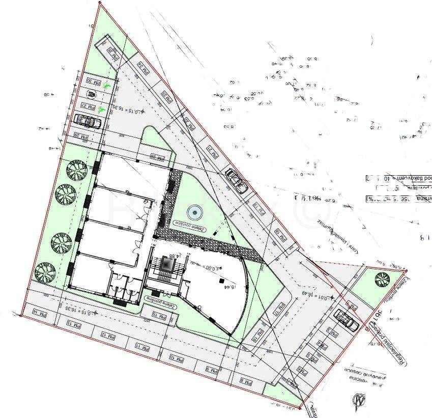
Poslovna zgrada ukupne bruto površine 1472,10 m²,odnosno neto površine 1260,41 m², što se odnosi na  tri nadzemne i jednu podzemnu etažu, sa okućnicom od 1683 m2 i 30 parkirnih mjesta, za obavljanje raznovrsnih uslužnih djelatnosti.  Zgrada je uređena u visokom roh-bau stanju.
 
Poslovna se zgrada nalazi u vrlo atraktivnoj Gospodarskoj zoni u prekrasnom Rovinju, u blizini svih popratnih sadržaja, udaljeno svega  900 m od plaže i od centra Rovinja.
  
U navedenim je poslovnim prostorima između ostalog, moguće organizirati slijedeće sadržaje: polikliniku sa različitim specijalističkim ambulantama, medicinski centar za fizikalnu i ortopedsku dijagnostiku i terapiju, sportsko-rekreativni centar, odvjetničke urede, projektantske urede, turističke i putne agencije, agencije za nekretnine, predstavništva domaćih i stranih firmi, banke, uredske prostore, osiguravajuća društva, hostel, turističke apartmane, Dom za starije i nemoćne,  trgovačke i druge uslužne sadržaje, i sl.  Poslovnu zgradu moguće je pretvoriti i u stambenu zgradu ili stambeno –poslovnu zgradu i  15   poslovnih prostora, pretvoriti u 15  apartmana/stanova, različite kvadrature .
Moguća kupnja pojedinačnih parkirnih mjesta po cijeni 5.500 eur.    
 
Cijena: 3.024.000 €
Agencijska naknada iznosi 2% + PDV od postignute kupoprodajne cijene. 

Lokacija

close
Napomena: prikazana je točna lokacija
Oglas objavljen 20.11.2024. 15:35
Do isteka još 2 godine i 8 mjeseci
Pregleda 166

Slični oglasi Pogledaj sve oglase

Navedite razlog prijave oglasa

Podijeli oglas

Prodaja, Rovinj, poslovna zgrada u atraktivnoj gospodarskoj zoni

Prodaja, Rovinj, poslovna zgrada u atraktivnoj gospodarskoj zoni

ID oglasa: 54072

Cijena: 3.024.000,00 €

U usporedbi može biti maksimalno 4 oglasa. Uklonite 1 oglas kako bi dodali novi oglas u usporedbe

PROVJERI OGLASE