PRODAJA, LUČKO, NOVOGRADNJA, STAN 65 M2, USELJENJE KRAJ 2025

Cijena: 194.970,00 €
ID oglasa: 97145

Osnovni podaci

Lokacija Zagreb
Tip stana u stambenoj zgradi
Stambena površina 64,99 m²
Broj etaža 3
Broj soba 3
Kat Prizemlje
Ukupni broj katova u zgradi 3

Opis

PRODAJA, LUČKO, NOVOGRADNJA, USELJENJE KRAJ 2025
Prodaju se stanovi u zgradi od 32 stana u izgradnji, koja se sastoji od podzemne garaže s parkirnim mjestima, prizemlja, prvog, drugog i trećeg kata.
Zgrada će pripadati "A" energetskom razredu, ima lift koji ide od podzemne garaže do svih etaža, zgrada će biti priključena na gradsku kanalizaciju.Obavezna kupnja garažnog parkirnog mjesta uz stan po cijeni od: 12.000,00 €.Oprema zgrade:- lift- armirani beton i Porotherm opeka.- toplinska izolacija stiropor 15cm- granit na stubištu- protuprovalna vrata- hrastov parket- PVC stolarija troslojna, šest komorna, Low-e staklo.- bešumne cijevi- ugradbeni vodokotlići Geberit- Grohe slavine- klima uređajSlobodni stanovi po etaži:
PRIZEMLJE:
S1 = 64,99 m2 / 194.970,00 €
S7 = 50,96 m2 / 163.072,00 €
S8 = 42,50 m2 / 136.000,00 €

PRVI KAT:
S1.7 = 82,06 m2 / 246.180,00 €

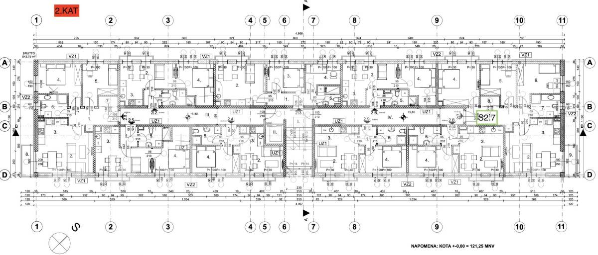
DRUGI KAT:
S2.7 = 81,21 m2 / 243.630,00 €

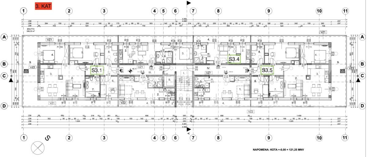
TREĆI KAT:
S3.1 = 101,73 m2 / 305.190,00 €
S3.4 = 25,95 m2 / 104.825,00 €
S3.5 = 101,73 m2 / 305.1901,00 €
8 kilometara jugozapadno od centra Zagreba uz autocestu Zagreb-Karlovac, Zagrebačku obilaznicu i staru cestu prema Karlovcu.Blizina svih sadržaja bitnih za život, škola, vrtić, gradski autobus, trgovački centri.
Za sve informacije nazovite 098/359876
ZIHER
Agencija za posredovanje u prometu nekretninama

Lokacija

close
Napomena: Prikazana je približna lokacija

Kontakt podaci

Oglas objavljen 19.06.2025. 20:55
Do isteka još 2 godine i 8 mjeseci
Pregleda 7

Slični oglasi Pogledaj sve oglase

Navedite razlog prijave oglasa

Podijeli oglas

PRODAJA, LUČKO, NOVOGRADNJA, STAN 65 M2, USELJENJE KRAJ 2025

PRODAJA, LUČKO, NOVOGRADNJA, STAN 65 M2, USELJENJE KRAJ 2025

ID oglasa: 97145

Cijena: 194.970,00 €

U usporedbi može biti maksimalno 4 oglasa. Uklonite 1 oglas kako bi dodali novi oglas u usporedbe

PROVJERI OGLASE