Prodaja - građevinsko zemljište s projektom za izgradnju vile prizemnice, Žminj V1

Cijena: 92.100,00 €
ID oglasa: 100875

Osnovni podaci

Lokacija Istarska, Žminj, Žminj
Tip zemljišta Građevinsko
Površina 1.375 m²

Opis

Na prodaju je atraktivno građevinsko zemljište smješteno u srcu Istre, između povijesnih gradića Gračišća, Lindara i Žminja.
Parcela se nalazi na blagom uzvišenju, okružena hrastovom šumom, što pruža savršeno okruženje za sve koji cijene prirodu, mir i privatnost.

Osnovne informacije:
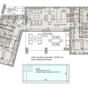
-Površina parcele: 1.375 m²
-Neto površina kuće: 129 m² unutarnjeg prostora
-Natkrivena terasa: 38 m²
-Natkriveni ulaz: 8 m²
-Broj etaža: prizemnica
-Parkirna mjesta: 2

Projekt predviđa kombinaciju suvremene arhitekture i tradicionalnog mediteranskog stila, s naglaskom na prirodne materijale poput kamena, drva i betona. Velike staklene stijene povezuju unutarnje prostore s okolnim krajolikom, pružajući otvoren pogled na prirodu i bazen.

Raspored prostorija

Prizemlje: otvoreni koncept dnevnog boravka, kuhinje i blagovaonice, gospodarska prostorija s toaletom te spavaća soba s vlastitom kupaonicom. Iz dnevnog dijela izlazi se na natkrivenu terasu i bazen.

Podovi su obloženi parketom, dok su u kupaonicama keramičke pločice.

Značajke:
-Grijanje i hlađenje putem toplinske pumpe
-Podno grijanje u kupaonicama
-Fan-coil sustav u ostalim prostorijama
-Kamin na drva u dnevnom boravku
-Bazen površine 38 m² s kamenom oblogom, mozaik-pločicama i sunčalištem

Udaljenost od mora: 28 km

Prekrasna mediteranska vila koja spaja modernu udobnost i tradicionalni istarski šarm. Smještena u mirnom dijelu središnje Istre, okružena šumom, a opet u blizini slikovitih gradića. Idealna za odmor ili kao investicija.

Za dodatne informacije, molimo kontaktirajte:

Azra
+385 91 611 5706
+385 98 420 885
[email protected]

Lokacija

close
Napomena: prikazana je točna lokacija

Kontakt podaci

Adresa 52100 nazovi 052/213-332 Poruka Pošalji privatnu poruku
Verifikacija Korisnik je verificirao broj telefona u državi: Hrvatska
Oglas objavljen 04.01.2026. 01:29
Do isteka još 2 godine i 8 mjeseci
Pregleda 21

Slični oglasi Pogledaj sve oglase

Navedite razlog prijave oglasa

Podijeli oglas

Prodaja - građevinsko zemljište s projektom za izgradnju vile prizemnice, Žminj V1

Prodaja - građevinsko zemljište s projektom za izgradnju vile prizemnice, Žminj V1

ID oglasa: 100875

Cijena: 92.100,00 €

U usporedbi može biti maksimalno 4 oglasa. Uklonite 1 oglas kako bi dodali novi oglas u usporedbe

PROVJERI OGLASE