Prodaja - građevinsko zemljište s dozvolom, gradnja može početi odmah! Kanfanar!

Cijena: 135.000,00 €
ID oglasa: 80667

Osnovni podaci

Lokacija Istarska, Kanfanar, Kanfanar
Tip zemljišta Građevinsko
Površina 727 m²

Opis

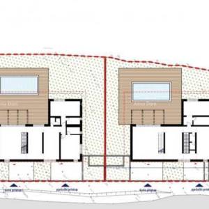
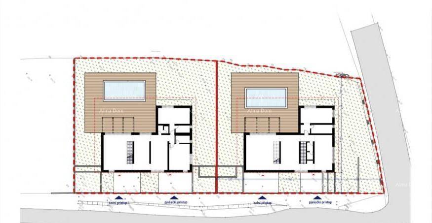
Na prodaju građevinsko zemljište s građevinskom dozvolom – Kanfanar

Prodaje se građevinsko zemljište na mirnom rubnom dijelu mjesta Kanfanar, smješteno na samom kraju građevinske zone. Parcela ima pristup s asfaltirane ceste, ravnog je terena i idealna za gradnju.

Udaljena je svega 3 km od izlaza s autoceste za Rovinj, a zbog svoje izvrsne geografske pozicije sve destinacije u Istri – od sjevera do juga poluotoka – dostupne su unutar 40 minuta vožnje.

Za parcelu je izrađena projektna dokumentacija za izgradnju vile s bazenom, a građevinska dozvola je već izdana, što omogućuje trenutni početak gradnje.

Postoji mogućnost kupnje i dodatne parcele koja se nalazi pored ove parcele.

Za dodatne informacije, molimo kontaktirajte:

Azra
+385 91 611 5706
+385 98 420 885
[email protected]

Lokacija

close
Napomena: prikazana je točna lokacija

Kontakt podaci

Adresa 52100 nazovi 052/213-332 Poruka Pošalji privatnu poruku
Verifikacija Korisnik je verificirao broj telefona u državi: Hrvatska
Oglas objavljen 07.11.2025. 01:01
Do isteka još 2 godine i 8 mjeseci
Pregleda 102

Slični oglasi Pogledaj sve oglase

Navedite razlog prijave oglasa

Podijeli oglas

Prodaja - građevinsko zemljište s dozvolom, gradnja može početi odmah! Kanfanar!

Prodaja - građevinsko zemljište s dozvolom, gradnja može početi odmah! Kanfanar!

ID oglasa: 80667

Cijena: 135.000,00 €

U usporedbi može biti maksimalno 4 oglasa. Uklonite 1 oglas kako bi dodali novi oglas u usporedbe

PROVJERI OGLASE