Prodaja, Gornji Grad, Tkalčićeva, poslovna zgrada, parking

Cijena: 3.900.000,00 €
ID oglasa: 54434

Osnovni podaci

Lokacija Zagreb
Pozicija Ulični lokal
Kat Prizemlje
Godina izgradnje 2023
Godina zadnje adaptacije 2025

Opis

www.biliskov.com  ID: 13536
Gornji Grad, Tkalčićeva
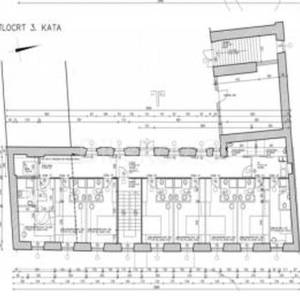
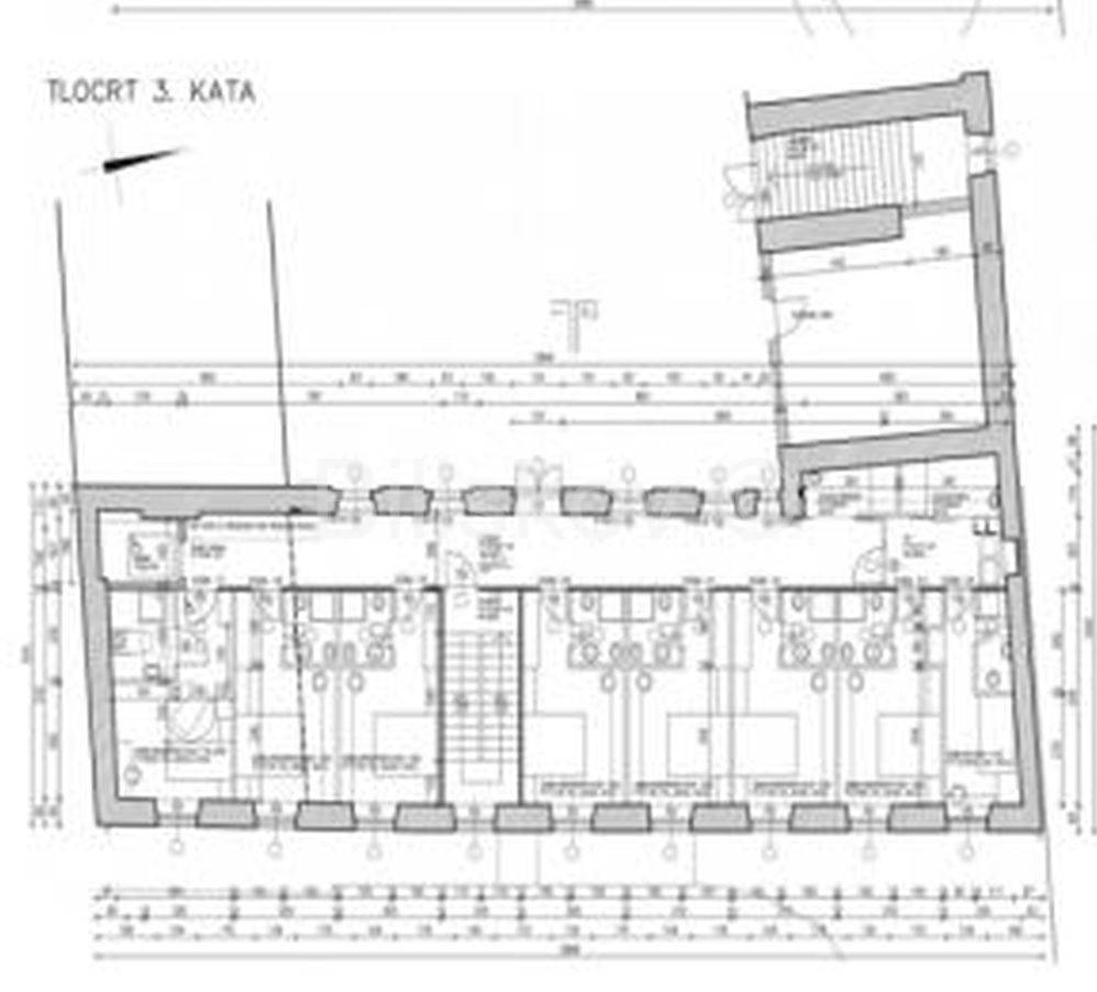
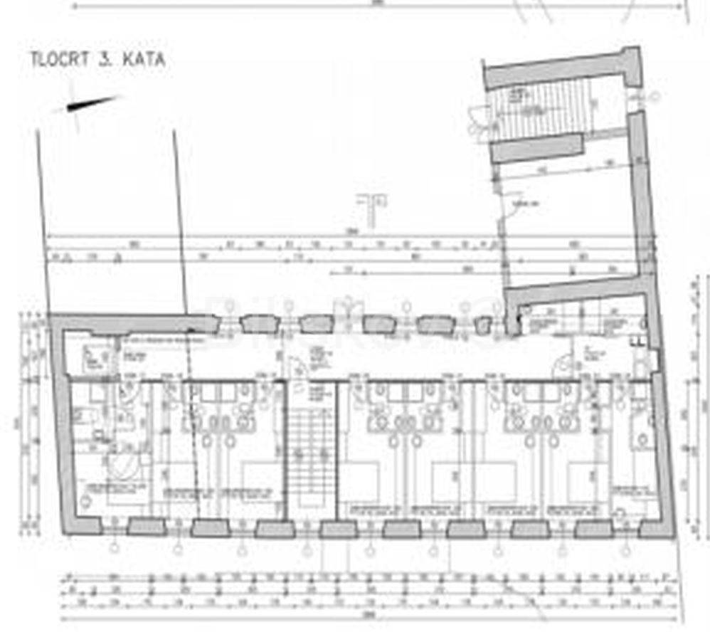
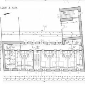
Zgrada u pet nadzemnih etaža ukupne neto površine 932m2 (bruto 1.347m2) sagrađena 1820tih godina.
Zgrada se nalazi na jednoj od najljepših gornjogradskih lokacija, između Radićeve i Tkalčićeve ulice, svega 300m udaljena od Zagrebačke katedrale.
Iznimno atraktivna lokacija građevine, veličina objekta, pristup sa dvije vrlo frekventne ulice strogog centra Zagreba omogućavaju razne namjene te pružaju velike investicijske mogućnosti.
Trenutno postoji potvrda glavnog projekta da se prostor uredi u jedan prekrasan gradski boutique hotel s 26 soba, izveden je veći dio radova na sanaciji nosive konstrukcije, krovišta i pročelja te postavljena nova stolarija.
Pristup automobilom je moguć iz Radićeve ulice, u dvorištu postoji mogućnost parkinga samo za stanare i vlasnike objekta.
Vlasništvo: 1/1
Cijena: 3.900.000€
Posrednička naknada: 2% + PDV 

Lokacija

close
Napomena: prikazana je točna lokacija
Oglas objavljen 19.09.2023. 12:59
Do isteka još 2 godine i 8 mjeseci
Pregleda 138

Slični oglasi Pogledaj sve oglase

Navedite razlog prijave oglasa

Podijeli oglas

Prodaja, Gornji Grad, Tkalčićeva, poslovna zgrada, parking

Prodaja, Gornji Grad, Tkalčićeva, poslovna zgrada, parking

ID oglasa: 54434

Cijena: 3.900.000,00 €

U usporedbi može biti maksimalno 4 oglasa. Uklonite 1 oglas kako bi dodali novi oglas u usporedbe

PROVJERI OGLASE